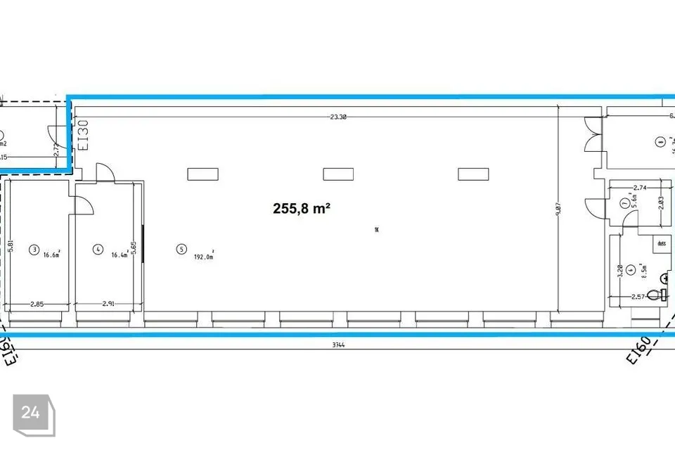
Aardla 23e ärihoone pakub sinu ettevõttele suurepärase logistilise asukohaga kaubandus-, teenindus-, tootmis- ja laopinda Tartus. Ruumid asuvad esimesel korrusel, olles hästi ligipääsetavad nii klientidele kui ka kaubaveole.
Laoruumil on tõstuks laadimisplatvormiga, mis tagab mugava kaupade peale- ja mahalaadimise. Lisaks on ruumide koosseisus büroo, abiruum ja duširuum/WC töötajatele, mis loob igapäevaseks tööks mugava ja praktilise keskkonna.
Ruumid sobivad hästi ettevõtetele, kes otsivad hea ligipääsetavusega multifunktsionaalset pinda, mida saab kohandada vastavalt oma tegevusvaldkonnale.
Aardla 23e ärihoone asub Ropka linnaosas, kesklinnast umbes 2,5 km kaugusel. Läheduses on Selver, Rimi ning mitmed teised äri- ja teenindusasutused, mis loovad aktiivse ärikeskkonna. Ühistranspordi peatus asub vaid 100 meetri kaugusel.
Põhiomadused:
* Esimene korrus – hea ligipääs klientidele ja kaubaveole;
* Laoruumil tõstuks laadimisplatvormiga;
* Büroo, abiruum ja duširuum/WC töötajatele;
* Kinnistul tasuta parkimine;
* Läheduses Selver, Rimi, mitmed toitlustuskohad ja muud
teenindusasutused;
* Hea ligipääs ja ühistranspordi peatus vaid 100 m kaugusel;
JAGA MINU KONTAKTI KÕIGILE, KES VAJAVAD KINNISVARANÕU!
- - - - - - - - - -
Telli hindamine UUS MAA Kinnisvarabüroolt https://uusmaa.ee/teenused/hindamine/
UUS MAA KINNISVARABÜROO EKSPERTHINNANGUID AKTSEPTEERIVAD KÕIK FINANTSASUTUSED.
- - - - - - - - - -
Liitu Uus Maa uudiskirjaga ja saa homset kinnisvarainfot juba täna!
https://www.uusmaa.ee/uudiskirjagaliitumine/
- - - - - - - - - -
Kodu aitab osta Swedbank.
Pakkumise saamiseks kasuta koodi UUSMAA ja Sind teenindatakse eelisjärjekorras.
Võtame ühendust 1 tööpäeva jooksul.
Uus Maa kliendile soodsam lepingutasu. Küsi täpsemat infot maaklerilt.
Finantsteenuseid pakub Swedbank AS. Tutvu tingimustega, pea nõu.
Laoruumil on tõstuks laadimisplatvormiga, mis tagab mugava kaupade peale- ja mahalaadimise. Lisaks on ruumide koosseisus büroo, abiruum ja duširuum/WC töötajatele, mis loob igapäevaseks tööks mugava ja praktilise keskkonna.
Ruumid sobivad hästi ettevõtetele, kes otsivad hea ligipääsetavusega multifunktsionaalset pinda, mida saab kohandada vastavalt oma tegevusvaldkonnale.
Aardla 23e ärihoone asub Ropka linnaosas, kesklinnast umbes 2,5 km kaugusel. Läheduses on Selver, Rimi ning mitmed teised äri- ja teenindusasutused, mis loovad aktiivse ärikeskkonna. Ühistranspordi peatus asub vaid 100 meetri kaugusel.
Põhiomadused:
* Esimene korrus – hea ligipääs klientidele ja kaubaveole;
* Laoruumil tõstuks laadimisplatvormiga;
* Büroo, abiruum ja duširuum/WC töötajatele;
* Kinnistul tasuta parkimine;
* Läheduses Selver, Rimi, mitmed toitlustuskohad ja muud
teenindusasutused;
* Hea ligipääs ja ühistranspordi peatus vaid 100 m kaugusel;
JAGA MINU KONTAKTI KÕIGILE, KES VAJAVAD KINNISVARANÕU!
- - - - - - - - - -
Telli hindamine UUS MAA Kinnisvarabüroolt https://uusmaa.ee/teenused/hindamine/
UUS MAA KINNISVARABÜROO EKSPERTHINNANGUID AKTSEPTEERIVAD KÕIK FINANTSASUTUSED.
- - - - - - - - - -
Liitu Uus Maa uudiskirjaga ja saa homset kinnisvarainfot juba täna!
https://www.uusmaa.ee/uudiskirjagaliitumine/
- - - - - - - - - -
Kodu aitab osta Swedbank.
Pakkumise saamiseks kasuta koodi UUSMAA ja Sind teenindatakse eelisjärjekorras.
Võtame ühendust 1 tööpäeva jooksul.
Uus Maa kliendile soodsam lepingutasu. Küsi täpsemat infot maaklerilt.
Finantsteenuseid pakub Swedbank AS. Tutvu tingimustega, pea nõu.






















