Üüri oma ettevõttele uus büroo- või teeninduspind Tartus!
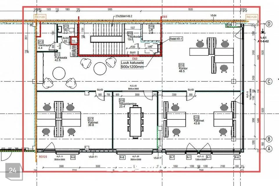
Uus ärihoone asub aadressil Aardla 23 ning pakub sinu ettevõttele hea logistilise asukohaga töökeskkonda Tartus. Kolmandal korrusel asub esmaklassiline üüritavat pinda suurusega 203,7 m². Arendaja on siselahenduste osas paindlik ja üüripinna jaotuse ning siseviimistluse saab teha vastavalt kliendi soovile.
Kinnistu asub Ropka linnaosas, ligikaudu 2,5 km kaugusel kesklinnast ja paikneb tiheda Aardla tänava ääres. Ühistranspordi peatus asub vaid ca 100 m kaugusel, tagades töötajatele mugava ja lihtsa ligipääsu iga päev.
Ümbruses asuvad mitmed kaubandus-, teenindus- ja büroohooned, mis loovad piirkonnale mitmekesise ja aktiivse keskkonna. Lisaks asuvad lähedal Selveri ja Rimi toidukauplused.
Tegemist on ideaalse kohaga oma äri kasvatamiseks Tartus, pakkudes nii professionaalset keskkonda kui ka strateegilist asukohta.
Põhiomadused:
1. Kokku 203,70 m² büroopinda on võimalik kohandada vastavalt ettevõtte ärivajadustele;
2. Hoone paindlik konstruktiivne lahendus võimaldab ruume ümber planeerida, ühendada suuremateks pindadeks ning muuta nende paigutust ehituse algfaasis;
3. Hoone on projekteeritud kaasaegse A-energiaklassi hoonena;
4. Elava liiklusega tänavaäärne asukoht tagab nii klientidele kui ka töötajatele suurepärase nähtavuse ja mugava ligipääsu;
5. Mugavas läheduses asuvad Selveri ja Rimi toidupoed ja bensiinijaamad;
6. Tasuta parkimine kinnistul;
Ärge jätke kasutamata võimalust kindlustada enda ettevõttele koht selles uhiuues hoones juba täna!
Lisateabe saamiseks või vaatamise kokkuleppimiseks võtke meiega ühendust! Koos leiame sobivad lahendused!
JAGA MINU KONTAKTI KÕIGILE, KES VAJAVAD KINNISVARANÕU!
- - - - - - - - - -
Telli hindamine UUS MAA Kinnisvarabüroolt https://uusmaa.ee/teenused/hindamine/
UUS MAA KINNISVARABÜROO EKSPERTHINNANGUID AKTSEPTEERIVAD KÕIK FINANTSASUTUSED.
- - - - - - - - - -
Liitu Uus Maa uudiskirjaga ja saa homset kinnisvarainfot juba täna!
https://www.uusmaa.ee/uudiskirjagaliitumine/
- - - - - - - - - -
Kodu aitab osta Swedbank.
Pakkumise saamiseks kasuta koodi UUSMAA ja Sind teenindatakse eelisjärjekorras.
Võtame ühendust 1 tööpäeva jooksul.
Uus Maa kliendile soodsam lepingutasu. Küsi täpsemat infot maaklerilt.
Finantsteenuseid pakub Swedbank AS. Tutvu tingimustega, pea nõu.
Uus ärihoone asub aadressil Aardla 23 ning pakub sinu ettevõttele hea logistilise asukohaga töökeskkonda Tartus. Kolmandal korrusel asub esmaklassiline üüritavat pinda suurusega 203,7 m². Arendaja on siselahenduste osas paindlik ja üüripinna jaotuse ning siseviimistluse saab teha vastavalt kliendi soovile.
Kinnistu asub Ropka linnaosas, ligikaudu 2,5 km kaugusel kesklinnast ja paikneb tiheda Aardla tänava ääres. Ühistranspordi peatus asub vaid ca 100 m kaugusel, tagades töötajatele mugava ja lihtsa ligipääsu iga päev.
Ümbruses asuvad mitmed kaubandus-, teenindus- ja büroohooned, mis loovad piirkonnale mitmekesise ja aktiivse keskkonna. Lisaks asuvad lähedal Selveri ja Rimi toidukauplused.
Tegemist on ideaalse kohaga oma äri kasvatamiseks Tartus, pakkudes nii professionaalset keskkonda kui ka strateegilist asukohta.
Põhiomadused:
1. Kokku 203,70 m² büroopinda on võimalik kohandada vastavalt ettevõtte ärivajadustele;
2. Hoone paindlik konstruktiivne lahendus võimaldab ruume ümber planeerida, ühendada suuremateks pindadeks ning muuta nende paigutust ehituse algfaasis;
3. Hoone on projekteeritud kaasaegse A-energiaklassi hoonena;
4. Elava liiklusega tänavaäärne asukoht tagab nii klientidele kui ka töötajatele suurepärase nähtavuse ja mugava ligipääsu;
5. Mugavas läheduses asuvad Selveri ja Rimi toidupoed ja bensiinijaamad;
6. Tasuta parkimine kinnistul;
Ärge jätke kasutamata võimalust kindlustada enda ettevõttele koht selles uhiuues hoones juba täna!
Lisateabe saamiseks või vaatamise kokkuleppimiseks võtke meiega ühendust! Koos leiame sobivad lahendused!
JAGA MINU KONTAKTI KÕIGILE, KES VAJAVAD KINNISVARANÕU!
- - - - - - - - - -
Telli hindamine UUS MAA Kinnisvarabüroolt https://uusmaa.ee/teenused/hindamine/
UUS MAA KINNISVARABÜROO EKSPERTHINNANGUID AKTSEPTEERIVAD KÕIK FINANTSASUTUSED.
- - - - - - - - - -
Liitu Uus Maa uudiskirjaga ja saa homset kinnisvarainfot juba täna!
https://www.uusmaa.ee/uudiskirjagaliitumine/
- - - - - - - - - -
Kodu aitab osta Swedbank.
Pakkumise saamiseks kasuta koodi UUSMAA ja Sind teenindatakse eelisjärjekorras.
Võtame ühendust 1 tööpäeva jooksul.
Uus Maa kliendile soodsam lepingutasu. Küsi täpsemat infot maaklerilt.
Finantsteenuseid pakub Swedbank AS. Tutvu tingimustega, pea nõu.















