ÄRI- ja TOOTMISHOONED STRATEEGILISELT HEAS ASUKOHAS!
• Ehitame ja rendime Sulle välja uue ladu-kontor/stock-office tüüpi ärihoone!
• Hea nähtavus ja ligipääs Tallinn-Tartu maantee vahetusläheduses Ravila Tööstuspargis!
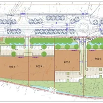
• 6 äri/tootmishoonet
• Strateegiliselt hea asukoht
• Erineva suurusega rendipinnad
Ärimajad koosnevad eri suurustega äri- ja laopindadest ning bürooruumidest.
Tegu on hea nähtavuse ja ligipääsetavusega kinnistuga. Väljakujunenud taristuga piirkond, millel on suurepärane ühendus linnaga!
Piltidel nähtav kõrgepingeliin viiakse maa alla.
Hindadele lisandub käibemaks ning ühekordne kinnisvarabüroo teenustasu.
Rohkem infot ***@***.ee või 56 *** ***.
• Ehitame ja rendime Sulle välja uue ladu-kontor/stock-office tüüpi ärihoone!
• Hea nähtavus ja ligipääs Tallinn-Tartu maantee vahetusläheduses Ravila Tööstuspargis!
• 6 äri/tootmishoonet
• Strateegiliselt hea asukoht
• Erineva suurusega rendipinnad
Ärimajad koosnevad eri suurustega äri- ja laopindadest ning bürooruumidest.
Tegu on hea nähtavuse ja ligipääsetavusega kinnistuga. Väljakujunenud taristuga piirkond, millel on suurepärane ühendus linnaga!
Piltidel nähtav kõrgepingeliin viiakse maa alla.
Hindadele lisandub käibemaks ning ühekordne kinnisvarabüroo teenustasu.
Rohkem infot ***@***.ee või 56 *** ***.
Kinnisvara hindamine ja kinnisvara müük Lahe Kinnisvara kutselistelt hindajatelt ja maakleritel, kes on pälvinud klientide kõrge tunnustuse!





















