Hea nähtavus ja ligipääsetavus – vahetult suure liiklustihedusega Viljandi maanteelt nähtav.
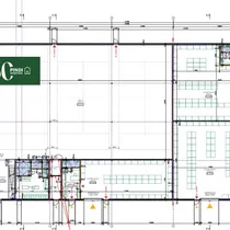
Aisa 4, Märja Tartu linn kinnistule ehitatav hoone on projekteeritud stock-office kontseptsiooni järgi, mis tähendab seda, et ettevõte saab kõik oma äriüksused (tootmise, lao, kontori ja esinduse) ühe katuse alla koondada ja seeläbi säästa logistika-, aja- ja kõrvalkuludelt. Lao- ja tootmisüksuste töö korraldamiseks, kauba väljapanekuks ja klientide-koostööpartnerite võõrustamiseks on hoonesse ette nähtud kompaktsed bürooplokid.
Saadaval veel 3 boksi
Äripind 1 (230 m²)
Aripind 2 ( 269,2 m²)
Äripind 3 (159,7)
On võimalus luua ruumilahendus vastavalt kliendi soovidele.
ÜÜRIHIND:
Lao, kaubanduse, büroo- ja tootmispinnad alates 7 eur/m² + km
Üürilevõtja tasub maakleritasu 1kuu üüri ulatuses.
(NB! Hetkel võimalik ehitada täpselt vastavalt kliendi vajadusele. )
Küsi julgelt infot juurde!
Saadan olemasolevad joonised, kus ruumi pindala ja siselahendus on vaid üks valiku võimalustest, mida saame vajadusel muuta.
Miks valida just Aisa 4, Märja?
1. Asub logistiliselt suurepärases asukohas - hea nähtavus ja ligipääs
2. Klient saab ise valida üüripinna suuruse ja määrata siselahenduse;
3. Lõunakeskus 2km läheduses.
4. Lao- ja tootmisruumide kõrgus on 7 m;
5. Säästlikud tarbimiskulud: keskküte, päikesepaneelid, LED valgustus;
6. Ligi nullenergiahoone, energiamärgis A;
7. Kinnistul on suur parkla.
8. Valgusreklaami paigaldamise võimalus hoone fassaadil.
Anna oma huvist märku ja leiame sobiva lahenduse!
-------------------------------------------------------------------------------------------------------------------------------------------------------
PANGA SOODUSTUSED Teeme koostööd kõikide suuremate pankadega! Meie kliendina teenindatakse Sind eelisjärjekorras ning kodulaenu lepingutasule kehtivad soodustused.
VAHENDAMINE Pindi Kinnisvara on pakkunud esindusteenust kinnisvaraturul alates 1995. aastast. Suurima Eesti kinnisvarabüroona oleme esindatud 18 linnas.
OSTUESINDUS Otsid endale kinnisvara? Muudame Sinu otsinguprotsessi sujuvaks ning meeldivaks kogemuseks. Meil on suur kliendibaas ja südikad maaklerid.
HINDAMINE Meie 30 kutselise hindaja eksperthinnanguid aktsepteerivad kõik finantsasutused! Hindame nii elukondlikku kui ärikinnisvara.
HALDAMINE Pakume kinnisvara haldamisel täislahendust: raamatupidamist, tehnosüsteemide hooldust, heakorratöid kinnistul ja hoones, ehituse- ja renoveerimistööde korraldamist, energia-, vee ja kommunikatsiooniteenuste vahendamist ja eripuhastusteenuseid.
JURIIDILINE NÕUSTAMINE Pindi Kinnisvara tütarettevõtte Realia Õigusbüroo spetsialistid on Sulle abiks kõigis kinnisvara puudutavates juriidilistes küsimustes.
Täpsemalt loe ja võta ühendust: https://www.pindi.ee/ või konsulteeri oma maakleriga.
Aisa 4, Märja Tartu linn kinnistule ehitatav hoone on projekteeritud stock-office kontseptsiooni järgi, mis tähendab seda, et ettevõte saab kõik oma äriüksused (tootmise, lao, kontori ja esinduse) ühe katuse alla koondada ja seeläbi säästa logistika-, aja- ja kõrvalkuludelt. Lao- ja tootmisüksuste töö korraldamiseks, kauba väljapanekuks ja klientide-koostööpartnerite võõrustamiseks on hoonesse ette nähtud kompaktsed bürooplokid.
Saadaval veel 3 boksi
Äripind 1 (230 m²)
Aripind 2 ( 269,2 m²)
Äripind 3 (159,7)
On võimalus luua ruumilahendus vastavalt kliendi soovidele.
ÜÜRIHIND:
Lao, kaubanduse, büroo- ja tootmispinnad alates 7 eur/m² + km
Üürilevõtja tasub maakleritasu 1kuu üüri ulatuses.
(NB! Hetkel võimalik ehitada täpselt vastavalt kliendi vajadusele. )
Küsi julgelt infot juurde!
Saadan olemasolevad joonised, kus ruumi pindala ja siselahendus on vaid üks valiku võimalustest, mida saame vajadusel muuta.
Miks valida just Aisa 4, Märja?
1. Asub logistiliselt suurepärases asukohas - hea nähtavus ja ligipääs
2. Klient saab ise valida üüripinna suuruse ja määrata siselahenduse;
3. Lõunakeskus 2km läheduses.
4. Lao- ja tootmisruumide kõrgus on 7 m;
5. Säästlikud tarbimiskulud: keskküte, päikesepaneelid, LED valgustus;
6. Ligi nullenergiahoone, energiamärgis A;
7. Kinnistul on suur parkla.
8. Valgusreklaami paigaldamise võimalus hoone fassaadil.
Anna oma huvist märku ja leiame sobiva lahenduse!
-------------------------------------------------------------------------------------------------------------------------------------------------------
PANGA SOODUSTUSED Teeme koostööd kõikide suuremate pankadega! Meie kliendina teenindatakse Sind eelisjärjekorras ning kodulaenu lepingutasule kehtivad soodustused.
VAHENDAMINE Pindi Kinnisvara on pakkunud esindusteenust kinnisvaraturul alates 1995. aastast. Suurima Eesti kinnisvarabüroona oleme esindatud 18 linnas.
OSTUESINDUS Otsid endale kinnisvara? Muudame Sinu otsinguprotsessi sujuvaks ning meeldivaks kogemuseks. Meil on suur kliendibaas ja südikad maaklerid.
HINDAMINE Meie 30 kutselise hindaja eksperthinnanguid aktsepteerivad kõik finantsasutused! Hindame nii elukondlikku kui ärikinnisvara.
HALDAMINE Pakume kinnisvara haldamisel täislahendust: raamatupidamist, tehnosüsteemide hooldust, heakorratöid kinnistul ja hoones, ehituse- ja renoveerimistööde korraldamist, energia-, vee ja kommunikatsiooniteenuste vahendamist ja eripuhastusteenuseid.
JURIIDILINE NÕUSTAMINE Pindi Kinnisvara tütarettevõtte Realia Õigusbüroo spetsialistid on Sulle abiks kõigis kinnisvara puudutavates juriidilistes küsimustes.
Täpsemalt loe ja võta ühendust: https://www.pindi.ee/ või konsulteeri oma maakleriga.














