Hoone paikneb logistiliselt soodsas piirkonnas, tagades kiire ligipääsu linnasiseselt ja ka linnaümbrusesse.
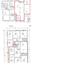
Kontoripind teisel korrusel: 150 m²
Lao- ja tootmispind esimesel korrusel: 320 m²
Kaks suurt laadimisust
Küttesüsteem: õlikatel, madalad kõrvalkulud
Parkimine hoone ees
Minimaalne üürilepingu pikkus - 3a.
Pind vabaneb November/Detsember 2025.
Rapla tänav asub Tallinna kesklinna logistiliselt aktiivses piirkonnas, kuhu on mugav ligipääs nii jalakäijatel, kui ka transpordivahenditega. Läheduses asuvad mitmed ärikvartalid ja teenindusasutused, mis toetavad ettevõtte nähtavust ja ligipääsetavust.
Sobib ladustamiseks, tootmiseks või kombineeritud ärilahenduseks.
Jaga minu kontakti kõigile, kes vajavad kinnisvaranõu!
Liitu meie uudiskirjaga ja saa homset kinnisvarainfot juba täna! Vaata https://arikinnisvara.uusmaa.ee
UUS MAA ÄRIKINNISVARA - aastakümned kogemust ja klientide usaldust, läbimõeldud täisteenus ja suurim arv eksperte: vahendamine, hindamine, haldamine, nõustamine ja investeerimine.
Kontoripind teisel korrusel: 150 m²
Lao- ja tootmispind esimesel korrusel: 320 m²
Kaks suurt laadimisust
Küttesüsteem: õlikatel, madalad kõrvalkulud
Parkimine hoone ees
Minimaalne üürilepingu pikkus - 3a.
Pind vabaneb November/Detsember 2025.
Rapla tänav asub Tallinna kesklinna logistiliselt aktiivses piirkonnas, kuhu on mugav ligipääs nii jalakäijatel, kui ka transpordivahenditega. Läheduses asuvad mitmed ärikvartalid ja teenindusasutused, mis toetavad ettevõtte nähtavust ja ligipääsetavust.
Sobib ladustamiseks, tootmiseks või kombineeritud ärilahenduseks.
Jaga minu kontakti kõigile, kes vajavad kinnisvaranõu!
Liitu meie uudiskirjaga ja saa homset kinnisvarainfot juba täna! Vaata https://arikinnisvara.uusmaa.ee
UUS MAA ÄRIKINNISVARA - aastakümned kogemust ja klientide usaldust, läbimõeldud täisteenus ja suurim arv eksperte: vahendamine, hindamine, haldamine, nõustamine ja investeerimine.































