Härgmäe 24 on uus kahekordne ladu-kontor-esindus ehk stock-office tüüpi ärihoone Paldiski maantee ääres asuvas Tähetorni Tehnopargis. Hoone valmis 2021. aastal.
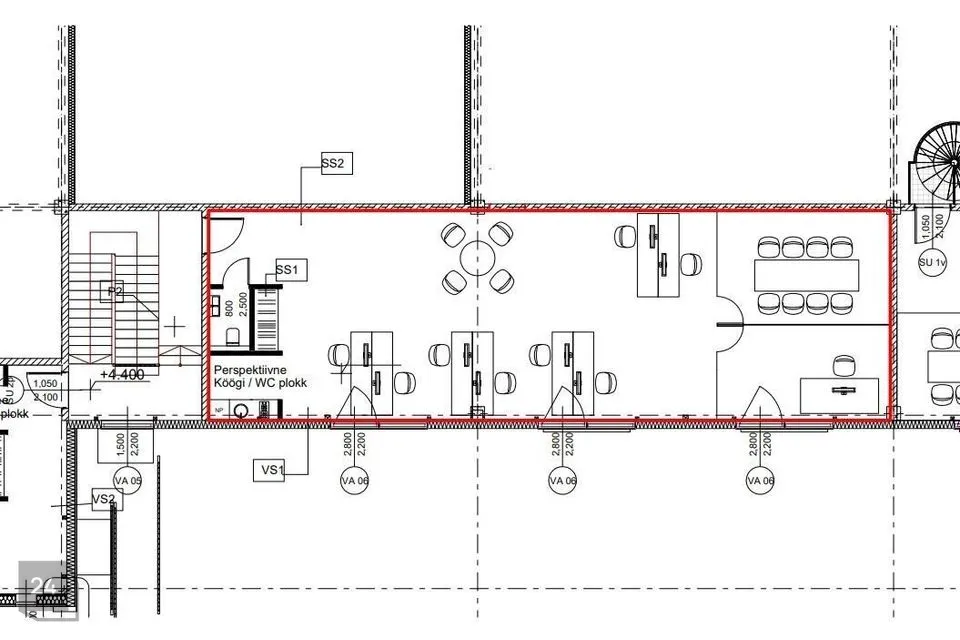
Anname Härgmäe 24 hoones üürile büroopinna kogupinnaga 140 m2. Büroopinna koosseisus on suur valgusküllane avatud tööala, nõupidamisruum, kabinett, tualettruum, garderoobinišš ja kööginurk. Büroopind antakse üürile ilma mööblita. Üüripind on vaba ning on võimalik kohe sisse kolida.
TÄHETORNI TEHNOPARK
Tähetorni Tehnopargis on valminud juba neli hoonet: Härgmäe 21, Härgmäe 22, Härgmäe 24 ja Mäeküla 7, mis on rahulolevate üürnikega täidetud. Teiste seas on Tähetorni Tehnopargi oma äri koduks valinud näiteks kõrge lennuga päikeseenergiast elektrit tootvate katusepaneelide autor Roofit.solar, innovaatilisi pakkelahenduse teenuseid osutav Heat3, looduslikke pesuvahendeid pakkuv Mulieres ja keretehnikute koolituste ja klassikaliste sõidukite restaureerimisega tegelev Benefit AS.
Äripargi eest jookseb kergliiklustee, mida mööda mõnusalt tööle kulgeda. Kõigi majade katuseid täidavad päikesepaneelid, mis toodavad väärtuslikku roheenergiat. Tähetorni Tehnopark on ka UpSteami keskkonnasõbraliku autopesu ametlik pesupunkt! Keskkonnasäästlikumaks liiklemiseks lisame lähiajal tehnoparki hulgaliselt elektriautode laadimiskohti, jalgrattahoidikuid ja juba on loodud jalakäijasõbraliku keskkond äripargi sees. Härgmäe 21 hoone ees on Paemurru bussipeatus ja oleme loonud bussipeatused ka Härgmäe 22 hoone ette, et tulevikus bussiliini võrgustikku äripargi sisse pikendada.
ASUKOHT
Tähetorni Tehnopark asub Haaberstis, Paldiski maantee ääres 12-minutilise autosõidu kaugusel kesklinnast. Tegu on aina areneva äriklastriga, mille uued läbimõeldud disainiga hooned moodustavad arhitektuurselt ühtse ja esindusliku terviku. Lisaks ei pea muretsema ruumipuuduse pärast – Tähetorni Tehnopark jätkab kasvamist ning laienemiseks on võimalik äriruume juurde võtta kõrvalolevatest hoonetest.
Transpordiameti andmetel möödub Tähetorni Tehnopargist ööpäevas üle 20 000 sõiduki, kellele end säravate valgusreklaamidega nähtavaks teha. Tehnopargi ja linna vahel on loodud ühistranspordi ühendus ning tagatud on logistiliselt mugavad ja kiired ühendused Paldiski sadama, Tallinna ringtee ning Tallinna ja Muuga sadamatega. Äriarenduse paiknemine linna ääres võimaldab tööle jõudmiseks kasutada alternatiivseid teid, millega saab vältida tipptunnil kesklinna ummikutes istumist.
Härgmäe 24 hoones on kasutatud kaasaegseid ja energiatõhusaid lahendusi.
- Programmeeritavad ligipääsusüsteemid
- Energiatõhusad LED-valgustid
- Moodsad ja kõrge resolutsiooniga turvakaamerad hoone perimeetril
- Üüriboksi valvestamine
- Valgusreklaam hoone fassaadil
- Boksipõhine kütte reguleerimine
- Soojustagastusega ventilatsioon büroos
- Mugav laadimine ning manööverdamine suurtele kaubaautodele
- Personaalsed parkimiskohad
Hoone energiatõhusust iseloomustavad madalad kõrvalkulud.
Lisainfo kodulehel tahetornitehnopark.favorte.ee
Küsi personaalset pakkumist!
*Hindadele lisandub käibemaks.
Härgmäe 24 on kolmas Tähetorni Tehnoparki ehitatud ärihoone. Tähetorni Tehnopargi 20,5 ha suurusele arendusalale ehitatakse ärihooneid, mis on sobilikud tootmis-, laondus-, logistika- ja kaubandusettevõtetele. Kokku on Tähetorni Tehnoparki kavandatud 12 ärihoonet pindalaga 60 000 m2.
Objekti arendab Favorte H24 OÜ, mis kuulub Favorte OÜ gruppi. Favorte on 1993. aastal asutatud Eesti kapitalil põhinev ettevõte. Meie eesmärk on olla asjatundlik ja toetav abiline sinu kinnisvaraalaste unistuse elluäratamisel! Kõik Tähetorni Tehnopargi ärihooned kuuluvad Favorte Stock kaubamärgi alla. Hoia meie tegemistel silma peal Favorte Kinnisvara sotsiaalmeedia lehtedel ja veebis www.favorte.ee!
Anname Härgmäe 24 hoones üürile büroopinna kogupinnaga 140 m2. Büroopinna koosseisus on suur valgusküllane avatud tööala, nõupidamisruum, kabinett, tualettruum, garderoobinišš ja kööginurk. Büroopind antakse üürile ilma mööblita. Üüripind on vaba ning on võimalik kohe sisse kolida.
TÄHETORNI TEHNOPARK
Tähetorni Tehnopargis on valminud juba neli hoonet: Härgmäe 21, Härgmäe 22, Härgmäe 24 ja Mäeküla 7, mis on rahulolevate üürnikega täidetud. Teiste seas on Tähetorni Tehnopargi oma äri koduks valinud näiteks kõrge lennuga päikeseenergiast elektrit tootvate katusepaneelide autor Roofit.solar, innovaatilisi pakkelahenduse teenuseid osutav Heat3, looduslikke pesuvahendeid pakkuv Mulieres ja keretehnikute koolituste ja klassikaliste sõidukite restaureerimisega tegelev Benefit AS.
Äripargi eest jookseb kergliiklustee, mida mööda mõnusalt tööle kulgeda. Kõigi majade katuseid täidavad päikesepaneelid, mis toodavad väärtuslikku roheenergiat. Tähetorni Tehnopark on ka UpSteami keskkonnasõbraliku autopesu ametlik pesupunkt! Keskkonnasäästlikumaks liiklemiseks lisame lähiajal tehnoparki hulgaliselt elektriautode laadimiskohti, jalgrattahoidikuid ja juba on loodud jalakäijasõbraliku keskkond äripargi sees. Härgmäe 21 hoone ees on Paemurru bussipeatus ja oleme loonud bussipeatused ka Härgmäe 22 hoone ette, et tulevikus bussiliini võrgustikku äripargi sisse pikendada.
ASUKOHT
Tähetorni Tehnopark asub Haaberstis, Paldiski maantee ääres 12-minutilise autosõidu kaugusel kesklinnast. Tegu on aina areneva äriklastriga, mille uued läbimõeldud disainiga hooned moodustavad arhitektuurselt ühtse ja esindusliku terviku. Lisaks ei pea muretsema ruumipuuduse pärast – Tähetorni Tehnopark jätkab kasvamist ning laienemiseks on võimalik äriruume juurde võtta kõrvalolevatest hoonetest.
Transpordiameti andmetel möödub Tähetorni Tehnopargist ööpäevas üle 20 000 sõiduki, kellele end säravate valgusreklaamidega nähtavaks teha. Tehnopargi ja linna vahel on loodud ühistranspordi ühendus ning tagatud on logistiliselt mugavad ja kiired ühendused Paldiski sadama, Tallinna ringtee ning Tallinna ja Muuga sadamatega. Äriarenduse paiknemine linna ääres võimaldab tööle jõudmiseks kasutada alternatiivseid teid, millega saab vältida tipptunnil kesklinna ummikutes istumist.
Härgmäe 24 hoones on kasutatud kaasaegseid ja energiatõhusaid lahendusi.
- Programmeeritavad ligipääsusüsteemid
- Energiatõhusad LED-valgustid
- Moodsad ja kõrge resolutsiooniga turvakaamerad hoone perimeetril
- Üüriboksi valvestamine
- Valgusreklaam hoone fassaadil
- Boksipõhine kütte reguleerimine
- Soojustagastusega ventilatsioon büroos
- Mugav laadimine ning manööverdamine suurtele kaubaautodele
- Personaalsed parkimiskohad
Hoone energiatõhusust iseloomustavad madalad kõrvalkulud.
Lisainfo kodulehel tahetornitehnopark.favorte.ee
Küsi personaalset pakkumist!
*Hindadele lisandub käibemaks.
Härgmäe 24 on kolmas Tähetorni Tehnoparki ehitatud ärihoone. Tähetorni Tehnopargi 20,5 ha suurusele arendusalale ehitatakse ärihooneid, mis on sobilikud tootmis-, laondus-, logistika- ja kaubandusettevõtetele. Kokku on Tähetorni Tehnoparki kavandatud 12 ärihoonet pindalaga 60 000 m2.
Objekti arendab Favorte H24 OÜ, mis kuulub Favorte OÜ gruppi. Favorte on 1993. aastal asutatud Eesti kapitalil põhinev ettevõte. Meie eesmärk on olla asjatundlik ja toetav abiline sinu kinnisvaraalaste unistuse elluäratamisel! Kõik Tähetorni Tehnopargi ärihooned kuuluvad Favorte Stock kaubamärgi alla. Hoia meie tegemistel silma peal Favorte Kinnisvara sotsiaalmeedia lehtedel ja veebis www.favorte.ee!


























