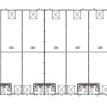
Anname Mäeküla 12 hoones üürile stock-office äripinna kogupinnaga 680,2 m2, millest 73,4 m2 on mõeldud kontori-/esindusruumide ning 606,8 m2 tootmis- ja/või laopinna jaoks. Hoone ümber on planeeritud ringliiklus ning hoone taga on piisavalt ruumi liikumiseks ka suurema kaubaautoga.
Mäeküla 12 saab olema uus kahekordne ladu-kontor-esindus ehk stock-office ärihoone Paldiski maantee ääres asuvas Tähetorni Tehnopargis. Stock-office kontseptsioon tähendab seda, et ettevõte saab kõik oma äriüksused (tootmise, lao, kontori ja esinduse) ühe katuse alla koondada ja seeläbi säästa logistika-, aja-, kommunikatsiooni-, personali- ja kõrvalkuludelt.
Kuna hoone on hetkel projekteerimise faasis, on soovi korral võimalus äripindu ühendada ja vajadusel moodustada nii ka suuremaid, 1300 kuni 4600 m2 äripindu. Võta ühendust, ning planeerime koos teie ettevõtte vajadustele vastavad ruumid!
Hoone projekteerimine on töös, üleandmiseks valmis 2026 detsembris. Prognoositud kõrvalkulude suurus on 1,7€/m2.
Vaata ka kodulehte: tahetornitehnopark.favorte.ee
NAABRID TÄHETORNI TEHNOPARGIS
Tähetorni Tehnopargis on valminud juba kuus hoonet: Härgmäe 20, Härgmäe 21, Härgmäe 22, Härgmäe 24, Mäeküla 7 ja Mäeküla 9, mis on rahulolevate üürnikega täidetud. Teiste seas on Tähetorni Tehnopargi oma äri koduks valinud näiteks kõrge lennuga päikeseenergiast elektrit tootvate katusepaneelide autor Roofit.solar, innovaatilisi pakkelahenduse teenuseid osutav Heat3, looduslikke pesuvahendeid pakkuv Mulieres ja keretehnikute koolituste ja klassikaliste sõidukite restaureerimisega tegelev Benefit AS.
ASUKOHT
Tähetorni Tehnopark asub Haaberstis, Paldiski maantee ääres 12-minutilise autosõidu kaugusel kesklinnast. Tegu on aina areneva äriklastriga, mille uued läbimõeldud disainiga hooned moodustavad arhitektuurselt ühtse ja esindusliku terviku. Lisaks ei pea muretsema ruumipuuduse pärast – Tähetorni Tehnopark jätkab kasvamist ning laienemiseks on võimalik äriruume juurde võtta kõrvalolevatest hoonetest.
Transpordiameti andmetel möödub Tähetorni Tehnopargist ööpäevas üle 20 000 sõiduki, kellele end säravate valgusreklaamidega nähtavaks teha. Tehnopargi ja linna vahel on loodud ühistranspordi ühendus ning tagatud on logistiliselt mugavad ja kiired ühendused Paldiski sadama, Tallinna ringtee ning Tallinna ja Muuga sadamatega. Äriarenduse paiknemine linna ääres võimaldab tööle jõudmiseks kasutada alternatiivseid teid, millega saab vältida tipptunnil kesklinna ummikutes istumist.
Keskkonnasäästlikumaks liiklemiseks lisame lähiajal tehnoparki hulgaliselt elektriautode laadimiskohti, jalgrattahoidikuid ja juba on loodud jalakäijasõbraliku keskkond äripargi sees. Härgmäe 21 hoone ees on Paemurru bussipeatus ja oleme loonud bussipeatused ka Härgmäe 22 hoone ette, et tulevikus bussiliini võrgustikku äripargi sisse pikendada. Boonusena jookseb äripargi eest kergliiklustee, mida mööda on samuti võimalus mõnusalt tööle kulgeda.
HOONE
- Programmeeritavad ligipääsusüsteemid
- Energiatõhusad LED-valgustid
- Moodsad ja kõrge resolutsiooniga turvakaamerad hoone perimeetril
- Üüriboksi valvestamine
- Valgusreklaam hoone fassaadil
- Boksipõhine kütte reguleerimine
- Soojustagastusega ventilatsioon büroos ja laos
- Suur ladustamiskõrgus
- Nutiladu - jälgi kaamerate ees toimuvat distantsilt ja juhi mobiiltelefoni rakenduse abil nii tõstandust kui valvesüsteemi
- Mugav laadimine ning manööverdamine suurtele kaubaautodele
- Personaalsed parkimiskohad
- Energiatõhusad lahendused, madalad kõrvalkulud
Kõik meie rajatud ärihooned kuuluvad Favorte Stock kaubamärgi alla.
FAVORTE STOCK
30 aastat kogemust
130+ rahulolevat äriklienti
80 000 m2 äripinda arendatud
175 000 m2 äripindu planeerimisel
Mäeküla 12 saab olema uus kahekordne ladu-kontor-esindus ehk stock-office ärihoone Paldiski maantee ääres asuvas Tähetorni Tehnopargis. Stock-office kontseptsioon tähendab seda, et ettevõte saab kõik oma äriüksused (tootmise, lao, kontori ja esinduse) ühe katuse alla koondada ja seeläbi säästa logistika-, aja-, kommunikatsiooni-, personali- ja kõrvalkuludelt.
Kuna hoone on hetkel projekteerimise faasis, on soovi korral võimalus äripindu ühendada ja vajadusel moodustada nii ka suuremaid, 1300 kuni 4600 m2 äripindu. Võta ühendust, ning planeerime koos teie ettevõtte vajadustele vastavad ruumid!
Hoone projekteerimine on töös, üleandmiseks valmis 2026 detsembris. Prognoositud kõrvalkulude suurus on 1,7€/m2.
Vaata ka kodulehte: tahetornitehnopark.favorte.ee
NAABRID TÄHETORNI TEHNOPARGIS
Tähetorni Tehnopargis on valminud juba kuus hoonet: Härgmäe 20, Härgmäe 21, Härgmäe 22, Härgmäe 24, Mäeküla 7 ja Mäeküla 9, mis on rahulolevate üürnikega täidetud. Teiste seas on Tähetorni Tehnopargi oma äri koduks valinud näiteks kõrge lennuga päikeseenergiast elektrit tootvate katusepaneelide autor Roofit.solar, innovaatilisi pakkelahenduse teenuseid osutav Heat3, looduslikke pesuvahendeid pakkuv Mulieres ja keretehnikute koolituste ja klassikaliste sõidukite restaureerimisega tegelev Benefit AS.
ASUKOHT
Tähetorni Tehnopark asub Haaberstis, Paldiski maantee ääres 12-minutilise autosõidu kaugusel kesklinnast. Tegu on aina areneva äriklastriga, mille uued läbimõeldud disainiga hooned moodustavad arhitektuurselt ühtse ja esindusliku terviku. Lisaks ei pea muretsema ruumipuuduse pärast – Tähetorni Tehnopark jätkab kasvamist ning laienemiseks on võimalik äriruume juurde võtta kõrvalolevatest hoonetest.
Transpordiameti andmetel möödub Tähetorni Tehnopargist ööpäevas üle 20 000 sõiduki, kellele end säravate valgusreklaamidega nähtavaks teha. Tehnopargi ja linna vahel on loodud ühistranspordi ühendus ning tagatud on logistiliselt mugavad ja kiired ühendused Paldiski sadama, Tallinna ringtee ning Tallinna ja Muuga sadamatega. Äriarenduse paiknemine linna ääres võimaldab tööle jõudmiseks kasutada alternatiivseid teid, millega saab vältida tipptunnil kesklinna ummikutes istumist.
Keskkonnasäästlikumaks liiklemiseks lisame lähiajal tehnoparki hulgaliselt elektriautode laadimiskohti, jalgrattahoidikuid ja juba on loodud jalakäijasõbraliku keskkond äripargi sees. Härgmäe 21 hoone ees on Paemurru bussipeatus ja oleme loonud bussipeatused ka Härgmäe 22 hoone ette, et tulevikus bussiliini võrgustikku äripargi sisse pikendada. Boonusena jookseb äripargi eest kergliiklustee, mida mööda on samuti võimalus mõnusalt tööle kulgeda.
HOONE
- Programmeeritavad ligipääsusüsteemid
- Energiatõhusad LED-valgustid
- Moodsad ja kõrge resolutsiooniga turvakaamerad hoone perimeetril
- Üüriboksi valvestamine
- Valgusreklaam hoone fassaadil
- Boksipõhine kütte reguleerimine
- Soojustagastusega ventilatsioon büroos ja laos
- Suur ladustamiskõrgus
- Nutiladu - jälgi kaamerate ees toimuvat distantsilt ja juhi mobiiltelefoni rakenduse abil nii tõstandust kui valvesüsteemi
- Mugav laadimine ning manööverdamine suurtele kaubaautodele
- Personaalsed parkimiskohad
- Energiatõhusad lahendused, madalad kõrvalkulud
Kõik meie rajatud ärihooned kuuluvad Favorte Stock kaubamärgi alla.
FAVORTE STOCK
30 aastat kogemust
130+ rahulolevat äriklienti
80 000 m2 äripinda arendatud
175 000 m2 äripindu planeerimisel
















