Anda üürile lao ja tootmisruumid Pirita Kosel.
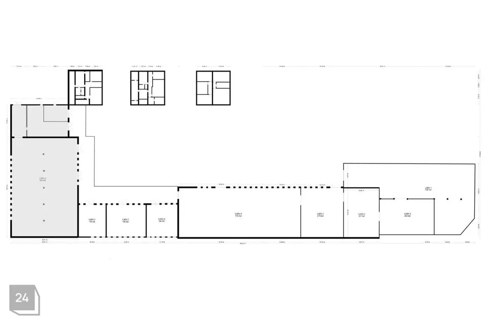
Aiaga piiratud territooriumil paiknevad tootmis ja laohooned on ehitatud aastatel 1975 – 2005. Hooned on omavahel ühenduses. Saab kasutusele võtta ka eraldatud hoonetena.
Hunditubaka tee 3 hoone on suurusega 2268 m2
Hunditubaka tee 7 Ladu ja adminstratiivhoone suurusega 1860 m2
Hunditubaka tee 7 Ladu 630 m2
Joonisel halli tooniga märgitud ruumid on üürile antud, ülejäänud ruumid on vabad. Kokku vaba üüritavat pinda 3800 m2.
Suur territoorium, väga head manööverdamise võimalused erineva suurusega veokitele.
Ruumides on tegutsenud pikka aega tekstiilitööstus.
Üürnik vähendas tegevust Eestist, mistõttu ka olemasolev leping lõpetatati.
Olemas vesi ja kanalisatsioon
Gaasiküte
Elektrivõimsus: 200A + 250A
Lao kõrgus fermini 5,5 m
Tasuta parkimine hoovis
Huvi korral võta ühendust ja küsi lisa.
Jaga minu kontakti kõigile, kes vajavad kinnisvaranõu!
Liitu meie uudiskirjaga ja saa homset kinnisvarainfot juba täna! Vaata https://arikinnisvara.uusmaa.ee
UUS MAA ÄRIKINNISVARA - aastakümned kogemust ja klientide usaldust, läbimõeldud täisteenus ja suurim arv eksperte: vahendamine, hindamine, haldamine, nõustamine ja investeerimine.
Aiaga piiratud territooriumil paiknevad tootmis ja laohooned on ehitatud aastatel 1975 – 2005. Hooned on omavahel ühenduses. Saab kasutusele võtta ka eraldatud hoonetena.
Hunditubaka tee 3 hoone on suurusega 2268 m2
Hunditubaka tee 7 Ladu ja adminstratiivhoone suurusega 1860 m2
Hunditubaka tee 7 Ladu 630 m2
Joonisel halli tooniga märgitud ruumid on üürile antud, ülejäänud ruumid on vabad. Kokku vaba üüritavat pinda 3800 m2.
Suur territoorium, väga head manööverdamise võimalused erineva suurusega veokitele.
Ruumides on tegutsenud pikka aega tekstiilitööstus.
Üürnik vähendas tegevust Eestist, mistõttu ka olemasolev leping lõpetatati.
Olemas vesi ja kanalisatsioon
Gaasiküte
Elektrivõimsus: 200A + 250A
Lao kõrgus fermini 5,5 m
Tasuta parkimine hoovis
Huvi korral võta ühendust ja küsi lisa.
Jaga minu kontakti kõigile, kes vajavad kinnisvaranõu!
Liitu meie uudiskirjaga ja saa homset kinnisvarainfot juba täna! Vaata https://arikinnisvara.uusmaa.ee
UUS MAA ÄRIKINNISVARA - aastakümned kogemust ja klientide usaldust, läbimõeldud täisteenus ja suurim arv eksperte: vahendamine, hindamine, haldamine, nõustamine ja investeerimine.









































