Anda üürile kaasaegne kahe kabinetiga bürooruum Tallinna kesklinnas – Narva mnt 7 (Triumph Plaza)
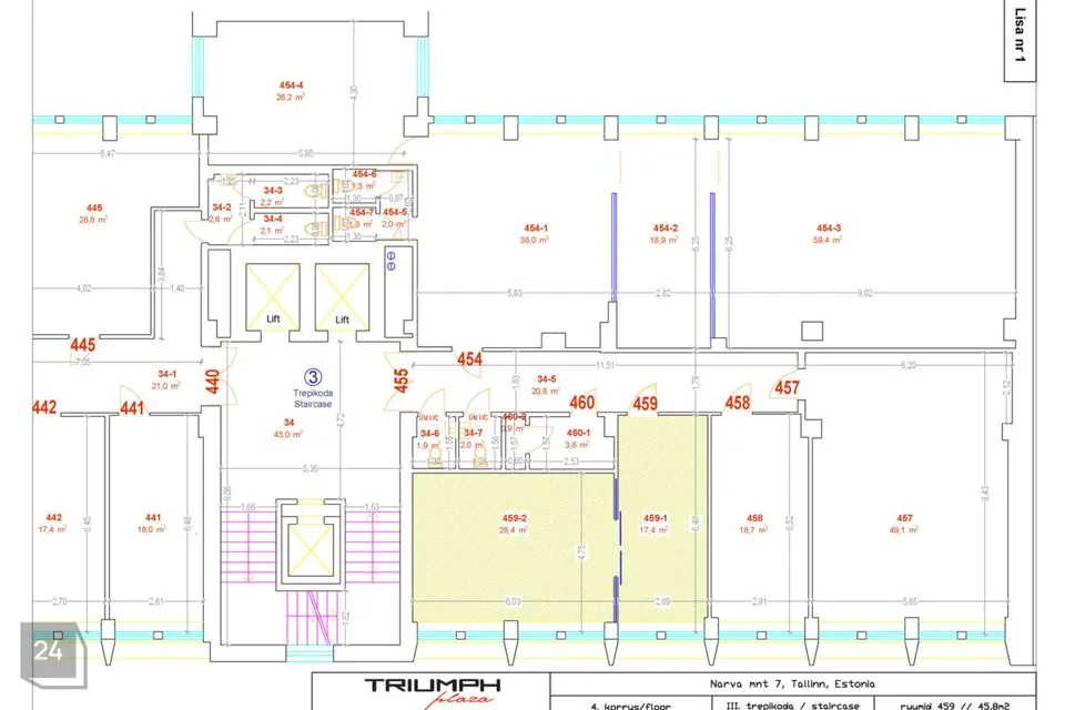
Otse omanikult on üürile anda valgusküllane ja funktsionaalne bürooruum suurusega 45,8 m², mis asub Narva mnt 7 hoone 4. korrusel esinduslikus Triumph Plaza ärihoones.
Ruum koosneb kahest eraldi kabinetist, mida eraldab klaassein koos klaasist lükanduksega, pakkudes head tasakaalu avatud tööala ja privaatsuse vahel. Aknad on avatavad ning avanevad Narva maantee poole.
Ruumide omadused:
+ 2 eraldi kabinetti
+ Klaasist vahesein ja lükanduks
+ Avatavad aknad, vaade Narva mnt poole
+ Konditsioneer
+ Kaasaegne LED-valgustus
+ Korralik ja neutraalne siseviimistlus
Parkimine:
Hoone taga asub kolmekorruseline parkimismaja, kasutatav 24/7.
Võimalus üürida parkimiskoht hinnaga 80 € + km kuus.
Turvalisus:
Hoones on ööpäevaringne mehitatud valve, mis tagab turvalise ja rahuliku töökeskkonna.
Asukoht:
Triumph Plaza paikneb Tallinna kesklinna äritegevuse südames, vahetus läheduses vanalinnale. Hoone on ehitatud 1980. aastal, põhjalikult renoveeritud 2006. aastal ning esimese korruse fuajeed on hiljuti uuendatud, pakkudes esinduslikku ja kaasaegset ärikeskkonda.
Tutvumine:
Ruumiga saab tutvuda tööpäeviti (E–R) kell 09:00–17:00, eelneval kokkuleppel.
Otse omanikult on üürile anda valgusküllane ja funktsionaalne bürooruum suurusega 45,8 m², mis asub Narva mnt 7 hoone 4. korrusel esinduslikus Triumph Plaza ärihoones.
Ruum koosneb kahest eraldi kabinetist, mida eraldab klaassein koos klaasist lükanduksega, pakkudes head tasakaalu avatud tööala ja privaatsuse vahel. Aknad on avatavad ning avanevad Narva maantee poole.
Ruumide omadused:
+ 2 eraldi kabinetti
+ Klaasist vahesein ja lükanduks
+ Avatavad aknad, vaade Narva mnt poole
+ Konditsioneer
+ Kaasaegne LED-valgustus
+ Korralik ja neutraalne siseviimistlus
Parkimine:
Hoone taga asub kolmekorruseline parkimismaja, kasutatav 24/7.
Võimalus üürida parkimiskoht hinnaga 80 € + km kuus.
Turvalisus:
Hoones on ööpäevaringne mehitatud valve, mis tagab turvalise ja rahuliku töökeskkonna.
Asukoht:
Triumph Plaza paikneb Tallinna kesklinna äritegevuse südames, vahetus läheduses vanalinnale. Hoone on ehitatud 1980. aastal, põhjalikult renoveeritud 2006. aastal ning esimese korruse fuajeed on hiljuti uuendatud, pakkudes esinduslikku ja kaasaegset ärikeskkonda.
Tutvumine:
Ruumiga saab tutvuda tööpäeviti (E–R) kell 09:00–17:00, eelneval kokkuleppel.



























