Üürile anda 1.korruse äripind 2024. aastal valminud hoones Põhja-Tallinnas Wise peakontori kõrvalhoones.
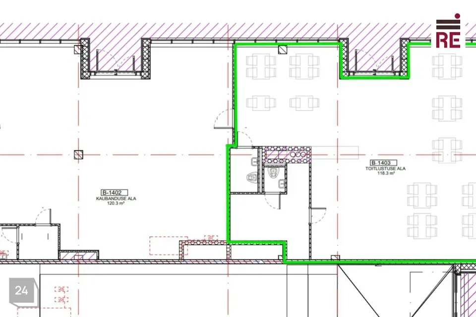
Pakutav äriruum asub Volta 1 kvartali C-hoones ja see paikneb vahetult Volta tänava ääres ja sellel on suured aknad ning suurte klaasustega sissepääs otse tänavalt. Ruumides on tualett külalistele ja eraldi ruum tualetiga personalile ning toitlustuspinnaks vajalik ventilatsioonivõimekus, kubu ja köögitehnika on vaja lisada üürniku poolt.
Ruumide üürile võtmine on vahendustasuta.
Üürihinnale lisanduvad kõrvalkulud ja käibemaks.
Teisi pakkumisi Volta 1 ärikvartalis saab vaadata siin - https://re.ee/kinnisvaraprojekt/aripinnad/kaubandus-teenindus/volta-1/
Kui soovite ruume vaadata või rohkem infot, siis palun võtke ühendust.
____________
Volta 1 ärikvartal asub Volta ja Kopli tänava nurgal, kunagise AS Franz Krulli masinatehase territoorumil ja koosneb 3 hoonest ning nende vahele jäävast pargialast.
- A-hoone on 1970. aasta paiku rajatud endine Tallinna Masinatehase administratiivhoone, mis renoveeriti kaasaegseks ärihooneks. Hoone valmis 2022. aasta alguses.
- B-hoone on 1899. aastal ehitatud ajalooline paekivist tootmishoone, mis renoveeritakse moodsaks ning atraktiivseks büroohooneks. Hoone valmib 2025. aastal.
C-hoone Volta tänava äärde rajatav uus hoone. Hoone valmis 2024. aasta sügisel ja selle 1. korrusel on üürile anda kaubandus- ja teeninduspinnad.
RE Kinnisvara AS on tegutsenud 1995. aastast, olles üks vanimaid Eesti kinnisvaraettevõtteid.
Pakume kinnisvaraga seotud täisteenust:
- äri- ja elamispindade maaklerteenus
- kinnisvara hindamine laenu tagatiseks, sh kohtutele, finantsaruandluseks jne.
- äri- ja elukondlike arendusprojektide müügikorraldus
- kinnisvaraturu ja -projektide analüüs ja konsultatsioon
- kinnisvara seadustamine
Teeme koostööd kõigi Eesti pankade ja finantsasutustega. Meie eksperthinnangud on aktsepteeritud kõigi Eestis tegutsevate krediidiasutuste poolt.
Tutvu lähemalt re.ee.
RE Kinnisvara AS – PARIM OSA KINNISVARAST
Helista 66 88 666 või saada e-mail ***@***.ee
https://facebook.com/re.kinnisvara
https://www.instagram.com/rekinnisvara/
https://ee.linkedin.com/company/re-kinnisvara
Pakutav äriruum asub Volta 1 kvartali C-hoones ja see paikneb vahetult Volta tänava ääres ja sellel on suured aknad ning suurte klaasustega sissepääs otse tänavalt. Ruumides on tualett külalistele ja eraldi ruum tualetiga personalile ning toitlustuspinnaks vajalik ventilatsioonivõimekus, kubu ja köögitehnika on vaja lisada üürniku poolt.
Ruumide üürile võtmine on vahendustasuta.
Üürihinnale lisanduvad kõrvalkulud ja käibemaks.
Teisi pakkumisi Volta 1 ärikvartalis saab vaadata siin - https://re.ee/kinnisvaraprojekt/aripinnad/kaubandus-teenindus/volta-1/
Kui soovite ruume vaadata või rohkem infot, siis palun võtke ühendust.
____________
Volta 1 ärikvartal asub Volta ja Kopli tänava nurgal, kunagise AS Franz Krulli masinatehase territoorumil ja koosneb 3 hoonest ning nende vahele jäävast pargialast.
- A-hoone on 1970. aasta paiku rajatud endine Tallinna Masinatehase administratiivhoone, mis renoveeriti kaasaegseks ärihooneks. Hoone valmis 2022. aasta alguses.
- B-hoone on 1899. aastal ehitatud ajalooline paekivist tootmishoone, mis renoveeritakse moodsaks ning atraktiivseks büroohooneks. Hoone valmib 2025. aastal.
C-hoone Volta tänava äärde rajatav uus hoone. Hoone valmis 2024. aasta sügisel ja selle 1. korrusel on üürile anda kaubandus- ja teeninduspinnad.
RE Kinnisvara AS on tegutsenud 1995. aastast, olles üks vanimaid Eesti kinnisvaraettevõtteid.
Pakume kinnisvaraga seotud täisteenust:
- äri- ja elamispindade maaklerteenus
- kinnisvara hindamine laenu tagatiseks, sh kohtutele, finantsaruandluseks jne.
- äri- ja elukondlike arendusprojektide müügikorraldus
- kinnisvaraturu ja -projektide analüüs ja konsultatsioon
- kinnisvara seadustamine
Teeme koostööd kõigi Eesti pankade ja finantsasutustega. Meie eksperthinnangud on aktsepteeritud kõigi Eestis tegutsevate krediidiasutuste poolt.
Tutvu lähemalt re.ee.
RE Kinnisvara AS – PARIM OSA KINNISVARAST
Helista 66 88 666 või saada e-mail ***@***.ee
https://facebook.com/re.kinnisvara
https://www.instagram.com/rekinnisvara/
https://ee.linkedin.com/company/re-kinnisvara





















