Üürile anda suurepärase nähtavusega äripind Mustamäe ja Kadaka tee ristmikul.
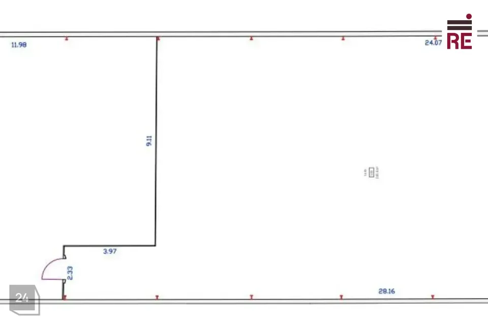
Üüritav pind on jaotatud kaheks: müügisaal ja ladu. Ladu moodustab ca 285 m2 ja müügisaal on ca 205 m2.
Pinnale on kaks ligipääsu, millest üks viib müügisaali ning teine läbi tõstvärava (3,2m x 3,4m) laopinnale. Laadmise jaoks on laadimissild. Pinnale pääseb ligi 24/7
Pind sobib kaubanduseks, laoks või tootmiseks.
Hoone on kergesti ligipääsetav nii auto, veomasina kui ka ühistranspordiga. Parkimine toimub avaras parklas ja on tasuta. Läheduses asuvad mitmed ühistranspordipeatused.
Üürihinnale lisanduvad mõõdetavad kulud ja käibemaks.
Lepingu sõlmimisel tuleb tasuda vahendustasu 50% ühe kuu üürihinnast + km.
Pind vabaneb 2026 jaanuari lõpus!
Huvi korral võtke minuga julgelt ühendust!
Vaadake ka teisi lao pakkumisi: http://www.re.ee/aripinnad/lao-ja-tootmispinnad/
RE Kinnisvara AS on tegutsenud 1995. aastast, olles üks vanimaid Eesti kinnisvaraettevõtteid.
Pakume kinnisvaraga seotud täisteenust:
- äri- ja elamispindade maaklerteenus
- kinnisvara hindamine laenu tagatiseks, sh kohtutele, finantsaruandluseks jne.
- äri- ja elukondlike arendusprojektide müügikorraldus
- kinnisvaraturu ja -projektide analüüs ja konsultatsioon
- kinnisvara seadustamine
Teeme koostööd kõigi Eesti pankade ja finantsasutustega. Meie eksperthinnangud on aktsepteeritud kõigi Eestis tegutsevate krediidiasutuste poolt.
Tutvu lähemalt re.ee.
RE Kinnisvara AS – PARIM OSA KINNISVARAST
Helista 66 88 666 või saada e-mail ***@***.ee
https://facebook.com/re.kinnisvara
https://www.instagram.com/rekinnisvara/
https://ee.linkedin.com/company/re-kinnisvara
Üüritav pind on jaotatud kaheks: müügisaal ja ladu. Ladu moodustab ca 285 m2 ja müügisaal on ca 205 m2.
Pinnale on kaks ligipääsu, millest üks viib müügisaali ning teine läbi tõstvärava (3,2m x 3,4m) laopinnale. Laadmise jaoks on laadimissild. Pinnale pääseb ligi 24/7
Pind sobib kaubanduseks, laoks või tootmiseks.
Hoone on kergesti ligipääsetav nii auto, veomasina kui ka ühistranspordiga. Parkimine toimub avaras parklas ja on tasuta. Läheduses asuvad mitmed ühistranspordipeatused.
Üürihinnale lisanduvad mõõdetavad kulud ja käibemaks.
Lepingu sõlmimisel tuleb tasuda vahendustasu 50% ühe kuu üürihinnast + km.
Pind vabaneb 2026 jaanuari lõpus!
Huvi korral võtke minuga julgelt ühendust!
Vaadake ka teisi lao pakkumisi: http://www.re.ee/aripinnad/lao-ja-tootmispinnad/
RE Kinnisvara AS on tegutsenud 1995. aastast, olles üks vanimaid Eesti kinnisvaraettevõtteid.
Pakume kinnisvaraga seotud täisteenust:
- äri- ja elamispindade maaklerteenus
- kinnisvara hindamine laenu tagatiseks, sh kohtutele, finantsaruandluseks jne.
- äri- ja elukondlike arendusprojektide müügikorraldus
- kinnisvaraturu ja -projektide analüüs ja konsultatsioon
- kinnisvara seadustamine
Teeme koostööd kõigi Eesti pankade ja finantsasutustega. Meie eksperthinnangud on aktsepteeritud kõigi Eestis tegutsevate krediidiasutuste poolt.
Tutvu lähemalt re.ee.
RE Kinnisvara AS – PARIM OSA KINNISVARAST
Helista 66 88 666 või saada e-mail ***@***.ee
https://facebook.com/re.kinnisvara
https://www.instagram.com/rekinnisvara/
https://ee.linkedin.com/company/re-kinnisvara
















