Üürile anda väga ilus ja hubane kontor südalinnas eestiaegses büroohoones.
Kontor asub hoovimaja III korrusel, sissepääs sisehoovist.
Aknad avanevad sisehoovi ja maja taha rohelusse, vaikne ja rahulik töökeskkond.
Väga suured aknad, palju valgust ja avarust. Ruumides on kõrged laed, parkettpõrandad, sundventilatsioon.
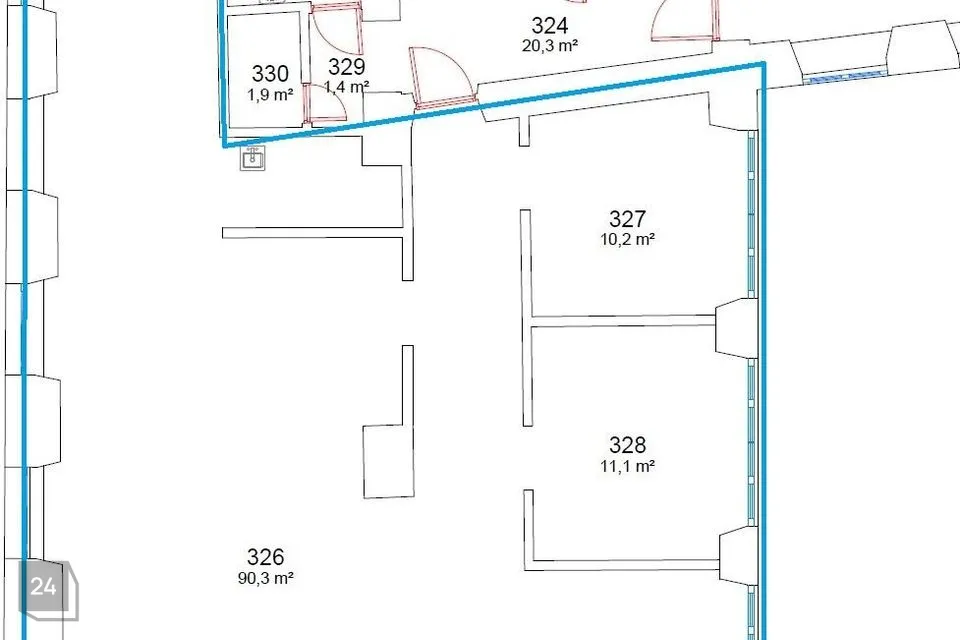
Ruumid jaotuvad suuremaks avatud L-kujuliseks tööruumiks, olemas on 2 eraldi tuba (puhkeruum, koosolekute ruum või kabinetid) ning kööginurk (sh külmik, mikrolaineahi).
Sissepääs on Pärnu mnt läbi kangialuse sisehoovist. Hoones on lift, keskküte, kiire internet. Naabriteks bürood ning loomingulised ettevõtted. Hoone asub Vabaduse Väljaku ja Hotell Palace naabruses. Piirkonnas asub palju kohvikuid, kõrvalhoones Rimi kauplus, samuti asub seal avalik parkimismaja. Hea ühistranspordiühendus.
- üürihinnas sisalduvad kõik kulud (v.a. kliendi internet ja ruumide koristus)
- üürile lisandub km
- tagatisraha 2 kuu üür + km
- vahendustasu ei lisandu, pakkumine otse omanikult
- ruumid on kohe saadaval
- sisehoovis parklas võimalik üürida 1-2 parkimiskohta
Kontor asub hoovimaja III korrusel, sissepääs sisehoovist.
Aknad avanevad sisehoovi ja maja taha rohelusse, vaikne ja rahulik töökeskkond.
Väga suured aknad, palju valgust ja avarust. Ruumides on kõrged laed, parkettpõrandad, sundventilatsioon.
Ruumid jaotuvad suuremaks avatud L-kujuliseks tööruumiks, olemas on 2 eraldi tuba (puhkeruum, koosolekute ruum või kabinetid) ning kööginurk (sh külmik, mikrolaineahi).
Sissepääs on Pärnu mnt läbi kangialuse sisehoovist. Hoones on lift, keskküte, kiire internet. Naabriteks bürood ning loomingulised ettevõtted. Hoone asub Vabaduse Väljaku ja Hotell Palace naabruses. Piirkonnas asub palju kohvikuid, kõrvalhoones Rimi kauplus, samuti asub seal avalik parkimismaja. Hea ühistranspordiühendus.
- üürihinnas sisalduvad kõik kulud (v.a. kliendi internet ja ruumide koristus)
- üürile lisandub km
- tagatisraha 2 kuu üür + km
- vahendustasu ei lisandu, pakkumine otse omanikult
- ruumid on kohe saadaval
- sisehoovis parklas võimalik üürida 1-2 parkimiskohta































