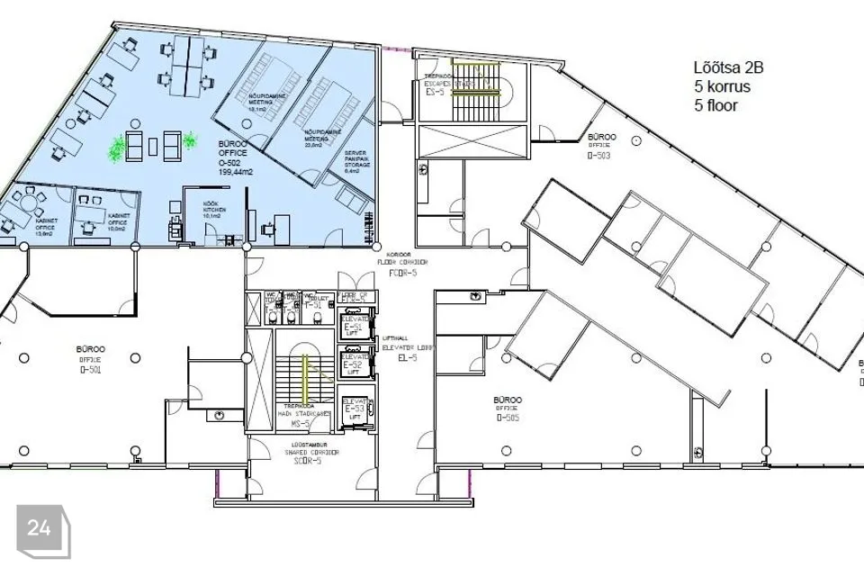
Anda üürile viiendal korrusel asuv büroopind Puusepa B majas.
RUUMIPLANEERING
Büroopind on ruumiplaneeringult järgmine: vastuvõtuala, 2 koosolekuruumi, panipaik/serveriruum, köök, avatud bürooala ja 2 väiksemat kabinetti.
Tualetid on ühiskasutatavad ja asuvad samal korrusel koridoris. Esimesel korrusel asuvad ühiskasutatav duširuum.
PUUSEPA B MAJA:
Eesti neurokirurgia teerajaja Ludvig Puusepa nimeline kahest 10-korruselisest tornmajast koosnev büroohoone asub Suur-Sõjamäe ja Lõõtsa tänava nurgal aadressil Lõõtsa 2A/2B.
2007.a ehitatud suurtest klaaspindadest koosnevad kaksiktornid on valgusküllased ja avarad. B torni ülemistelt korrustelt avanevad suurepärased vaated Tallinnale ja Ülemiste City pargile. Avarate vaadete vahel on hoones paiknevatele kontoriruumidele leitud erinevaid lahendusi, alates valgusküllasest avatud büroost kuni mugava kabinetisüsteemini.
Kahte hoonet seob ühtseks tervikuks sisehoov, mis mõjub kaasaegse klaasfassaadi kõrval soojalt ja koduselt ning tagab mõnusa ülemineku välisruumist siseruumi. Tööpäevadel tervitab sind avaras esindusfuajees vastuvõtuassistent, muul ajal tagab läbipääsu kaardisüsteem. Maja esimesel korrusel on atraktiivsed ja suurepärase nähtavusega äripinnad millel on ka oma sissepääs. Esimesele korrusel asub ka HUB väikekontorite ala. Maja kõrgematele korrustele pääseb vastuvõtualast kahe liftiga, kaupade transpordiks on mõeldud eraldi lift, mis asub kohe sissepääsu juures.
Puusepa B majale on väljastatud LEED Gold sertifikaat.
Puusepa kaksiktornid on varustatud kaasaegsete tehniliste lahendustega – turva-, side-, kliima- ja ventilatsioonisüsteemidega. Igal korrusel on kontoripinda ligikaudu 900 m2, mis on jaotatud klientidele sobivateks büroodeks. Mõlemas hoones on 1. korrusel üüritavad laoruumid ja klientidele mõeldud duširuumid.
LINNAKU TOITLUSTUS JA TEENUSED:
Ülemiste Citys on 10 erinevat lõunarestorani, mis pakuvad mitmekesiseid maitseelamusi kogu maailmast. Lisaks 2 R-Kioskit ja suuremateks ostudeks Selver abc, kus on rikkalik sooja toidu ja salati lett. Linnakus on ka spordiklubi, suurel hulgal rattaparklaid ja laialt ilu- ja vaba aja teenuseid ning kaunid pargid, kus lõõgastuda või lõunat süüa. Lühikese jalutuskäigu kaugusele jääv Ülemiste keskus pakub veel lisaks laia valikut restorane, poode ja teenuseid.
ASUKOHT:
Ülemiste City asub transpordivõimaluste tuiksoonel, mille ühel küljel on Tallinna lennujaam, teisel aga tulevane Rail Baltica terminal ja uus bussijaam. Sadam jääb linnakust vaid kümne minuti autosõidu kaugusele ja Peterburi teele ning Tartu maanteele saad keerata otse kvartalist väljudes.
Siia saab igast linnajaost mugavalt bussiga ja ka rongiga, säästes nii linnaruumi ja loodust. Hetkel on trammiliin peatatud, kuid avatakse taas 2026 aastal.
https://www.ulemistecity.ee/kuidas-tulla/
MUGAV PARKIMINE:
Ülemiste City autoparklad mahutavad kokku üle 3300 sõiduauto ja parkimiskoht ei jää kontorihoonest kaugemale kui 150m. Üüripinna parkimine on lahendatud parkimismajades ja soovitav tasuliste parkimiskohtade arv lisatakse üürihinnale. Lisaks parkimismajadele, kus külalisel on 1h tasuta parkimist on linnakus ka suured väliparklad, kus külalistele on parkimine parkimiskellaga 2h tasuta.
TUGITEENUSED:
Uue asukohaga, kaasneb tavaliselt palju sekeldusi, kes koristab kontorit, kes aitab sisekujundusega, kes lööb naela seina või kus saab käia poes, juuksuris või spordiklubis. Ülemiste linnakus oleme need probleemid lahendanud sinu eest.
Ülemiste City hoonetes on olemas: konverentsi ja koosolekuruumid koos toitlustusega; vastuvõtulaua assistendid, kes tervitavad külalisi ja aitavad murede korral; koristus-, ja hooldusteenus koos meistrimehega; LED ekraanid, selleks et saaksid oma ettevõtte teha nähtavaks ja kaasata uusi kliente; riietus-, ja dušši ruumid sportlikuks eluviisi toetamiseks; hulgaliselt turvalisi rattaparklaid, samuti ka sisekujundaja, et kontori ülesehitus toetaks tööstiili. Kõike seda ikka selleks, et saaksid tegeleda oma tähtsate tööülesannetega ja kontor oleks täpselt sellise ülesehitusega nagu sinu ettevõttel vaja.
VISIOONIGA LINN:
Ülemiste City on rahvusvaheline ja mitmekesine keskkond, mille keskmes on talentidele loodud teadmispõhise töö-, arengu- ja elukeskkonna arendamine, mis toetab iga kogukonna liikme konkurentsivõimet maailmas, meelitab lahkunud talendid tagasi koju ning inspireerib uute ärimudelite teket. Ülemiste City on ühtselt hingav tervik, mis pakub inspireerivat keskkonda meie helgetele peadele ja loob samas viljaka kasvulava tuleviku tegijatele ja innovaatoritele.
Ülemiste City näol on ajaloolisele tööstuspiirkonnale antud uus elu ja hingamine. Siin paiknevad kõrvuti 19. sajandi tööstusarhitektuur ja modernne linnaruum, mis on kasvatanud Ülemiste City Baltimaade suurimaks ja kõige kiiremini kasvavaks ärilinnakuks.
ARENDAJA:
Mainor Ülemiste, Eesti suurim ärikinnisvara arendaja, on pika ajalooga Mainor Grupi tütarettevõte. Mainor Ülemiste põhitegevus on Baltimaade suurima ärilinnaku, rahvusvahelise haardega atraktiivse ja teadmispõhise Ülemiste City arendamine. Linnaku 30-l hektaril on välja ehitatud 167 000 ruutmeetrit üüritavat büroopinda, kus tegutseb kokku ligi 500 erineva suurusega ettevõtet.
KOGUKOND:
Ülemiste City rahvusvaheline kogukond kasvab aasta-aastalt – tänaseks töötab, õpib või elab linnakus ligi 17 000 talenti. Aastas toimub siin üle 100 erineva sündmuse – kontserdid, spordiüritused, näitused, peod, häkid, seminarid, live-ülekanded, töötoad ning palju muud põnevat. Kui soovid uute tehnoloogiate testimisel või rohelisema tuleviku loomisel kaasa lüüa, siis see kogukond on Sulle!
Vaata lisaks: https://www.ulemistecity.ee/
RUUMIPLANEERING
Büroopind on ruumiplaneeringult järgmine: vastuvõtuala, 2 koosolekuruumi, panipaik/serveriruum, köök, avatud bürooala ja 2 väiksemat kabinetti.
Tualetid on ühiskasutatavad ja asuvad samal korrusel koridoris. Esimesel korrusel asuvad ühiskasutatav duširuum.
PUUSEPA B MAJA:
Eesti neurokirurgia teerajaja Ludvig Puusepa nimeline kahest 10-korruselisest tornmajast koosnev büroohoone asub Suur-Sõjamäe ja Lõõtsa tänava nurgal aadressil Lõõtsa 2A/2B.
2007.a ehitatud suurtest klaaspindadest koosnevad kaksiktornid on valgusküllased ja avarad. B torni ülemistelt korrustelt avanevad suurepärased vaated Tallinnale ja Ülemiste City pargile. Avarate vaadete vahel on hoones paiknevatele kontoriruumidele leitud erinevaid lahendusi, alates valgusküllasest avatud büroost kuni mugava kabinetisüsteemini.
Kahte hoonet seob ühtseks tervikuks sisehoov, mis mõjub kaasaegse klaasfassaadi kõrval soojalt ja koduselt ning tagab mõnusa ülemineku välisruumist siseruumi. Tööpäevadel tervitab sind avaras esindusfuajees vastuvõtuassistent, muul ajal tagab läbipääsu kaardisüsteem. Maja esimesel korrusel on atraktiivsed ja suurepärase nähtavusega äripinnad millel on ka oma sissepääs. Esimesele korrusel asub ka HUB väikekontorite ala. Maja kõrgematele korrustele pääseb vastuvõtualast kahe liftiga, kaupade transpordiks on mõeldud eraldi lift, mis asub kohe sissepääsu juures.
Puusepa B majale on väljastatud LEED Gold sertifikaat.
Puusepa kaksiktornid on varustatud kaasaegsete tehniliste lahendustega – turva-, side-, kliima- ja ventilatsioonisüsteemidega. Igal korrusel on kontoripinda ligikaudu 900 m2, mis on jaotatud klientidele sobivateks büroodeks. Mõlemas hoones on 1. korrusel üüritavad laoruumid ja klientidele mõeldud duširuumid.
LINNAKU TOITLUSTUS JA TEENUSED:
Ülemiste Citys on 10 erinevat lõunarestorani, mis pakuvad mitmekesiseid maitseelamusi kogu maailmast. Lisaks 2 R-Kioskit ja suuremateks ostudeks Selver abc, kus on rikkalik sooja toidu ja salati lett. Linnakus on ka spordiklubi, suurel hulgal rattaparklaid ja laialt ilu- ja vaba aja teenuseid ning kaunid pargid, kus lõõgastuda või lõunat süüa. Lühikese jalutuskäigu kaugusele jääv Ülemiste keskus pakub veel lisaks laia valikut restorane, poode ja teenuseid.
ASUKOHT:
Ülemiste City asub transpordivõimaluste tuiksoonel, mille ühel küljel on Tallinna lennujaam, teisel aga tulevane Rail Baltica terminal ja uus bussijaam. Sadam jääb linnakust vaid kümne minuti autosõidu kaugusele ja Peterburi teele ning Tartu maanteele saad keerata otse kvartalist väljudes.
Siia saab igast linnajaost mugavalt bussiga ja ka rongiga, säästes nii linnaruumi ja loodust. Hetkel on trammiliin peatatud, kuid avatakse taas 2026 aastal.
https://www.ulemistecity.ee/kuidas-tulla/
MUGAV PARKIMINE:
Ülemiste City autoparklad mahutavad kokku üle 3300 sõiduauto ja parkimiskoht ei jää kontorihoonest kaugemale kui 150m. Üüripinna parkimine on lahendatud parkimismajades ja soovitav tasuliste parkimiskohtade arv lisatakse üürihinnale. Lisaks parkimismajadele, kus külalisel on 1h tasuta parkimist on linnakus ka suured väliparklad, kus külalistele on parkimine parkimiskellaga 2h tasuta.
TUGITEENUSED:
Uue asukohaga, kaasneb tavaliselt palju sekeldusi, kes koristab kontorit, kes aitab sisekujundusega, kes lööb naela seina või kus saab käia poes, juuksuris või spordiklubis. Ülemiste linnakus oleme need probleemid lahendanud sinu eest.
Ülemiste City hoonetes on olemas: konverentsi ja koosolekuruumid koos toitlustusega; vastuvõtulaua assistendid, kes tervitavad külalisi ja aitavad murede korral; koristus-, ja hooldusteenus koos meistrimehega; LED ekraanid, selleks et saaksid oma ettevõtte teha nähtavaks ja kaasata uusi kliente; riietus-, ja dušši ruumid sportlikuks eluviisi toetamiseks; hulgaliselt turvalisi rattaparklaid, samuti ka sisekujundaja, et kontori ülesehitus toetaks tööstiili. Kõike seda ikka selleks, et saaksid tegeleda oma tähtsate tööülesannetega ja kontor oleks täpselt sellise ülesehitusega nagu sinu ettevõttel vaja.
VISIOONIGA LINN:
Ülemiste City on rahvusvaheline ja mitmekesine keskkond, mille keskmes on talentidele loodud teadmispõhise töö-, arengu- ja elukeskkonna arendamine, mis toetab iga kogukonna liikme konkurentsivõimet maailmas, meelitab lahkunud talendid tagasi koju ning inspireerib uute ärimudelite teket. Ülemiste City on ühtselt hingav tervik, mis pakub inspireerivat keskkonda meie helgetele peadele ja loob samas viljaka kasvulava tuleviku tegijatele ja innovaatoritele.
Ülemiste City näol on ajaloolisele tööstuspiirkonnale antud uus elu ja hingamine. Siin paiknevad kõrvuti 19. sajandi tööstusarhitektuur ja modernne linnaruum, mis on kasvatanud Ülemiste City Baltimaade suurimaks ja kõige kiiremini kasvavaks ärilinnakuks.
ARENDAJA:
Mainor Ülemiste, Eesti suurim ärikinnisvara arendaja, on pika ajalooga Mainor Grupi tütarettevõte. Mainor Ülemiste põhitegevus on Baltimaade suurima ärilinnaku, rahvusvahelise haardega atraktiivse ja teadmispõhise Ülemiste City arendamine. Linnaku 30-l hektaril on välja ehitatud 167 000 ruutmeetrit üüritavat büroopinda, kus tegutseb kokku ligi 500 erineva suurusega ettevõtet.
KOGUKOND:
Ülemiste City rahvusvaheline kogukond kasvab aasta-aastalt – tänaseks töötab, õpib või elab linnakus ligi 17 000 talenti. Aastas toimub siin üle 100 erineva sündmuse – kontserdid, spordiüritused, näitused, peod, häkid, seminarid, live-ülekanded, töötoad ning palju muud põnevat. Kui soovid uute tehnoloogiate testimisel või rohelisema tuleviku loomisel kaasa lüüa, siis see kogukond on Sulle!
Vaata lisaks: https://www.ulemistecity.ee/




















