ÜÜRILE ANDA KAUBANDUSPINNAD – OTSE OMANIKULT
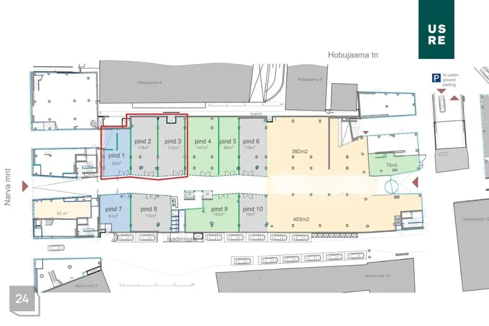
ÜÜRITAVAD PINNAD
Pakume üürile äripindu Tallinna südalinna ühel nähtavaimal ostutänaval – uues Artiuses (endine Foorum Keskus). Kõik pinnad paiknevad esimesel korrusel, hoone ostutänava Narva mnt poolses osas, kuhu pääseb otse keskuse eest tänavalt.
Üürihinnale lisanduvad kõrvalkulud ja käibemaks.
Võimalik ka käibeüürimudel.
Pinnad antakse üle viimistletud kujul (sisaldub üürihinnas) ning ootame uusi üürnike kauplust avama 2026 aasta märtsi alguses.
PAKKUMINE
Pakkumine on otse omanik/arendaja US Real Estate OÜ'lt ja vahendustasu ei lisandu.
UUS KESKKOND
2025 aasta jooksul läbivad hoone üldalad ja fassaad põhjaliku uuenduskuuri ning 2026. aasta kevadel avatakse keskus uue kontseptsiooni ja nime all: Artius. Uuenenud ostutänava sisearhitektuuri on loonud armastatud disainer Marit Ilison. Kontseptsioonis kohtuvad kaasaegne kaubandus, toitlustus ja inspireeriv töökeskkond – Artius saab olema stiilne, nutikas ja kiire elurütmiga linnasüdamik.
Uute üürnikena on juba liitunud ja liitumas Viru Burger, KFC, WEEKEND, REACH pilatesestuudio ja Boutique Chic. Büroopindade osas kolis Artiuse esinduspindadele Ignitise Eesti peakontor.
PARKIMINE
Hoone all paikneb avalik maa-alune Europargi parkla 125 parkimiskohaga – mugav ja taskukohane võimalus klientidele ja töötajatele südalinnas parkimiseks. Parkimise tsoon EP422.
ASUKOHT
Artius asub Tallinna kõige aktiivsemas jalakäijate sõlmpunktis, Viru Keskuse, Rotermanni kvartali ja Postimaja vahel. Hoone kõrval paikneb linna parim ühistranspordisõlm: trammid, bussid ning Viru Keskuse bussiterminal.
Hoone esimesel ja teisel korrusel asuvad ärid, teenused ja toitlustused. Ülemistel korrustel on bürood ja korterid. Lisaks avaneb üürnikele võimalus kasutada hoone sisehoovi üritusteks ja sündmusteks.
ROTERMANNI KVARTALI NAABER
Artius paikneb Rotermanni kvartali vahetus läheduses – autovaba ja inimesekeskse linnaruumiga keskkond, kus ajalooline tööstusarhitektuur on põimitud tänapäevase tipparhitektuuriga. Rotermann on hinnatud äri-, elamis- ja lõunasöögikeskkond, kus tegutseb ligi 20 eriilmelist söögikohta, kaasa arvatud Michelin Guide'i restoranid.
Rotermanni Klubi liikmetele kehtivad soodustused nii Artiuses kui ka Rotermanni kvartali poodides, kohvikutes ja teenustepakkujate juures.
LISATEAVE
Rohkem infot Rotermanni kohta: www.rotermann.ee
Rohkem infot arendaja ja keskuse kohta: www.usre.ee
ÜÜRITAVAD PINNAD
Pakume üürile äripindu Tallinna südalinna ühel nähtavaimal ostutänaval – uues Artiuses (endine Foorum Keskus). Kõik pinnad paiknevad esimesel korrusel, hoone ostutänava Narva mnt poolses osas, kuhu pääseb otse keskuse eest tänavalt.
Üürihinnale lisanduvad kõrvalkulud ja käibemaks.
Võimalik ka käibeüürimudel.
Pinnad antakse üle viimistletud kujul (sisaldub üürihinnas) ning ootame uusi üürnike kauplust avama 2026 aasta märtsi alguses.
PAKKUMINE
Pakkumine on otse omanik/arendaja US Real Estate OÜ'lt ja vahendustasu ei lisandu.
UUS KESKKOND
2025 aasta jooksul läbivad hoone üldalad ja fassaad põhjaliku uuenduskuuri ning 2026. aasta kevadel avatakse keskus uue kontseptsiooni ja nime all: Artius. Uuenenud ostutänava sisearhitektuuri on loonud armastatud disainer Marit Ilison. Kontseptsioonis kohtuvad kaasaegne kaubandus, toitlustus ja inspireeriv töökeskkond – Artius saab olema stiilne, nutikas ja kiire elurütmiga linnasüdamik.
Uute üürnikena on juba liitunud ja liitumas Viru Burger, KFC, WEEKEND, REACH pilatesestuudio ja Boutique Chic. Büroopindade osas kolis Artiuse esinduspindadele Ignitise Eesti peakontor.
PARKIMINE
Hoone all paikneb avalik maa-alune Europargi parkla 125 parkimiskohaga – mugav ja taskukohane võimalus klientidele ja töötajatele südalinnas parkimiseks. Parkimise tsoon EP422.
ASUKOHT
Artius asub Tallinna kõige aktiivsemas jalakäijate sõlmpunktis, Viru Keskuse, Rotermanni kvartali ja Postimaja vahel. Hoone kõrval paikneb linna parim ühistranspordisõlm: trammid, bussid ning Viru Keskuse bussiterminal.
Hoone esimesel ja teisel korrusel asuvad ärid, teenused ja toitlustused. Ülemistel korrustel on bürood ja korterid. Lisaks avaneb üürnikele võimalus kasutada hoone sisehoovi üritusteks ja sündmusteks.
ROTERMANNI KVARTALI NAABER
Artius paikneb Rotermanni kvartali vahetus läheduses – autovaba ja inimesekeskse linnaruumiga keskkond, kus ajalooline tööstusarhitektuur on põimitud tänapäevase tipparhitektuuriga. Rotermann on hinnatud äri-, elamis- ja lõunasöögikeskkond, kus tegutseb ligi 20 eriilmelist söögikohta, kaasa arvatud Michelin Guide'i restoranid.
Rotermanni Klubi liikmetele kehtivad soodustused nii Artiuses kui ka Rotermanni kvartali poodides, kohvikutes ja teenustepakkujate juures.
LISATEAVE
Rohkem infot Rotermanni kohta: www.rotermann.ee
Rohkem infot arendaja ja keskuse kohta: www.usre.ee















