Üürile anda büroopind südalinnas aadressil Narva maantee 7a.
ÜÜRIPIND:
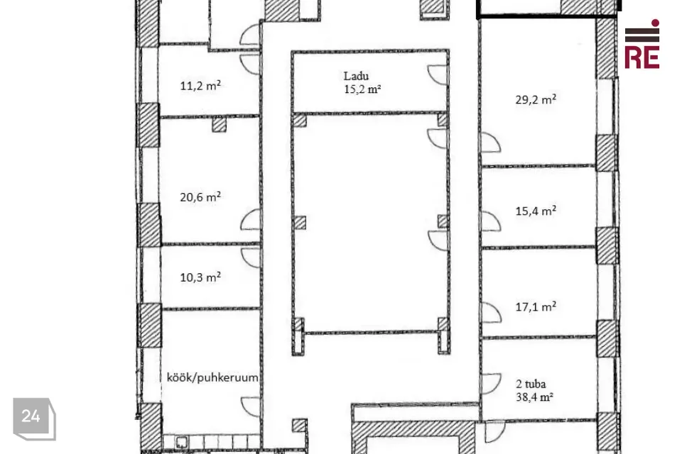
-Üüritav pind kokku on 29,2 m² ja asub A-korpuses, hoone 3. korrusel.
-Üürnike ühiskasutuses on möbleeritud köök, tualetid ja dušš.
-Lisaks on pakkuda on erineva suurusega väikebüroosid (alates 10,3 m² - 29,2 m²).
-Saadaval ka suuremaid äripindu, mida saab kohandada vastavalt vajadusele.
-Võimalik juurde üürida laopinda.
HOONE DETAILID:
-Hoones on lift ja elektrooniline valvesüsteem.
-Olemas keskküte, sundventilatsioon ja tsentraalne jahutus.
-Üürnikele on tagatud 24/7 ligipääs.
ASUKOHT JA LIGIPÄÄS:
-Suurepärane asukoht Tallinna kesklinna tuiksoonel, hea nähtavusega.
-Vahetus läheduses asuvad Rotermanni kvartal, Viru Keskus, Nautica Keskus ja Tallinna sadam.
-Läheduses asuvad trammi- ja bussipeatused, tagades lihtsa ligipääsu.
PARKIMINE:
-Hoone taga on ruumikas avalik parkla, kust saab kohti üürida kuupõhiselt.
-Klientidele on parkimisvõimalused lähiümbruses.
Üürihinnale lisanduvad fikseeritud kõrvalkulud 4 €/m² ja käibemaks.
Pakkumine on Teile vahendustasuta.
Huvi korral annan lisainformatsiooni ja korraldan objekti külastuse.
Kõik pakkumised ei ole avalikud! Narva mnt 7a hoones on pakkuda vabasid äripindasid suuruses 7.4-803 m². Meil on infot kõikide hoones asuvate äripindade kohta. Võta ühendust ja leiame Teile sobiva lahenduse!
Tutvuge Narva mnt 7a hoone ja teiste pakkumistega: https://re.ee/kinnisvaraprojekt/aripinnad/kaubandus-teenindus/narva-mnt-7a/
RE Kinnisvara AS on tegutsenud 1995. aastast, olles üks vanimaid Eesti kinnisvaraettevõtteid.
Pakume kinnisvaraga seotud täisteenust:
- äri- ja elamispindade maaklerteenus
- kinnisvara hindamine laenu tagatiseks, sh kohtutele, finantsaruandluseks jne.
- äri- ja elukondlike arendusprojektide müügikorraldus
- kinnisvaraturu ja -projektide analüüs ja konsultatsioon
- kinnisvara seadustamine
Teeme koostööd kõigi Eesti pankade ja finantsasutustega. Meie eksperthinnangud on aktsepteeritud kõigi Eestis tegutsevate krediidiasutuste poolt.
Tutvu lähemalt re.ee.
RE Kinnisvara AS – PARIM OSA KINNISVARAST
Helista 66 88 666 või saada e-mail ***@***.ee
https://facebook.com/re.kinnisvara
https://www.instagram.com/rekinnisvara/
https://ee.linkedin.com/company/re-kinnisvara
ÜÜRIPIND:
-Üüritav pind kokku on 29,2 m² ja asub A-korpuses, hoone 3. korrusel.
-Üürnike ühiskasutuses on möbleeritud köök, tualetid ja dušš.
-Lisaks on pakkuda on erineva suurusega väikebüroosid (alates 10,3 m² - 29,2 m²).
-Saadaval ka suuremaid äripindu, mida saab kohandada vastavalt vajadusele.
-Võimalik juurde üürida laopinda.
HOONE DETAILID:
-Hoones on lift ja elektrooniline valvesüsteem.
-Olemas keskküte, sundventilatsioon ja tsentraalne jahutus.
-Üürnikele on tagatud 24/7 ligipääs.
ASUKOHT JA LIGIPÄÄS:
-Suurepärane asukoht Tallinna kesklinna tuiksoonel, hea nähtavusega.
-Vahetus läheduses asuvad Rotermanni kvartal, Viru Keskus, Nautica Keskus ja Tallinna sadam.
-Läheduses asuvad trammi- ja bussipeatused, tagades lihtsa ligipääsu.
PARKIMINE:
-Hoone taga on ruumikas avalik parkla, kust saab kohti üürida kuupõhiselt.
-Klientidele on parkimisvõimalused lähiümbruses.
Üürihinnale lisanduvad fikseeritud kõrvalkulud 4 €/m² ja käibemaks.
Pakkumine on Teile vahendustasuta.
Huvi korral annan lisainformatsiooni ja korraldan objekti külastuse.
Kõik pakkumised ei ole avalikud! Narva mnt 7a hoones on pakkuda vabasid äripindasid suuruses 7.4-803 m². Meil on infot kõikide hoones asuvate äripindade kohta. Võta ühendust ja leiame Teile sobiva lahenduse!
Tutvuge Narva mnt 7a hoone ja teiste pakkumistega: https://re.ee/kinnisvaraprojekt/aripinnad/kaubandus-teenindus/narva-mnt-7a/
RE Kinnisvara AS on tegutsenud 1995. aastast, olles üks vanimaid Eesti kinnisvaraettevõtteid.
Pakume kinnisvaraga seotud täisteenust:
- äri- ja elamispindade maaklerteenus
- kinnisvara hindamine laenu tagatiseks, sh kohtutele, finantsaruandluseks jne.
- äri- ja elukondlike arendusprojektide müügikorraldus
- kinnisvaraturu ja -projektide analüüs ja konsultatsioon
- kinnisvara seadustamine
Teeme koostööd kõigi Eesti pankade ja finantsasutustega. Meie eksperthinnangud on aktsepteeritud kõigi Eestis tegutsevate krediidiasutuste poolt.
Tutvu lähemalt re.ee.
RE Kinnisvara AS – PARIM OSA KINNISVARAST
Helista 66 88 666 või saada e-mail ***@***.ee
https://facebook.com/re.kinnisvara
https://www.instagram.com/rekinnisvara/
https://ee.linkedin.com/company/re-kinnisvara

















