EHITUS ON VALMIS, KOLI KOHE SISSE!
Vaata ka kodulehte: vaoaripark.ee
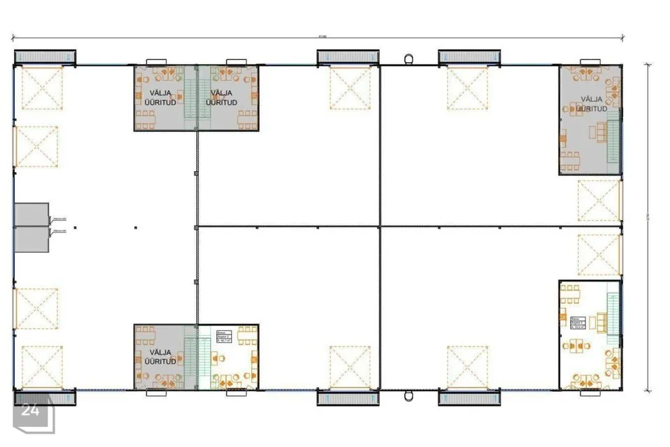
Plaasi 2 ärihoone saab olema uus kahekordne lao- ja tootmishoone otse Väo liiklussõlme ääres asuvas Väo Äripargis. Hoone on projekteeritud stock-office kontseptsiooni järgi, mis tähendab seda, et ettevõte saab kõik oma äriüksused (tootmise, lao, kontori ja esinduse) ühe katuse alla koondada ja seeläbi säästa logistika-, aja- ja kõrvalkuludelt.
Anname üürile boksi kogupinnaga 336 m2, millest 42,7 m2 on mõeldud büroo/kaubandusruumide ning 293,3 m2 tootmis- ja/või laopinna jaoks. Plaasi 2 ärihoones on saadaval veel kõrvalboks suurusega 460,6 m2 ja nende liitmisel saab moodustada 796,6 m2 äripinna.
Büroo ja lao osakaalu hoones saab muuta nii, nagu sinu ettevõttel vaja! Võta meiega ühendust ja paneme paika täpselt sinu äri spetsiifikale sobiva ruumilahenduse!
Kõik Plaasi 2 ärihoone üüripinnad
Äripind 2: kaubandus-/büroopinda 42,7 m2; tootmis-/laopinda 293,3 m2; kogupind 336 m2; üür 2654,40 eurot
Äripind 3: kaubandus-/büroopinda 70,3 m2; tootmis-/laopinda 390,3 m2; kogupind 460,6 m2; üür 3638,74 eurot
VÄO ÄRIPARK
Väo Äripark on uus ärilinnak otse Väo ristmiku ääres. Äripargi 5,5 hektariline arendusala paikneb Tallinna ringteed Peterburi tee Narva suunaga ühendava magistraali kõrval.
Rajame Väo Äriparki kuus ärihoonet, mis moodustavad kokku 21 300 m² äripinda. Hooned koosnevad stock-office üüripindadest ehk lao-, tootmis- ja bürooruumidest, mis on sobilikud kesk- ja suurettevõtetele. Kõik Väo Äripargi üüripinnad projekteeritakse mitmeotstarbeliselt, mis tähendab, et ettevõte saab meiega koostöös luua täpselt oma vajadustele vastava äripinna.
Väo Äripark hakkab kasvama koos sinu äriga – saad alati kõrvalolevatesse hoonetesse laieneda või kolida ümber suuremale pinnale samas sisse töötatud asukohas.
Ehitatavad hooned on B-energiamärgisega, mis tagab optimaalse suhte keskkonnasõbralike lahenduste ja madalate kõrvalkulude vahel. Kõigi majade katuseid täidavad päikesepaneelid, mis toodavad täistuuridel roheenergiat.
Keskkonnasäästlikumaks liiklemiseks paigaldame äriparki hulgaliselt elektriautode laadimiskohti, jalgrattahoidikuid ja loome jalakäijasõbraliku keskkonna äripargi sees. Lisaks rajatakse Väo ristmiku rekonstrueerimisega Väo Äripargi ümber üle kolme kilomeetri jalg- ja kergliiklusteid. Tulevikus sõidab läbi pargi uus linnabussiliin, seniks saab kasutada Pirita jõe bussipeatust Peterburi teel.
Väo Äriparki on oodatud kõik ettevõtted, kes tahavad ära kasutada Eesti kõige olulisema liiklussõlme logistilisi võimalusi oma äri edendamiseks.
ASUKOHT
Väo Äripark asub värskelt rekonstrueeritud Väo ristmiku Tallinn–Narva maanteed ja Tallinna ringteed ühendava magistraali kõrval. Väo ristmik on Eesti tähtsaim liiklussõlm, mida läbib suurem osa rahvusvahelistest ja riigisisestest mööda maanteed toimuvatest kaubavedudest. Pole ka ime, sest liiklussõlm ühendab omavahel Tallinna, Paldiski ja Muuga sadamat ning rahvusvahelisi maanteid. Asudes oma äriga Väo Äripargis ja otse kaubaveo tuiksoonel, saad vältida väikestel tänavatel manööverdamist ning suunduda kiirelt ja mugavalt oma sihtpunkti poole mööda neljarealisi teid.
Transpordiameti andmetel läbib Väo ristmikku ööpäevas ligi 49 000 sõidukit ja sellele ennustatakse lähiaastatel suurt kasvu. See annab suurepärase võimaluse end Väo Äripargi hoonetel valgusreklaamidega nähtavaks teha üle 50 000 silmapaarile ja potentsiaalsele kliendile ning seda vaid ühe päeva jooksul!
Väo Äripargi ees laiuv Peterburi tee on alati erinevate ettevõtete seas hinnatud olnud, muuhulgas on selles piirkonnas koha sisse võtnud ka ladustamise ja tootmisega seotud ettevõtetele tugiteenuseid pakkuvad ärid (näiteks veomasinate ja rasketehnika müük, remont ning hooldus). Seega on tegu teada-tuntud äripiirkonnaga, kus paiknemine on end ära tasunud sadadele ettevõtetele.
Äripargi naabruses on Tallinna suurima elanike arvuga linnaosa Lasnamäe ja ka Maardu, mis lihtsustab uute töötajate ja klientuuri leidmist. Lähipiirkonnas elab kokku 140 000 inimest, millele lisanduvad kõik läbisõidul olevad potentsiaalsed kliendid. Jalakäijasõbralik äripark ja jalgratta hoiukohad võimaldavad kohalikel Väo Äriparki lisaks autole soovi korral ka jala või jalgrattaga jõuda. Tulevikus hakkab Väo Äripargist läbi sõitma oma bussiliin, seniks aga asub arendusest 300 m kaugusel bussipeatus „Pirita jõgi“.
Tänu Väo liiklussõlme välja ehitamisele kaasajastatakse ka Väo Äriparki ümbritsev ala – rajatakse tankla, üle kolme kilomeetri jalg- ja jalgrattateid ning nutikas veo- ja matkaautode parkla. Viimasesse paigaldatavad infotablood annavad juhtidele infot näiteks sadamasse jõudmiseks vajamineva aja kohta, et sõitu saaks alustada õigeaegselt. Väo ristmiku uute teede ehitus valmis 2021. aasta oktoobris. Sellesse piirkonda on planeeritud ka Rail Balticu trass.
EFEKTIIVSED LAHENDUSED
Kasutame Plaasi 2 ärihoone ehitamisel kaasaegseid ja energiatõhusaid lahendusi.
- Programmeeritavad ligipääsu- ja valvesüsteemid
- Energiatõhusad LED-valgustid
- Päikesepaneelid hoone katusel
- Moodsad ja kõrge resolutsiooniga turvakaamerad hoone perimeetril
- Valgusreklaam hoone fassaadil
- Boksipõhine kütte, jahutuse ja ventilatsiooni reguleerimine
- Suur ladustamiskõrgus ja automatiseeritud tõstanduksed
- Nutiladu - jälgi kaamerate ees toimuvat distantsilt ja juhi mobiiltelefoni rakenduse abil nii tõstandust kui valvesüsteemi
- Võimalus liigutada kaupa läbi hoone, ühest küljest sisse ja teisest välja
- Mugav laadimine ning manööverdamine suurtele kaubaautodele laiadel valgustatud platsidel
- Personaalsed parkimiskohad
- Jalgrattahoidikud ja elektriautode laadimispunktid
Plaasi 2 ärihoone üüritav netopind on 2254 m2.
Hoia oma äri fookus põhitegevusel ja jäta kinnisvara eest hoolitsemine ning vastutamine meile!
Lisainfo kodulehel vaoaripark.ee
Küsi personaalset pakkumist!
*Hindadele lisandub käibemaks.
Objekti arendab Favorte OÜ. Favorte on 1993. aastal asutatud Eesti kapitalil põhinev ettevõte. Meie eesmärk on olla asjatundlik ja toetav abiline sinu kinnisvaraalaste unistuse elluäratamisel! Hoia meie tegemistel silma peal Favorte Kinnisvara sotsiaalmeedia lehtedel ja veebis www.favorte.ee! Kõik Väo Äripargi hooned kuuluvad Favorte Stock kaubamärgi alla.
Vaata ka kodulehte: vaoaripark.ee
Plaasi 2 ärihoone saab olema uus kahekordne lao- ja tootmishoone otse Väo liiklussõlme ääres asuvas Väo Äripargis. Hoone on projekteeritud stock-office kontseptsiooni järgi, mis tähendab seda, et ettevõte saab kõik oma äriüksused (tootmise, lao, kontori ja esinduse) ühe katuse alla koondada ja seeläbi säästa logistika-, aja- ja kõrvalkuludelt.
Anname üürile boksi kogupinnaga 336 m2, millest 42,7 m2 on mõeldud büroo/kaubandusruumide ning 293,3 m2 tootmis- ja/või laopinna jaoks. Plaasi 2 ärihoones on saadaval veel kõrvalboks suurusega 460,6 m2 ja nende liitmisel saab moodustada 796,6 m2 äripinna.
Büroo ja lao osakaalu hoones saab muuta nii, nagu sinu ettevõttel vaja! Võta meiega ühendust ja paneme paika täpselt sinu äri spetsiifikale sobiva ruumilahenduse!
Kõik Plaasi 2 ärihoone üüripinnad
Äripind 2: kaubandus-/büroopinda 42,7 m2; tootmis-/laopinda 293,3 m2; kogupind 336 m2; üür 2654,40 eurot
Äripind 3: kaubandus-/büroopinda 70,3 m2; tootmis-/laopinda 390,3 m2; kogupind 460,6 m2; üür 3638,74 eurot
VÄO ÄRIPARK
Väo Äripark on uus ärilinnak otse Väo ristmiku ääres. Äripargi 5,5 hektariline arendusala paikneb Tallinna ringteed Peterburi tee Narva suunaga ühendava magistraali kõrval.
Rajame Väo Äriparki kuus ärihoonet, mis moodustavad kokku 21 300 m² äripinda. Hooned koosnevad stock-office üüripindadest ehk lao-, tootmis- ja bürooruumidest, mis on sobilikud kesk- ja suurettevõtetele. Kõik Väo Äripargi üüripinnad projekteeritakse mitmeotstarbeliselt, mis tähendab, et ettevõte saab meiega koostöös luua täpselt oma vajadustele vastava äripinna.
Väo Äripark hakkab kasvama koos sinu äriga – saad alati kõrvalolevatesse hoonetesse laieneda või kolida ümber suuremale pinnale samas sisse töötatud asukohas.
Ehitatavad hooned on B-energiamärgisega, mis tagab optimaalse suhte keskkonnasõbralike lahenduste ja madalate kõrvalkulude vahel. Kõigi majade katuseid täidavad päikesepaneelid, mis toodavad täistuuridel roheenergiat.
Keskkonnasäästlikumaks liiklemiseks paigaldame äriparki hulgaliselt elektriautode laadimiskohti, jalgrattahoidikuid ja loome jalakäijasõbraliku keskkonna äripargi sees. Lisaks rajatakse Väo ristmiku rekonstrueerimisega Väo Äripargi ümber üle kolme kilomeetri jalg- ja kergliiklusteid. Tulevikus sõidab läbi pargi uus linnabussiliin, seniks saab kasutada Pirita jõe bussipeatust Peterburi teel.
Väo Äriparki on oodatud kõik ettevõtted, kes tahavad ära kasutada Eesti kõige olulisema liiklussõlme logistilisi võimalusi oma äri edendamiseks.
ASUKOHT
Väo Äripark asub värskelt rekonstrueeritud Väo ristmiku Tallinn–Narva maanteed ja Tallinna ringteed ühendava magistraali kõrval. Väo ristmik on Eesti tähtsaim liiklussõlm, mida läbib suurem osa rahvusvahelistest ja riigisisestest mööda maanteed toimuvatest kaubavedudest. Pole ka ime, sest liiklussõlm ühendab omavahel Tallinna, Paldiski ja Muuga sadamat ning rahvusvahelisi maanteid. Asudes oma äriga Väo Äripargis ja otse kaubaveo tuiksoonel, saad vältida väikestel tänavatel manööverdamist ning suunduda kiirelt ja mugavalt oma sihtpunkti poole mööda neljarealisi teid.
Transpordiameti andmetel läbib Väo ristmikku ööpäevas ligi 49 000 sõidukit ja sellele ennustatakse lähiaastatel suurt kasvu. See annab suurepärase võimaluse end Väo Äripargi hoonetel valgusreklaamidega nähtavaks teha üle 50 000 silmapaarile ja potentsiaalsele kliendile ning seda vaid ühe päeva jooksul!
Väo Äripargi ees laiuv Peterburi tee on alati erinevate ettevõtete seas hinnatud olnud, muuhulgas on selles piirkonnas koha sisse võtnud ka ladustamise ja tootmisega seotud ettevõtetele tugiteenuseid pakkuvad ärid (näiteks veomasinate ja rasketehnika müük, remont ning hooldus). Seega on tegu teada-tuntud äripiirkonnaga, kus paiknemine on end ära tasunud sadadele ettevõtetele.
Äripargi naabruses on Tallinna suurima elanike arvuga linnaosa Lasnamäe ja ka Maardu, mis lihtsustab uute töötajate ja klientuuri leidmist. Lähipiirkonnas elab kokku 140 000 inimest, millele lisanduvad kõik läbisõidul olevad potentsiaalsed kliendid. Jalakäijasõbralik äripark ja jalgratta hoiukohad võimaldavad kohalikel Väo Äriparki lisaks autole soovi korral ka jala või jalgrattaga jõuda. Tulevikus hakkab Väo Äripargist läbi sõitma oma bussiliin, seniks aga asub arendusest 300 m kaugusel bussipeatus „Pirita jõgi“.
Tänu Väo liiklussõlme välja ehitamisele kaasajastatakse ka Väo Äriparki ümbritsev ala – rajatakse tankla, üle kolme kilomeetri jalg- ja jalgrattateid ning nutikas veo- ja matkaautode parkla. Viimasesse paigaldatavad infotablood annavad juhtidele infot näiteks sadamasse jõudmiseks vajamineva aja kohta, et sõitu saaks alustada õigeaegselt. Väo ristmiku uute teede ehitus valmis 2021. aasta oktoobris. Sellesse piirkonda on planeeritud ka Rail Balticu trass.
EFEKTIIVSED LAHENDUSED
Kasutame Plaasi 2 ärihoone ehitamisel kaasaegseid ja energiatõhusaid lahendusi.
- Programmeeritavad ligipääsu- ja valvesüsteemid
- Energiatõhusad LED-valgustid
- Päikesepaneelid hoone katusel
- Moodsad ja kõrge resolutsiooniga turvakaamerad hoone perimeetril
- Valgusreklaam hoone fassaadil
- Boksipõhine kütte, jahutuse ja ventilatsiooni reguleerimine
- Suur ladustamiskõrgus ja automatiseeritud tõstanduksed
- Nutiladu - jälgi kaamerate ees toimuvat distantsilt ja juhi mobiiltelefoni rakenduse abil nii tõstandust kui valvesüsteemi
- Võimalus liigutada kaupa läbi hoone, ühest küljest sisse ja teisest välja
- Mugav laadimine ning manööverdamine suurtele kaubaautodele laiadel valgustatud platsidel
- Personaalsed parkimiskohad
- Jalgrattahoidikud ja elektriautode laadimispunktid
Plaasi 2 ärihoone üüritav netopind on 2254 m2.
Hoia oma äri fookus põhitegevusel ja jäta kinnisvara eest hoolitsemine ning vastutamine meile!
Lisainfo kodulehel vaoaripark.ee
Küsi personaalset pakkumist!
*Hindadele lisandub käibemaks.
Objekti arendab Favorte OÜ. Favorte on 1993. aastal asutatud Eesti kapitalil põhinev ettevõte. Meie eesmärk on olla asjatundlik ja toetav abiline sinu kinnisvaraalaste unistuse elluäratamisel! Hoia meie tegemistel silma peal Favorte Kinnisvara sotsiaalmeedia lehtedel ja veebis www.favorte.ee! Kõik Väo Äripargi hooned kuuluvad Favorte Stock kaubamärgi alla.











































