Tallinna kesklinnas Reidi tee ääres on valminud ligi 7000 m² suurune kaasaegne ja esinduslik - KOGE MAJA.
Koge Maja saab olema Reidi kvartali südameks.
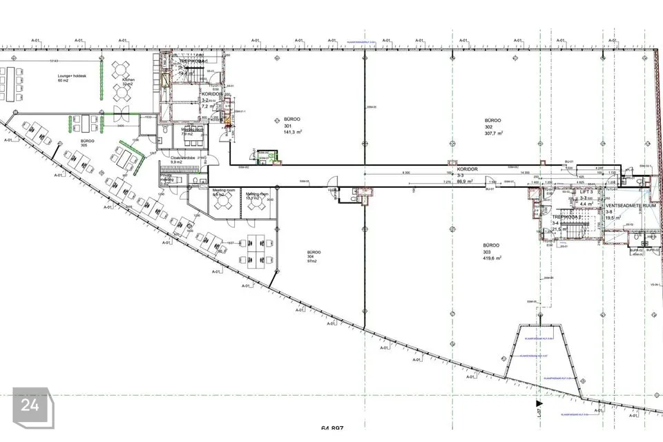
4-korruseline ärihoone, mille esimesel korrusel on 1775 m² ulatuses kaubanduspindu. Ülejäänud kolm korrust on büroopindade päralt - iga korruse netopind on ca 1400 m².
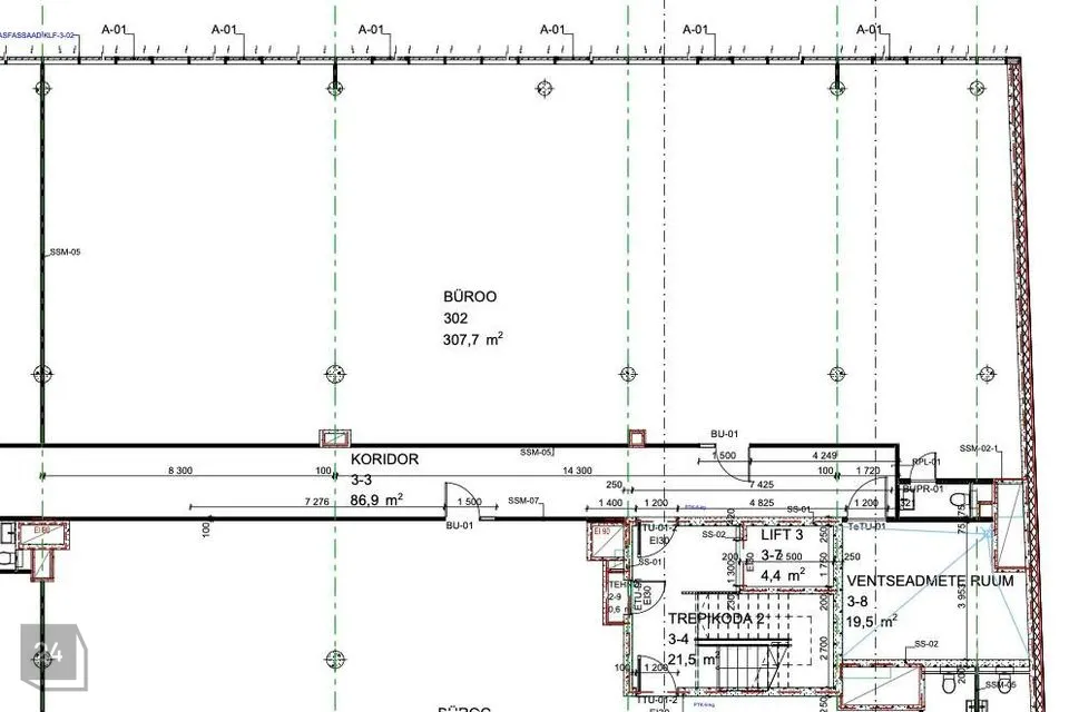
Antud büroopind asub hoone 3. korrusel ja on üldpinnaga ca 307,7 m².
Koge maja maa-alusesse parklasse on ette nähtud 39 parkimiskohta autodele ja 23 parkimiskohta jalgratastele.
Väliparklas ruumi 40 autole ja 34 jalgrattale. Jalgratturitele on olemas ka eraldi riietusruum koos duššide ja riidekappidega.
Küsi plaani!
Kui vajad suuremat pinda, siis selleks on mitu erinevat võimalust.
Võta ühendust ja leiame just Sinule sobiva suuruse ja planeeringuga pinna.
Talvel tagab A-energiaklassiga Koge majas energiasäästu kaugküte ning suvel uuenduslik kaugjahutus - ühtlasi vähendavad need oluliselt müra ja ümbruskonna õhusaastet. Suveperioodil annavad energiasäästu veel nutikalt modelleeritud päikesesirmid, vähendades oluliselt kuumaperioodil vajaminevat jahutusvõimsust.
Kui sind kõnetab Koge maja:
- ajalooline ja moderne arhitektuur;
- kaasaegsed tehnosüsteemide lahendused;
- inspireeriv töökeskkonna atmosfäär;
- mugav ja nähtav asukoht
siis helista või kirjuta mulle ja uuri lisainfot juba täna!
Koge majas oled jõudnud oma kontoriotsingutega sadamasse!
Jaga minu kontakti kõigile, kes vajavad kinnisvaranõu!
Jaga minu kontakti kõigile, kes vajavad kinnisvaranõu!
Liitu meie uudiskirjaga ja saa homset kinnisvarainfot juba täna! Vaata https://arikinnisvara.uusmaa.ee
UUS MAA ÄRIKINNISVARA - aastakümned kogemust ja klientide usaldust, läbimõeldud täisteenus ja suurim arv eksperte: vahendamine, hindamine, haldamine, nõustamine ja investeerimine.
Koge Maja saab olema Reidi kvartali südameks.
4-korruseline ärihoone, mille esimesel korrusel on 1775 m² ulatuses kaubanduspindu. Ülejäänud kolm korrust on büroopindade päralt - iga korruse netopind on ca 1400 m².
Antud büroopind asub hoone 3. korrusel ja on üldpinnaga ca 307,7 m².
Koge maja maa-alusesse parklasse on ette nähtud 39 parkimiskohta autodele ja 23 parkimiskohta jalgratastele.
Väliparklas ruumi 40 autole ja 34 jalgrattale. Jalgratturitele on olemas ka eraldi riietusruum koos duššide ja riidekappidega.
Küsi plaani!
Kui vajad suuremat pinda, siis selleks on mitu erinevat võimalust.
Võta ühendust ja leiame just Sinule sobiva suuruse ja planeeringuga pinna.
Talvel tagab A-energiaklassiga Koge majas energiasäästu kaugküte ning suvel uuenduslik kaugjahutus - ühtlasi vähendavad need oluliselt müra ja ümbruskonna õhusaastet. Suveperioodil annavad energiasäästu veel nutikalt modelleeritud päikesesirmid, vähendades oluliselt kuumaperioodil vajaminevat jahutusvõimsust.
Kui sind kõnetab Koge maja:
- ajalooline ja moderne arhitektuur;
- kaasaegsed tehnosüsteemide lahendused;
- inspireeriv töökeskkonna atmosfäär;
- mugav ja nähtav asukoht
siis helista või kirjuta mulle ja uuri lisainfot juba täna!
Koge majas oled jõudnud oma kontoriotsingutega sadamasse!
Jaga minu kontakti kõigile, kes vajavad kinnisvaranõu!
Jaga minu kontakti kõigile, kes vajavad kinnisvaranõu!
Liitu meie uudiskirjaga ja saa homset kinnisvarainfot juba täna! Vaata https://arikinnisvara.uusmaa.ee
UUS MAA ÄRIKINNISVARA - aastakümned kogemust ja klientide usaldust, läbimõeldud täisteenus ja suurim arv eksperte: vahendamine, hindamine, haldamine, nõustamine ja investeerimine.

























