Kirjeldus:
Muuda oma äri Noblessneri visiitkaardiks!
Tegemist on valgusküllase äripinnaga, kus valgus ja tänavamelu kohtuvad, sobib suurepäraselt ettevõttele kes soovib silma paista. Äripind on universaalse kasutusega: kergtoitlustus, teenindus, kaubandus või büroo. Asukohas on tähelepanu paratamatu.
Allveelaeva 2 elu- ja ärihoone ehitus algas märtsis 2025 ning maja valmib 2026. aasta detsembris.
Äripind:
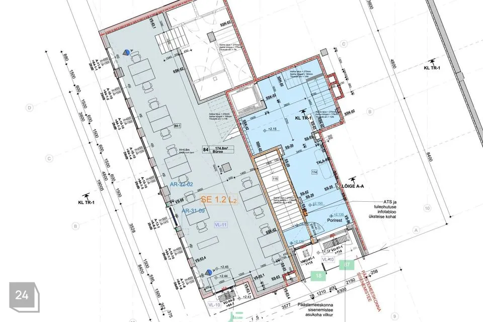
• Üldpind (174,3) m2 ning terrassiala (20) m2.
• Lae kõrgus 4800mm.
• Parima nähtavusega koht otse Noblessneri väravas.
• A-energiaklassi hoone, madalad ülalpidamiskulud.
• Pinnal on 3 sissepääsu, personaalne sissepääs otse Allveelaeva tänavalt lisaks pääseb pinnale ka garaažist ja siseõuest.
• Nurgapinnal on suured avarust tekitavad aknad, mis tagavad maksimaalse loomuliku valguse.
• Pinnale on paigutatud (põranda alused) konvektortüüpi radiaatorid , (keskküte).
• Hoone ühendatud Utilitas Tallinna kaugjahutussüsteemiga. Kõigil äripindadel ehitatakse valmis kohtjahutus.
• Ruumilahendused ja sisekujundus, võimalik teha üürniku vajaduste ja soovide järgi.
• Tagatud tehniline valmidus telefoni-, interneti- ja TV-teenuste lepingute sõlmimiseks erinevate pakkujatega.
• Iga äripind on eraldi valvestatav, turvaseadmete kaablid on veetud (seadmed ei sisaldu hinnas).
• Autode parkimiskohad paiknevad maa-alusel korrusel ja 1. korruse hoovialusel osal. Parkimiskohad on varustatud elektriauto laadimispunkti paigaldamise valmidusega.
Noblessner:
Mereäärne Noblessner on Tallinna kõige trendikam kohtumispaik – loov, modernne ja alati täis elu. Restoranid, galeriid ja butiigid toovad siia iga päev sadu külalisi ning suurürituste ajal kihab piirkond tuhandetest inimestest. Just siin saab sinu bränd silma paista ja kasvada koos Noblessneri tempoga.
Keskkond ja naabrus:
• Noblessner – elustiili- ja ärikvartal mere ääres, tuntud oma arhitektuuri ja jahisadama poolest.
• Naabruses asuvad restoranid Lore Bistroo, 180° by Matthias Diether, La Prima Noble, UMA, Lessner, Puente
• Noblessneris tegutsevad restoranid, galeriid, salongid, kontorid, ja paljud teised kohad vabaaja veetmiseks.
• Kai kunstikeskus ja PROTO avastustehas toovad piirkonda igapäevaselt rohkelt külastajaid ja ürituste publikut.
• Jalutuskäigu kaugusel Lennusadam, Telliskivi Loomelinnak ja Kalamaja elamukvartalid.
• Mugav juurdepääs jalgsi, rattaga ja autoga – piirkonnas on EuroParki parkla ning sadama promenaad koos uue tänavavalgustuse ja rattateedega.
• Põhja-Tallinn jätkab kiiret arengut – Noblessner on piirkonna süda ja üks Tallinna atraktiivsemaid sihtkohti elamiseks, töötamiseks ja vaba aja veetmiseks.
ÜÜRITINGIMUSED:
– Üürihinnale lisanduvad kõrvalkulud ja käibemaks
– Tagatisdeposiit 2-3 kuu üür
– Vahendustasu ei lisandu
Kui antud objekt ei ole see mida otsite, siis andke oma soovist teada ja leiame just Teile sobiva pinna!
JAGA MINU KONTAKTI KÕIGILE, KES VAJAVAD KINNISVARANÕU!
- - - - - - - - - -
Telli hindamine UUS MAA Kinnisvarabüroolt https://uusmaa.ee/teenused/hindamine/
UUS MAA KINNISVARABÜROO EKSPERTHINNANGUID AKTSEPTEERIVAD KÕIK FINANTSASUTUSED.
- - - - - - - - - -
Liitu Uus Maa uudiskirjaga ja saa homset kinnisvarainfot juba täna!
https://www.uusmaa.ee/uudiskirjagaliitumine/
- - - - - - - - - -
Kodu aitab osta Swedbank.
Pakkumise saamiseks kasuta koodi UUSMAA ja Sind teenindatakse eelisjärjekorras.
Võtame ühendust 1 tööpäeva jooksul.
Uus Maa kliendile soodsam lepingutasu. Küsi täpsemat infot maaklerilt.
Finantsteenuseid pakub Swedbank AS. Tutvu tingimustega, pea nõu.
Muuda oma äri Noblessneri visiitkaardiks!
Tegemist on valgusküllase äripinnaga, kus valgus ja tänavamelu kohtuvad, sobib suurepäraselt ettevõttele kes soovib silma paista. Äripind on universaalse kasutusega: kergtoitlustus, teenindus, kaubandus või büroo. Asukohas on tähelepanu paratamatu.
Allveelaeva 2 elu- ja ärihoone ehitus algas märtsis 2025 ning maja valmib 2026. aasta detsembris.
Äripind:
• Üldpind (174,3) m2 ning terrassiala (20) m2.
• Lae kõrgus 4800mm.
• Parima nähtavusega koht otse Noblessneri väravas.
• A-energiaklassi hoone, madalad ülalpidamiskulud.
• Pinnal on 3 sissepääsu, personaalne sissepääs otse Allveelaeva tänavalt lisaks pääseb pinnale ka garaažist ja siseõuest.
• Nurgapinnal on suured avarust tekitavad aknad, mis tagavad maksimaalse loomuliku valguse.
• Pinnale on paigutatud (põranda alused) konvektortüüpi radiaatorid , (keskküte).
• Hoone ühendatud Utilitas Tallinna kaugjahutussüsteemiga. Kõigil äripindadel ehitatakse valmis kohtjahutus.
• Ruumilahendused ja sisekujundus, võimalik teha üürniku vajaduste ja soovide järgi.
• Tagatud tehniline valmidus telefoni-, interneti- ja TV-teenuste lepingute sõlmimiseks erinevate pakkujatega.
• Iga äripind on eraldi valvestatav, turvaseadmete kaablid on veetud (seadmed ei sisaldu hinnas).
• Autode parkimiskohad paiknevad maa-alusel korrusel ja 1. korruse hoovialusel osal. Parkimiskohad on varustatud elektriauto laadimispunkti paigaldamise valmidusega.
Noblessner:
Mereäärne Noblessner on Tallinna kõige trendikam kohtumispaik – loov, modernne ja alati täis elu. Restoranid, galeriid ja butiigid toovad siia iga päev sadu külalisi ning suurürituste ajal kihab piirkond tuhandetest inimestest. Just siin saab sinu bränd silma paista ja kasvada koos Noblessneri tempoga.
Keskkond ja naabrus:
• Noblessner – elustiili- ja ärikvartal mere ääres, tuntud oma arhitektuuri ja jahisadama poolest.
• Naabruses asuvad restoranid Lore Bistroo, 180° by Matthias Diether, La Prima Noble, UMA, Lessner, Puente
• Noblessneris tegutsevad restoranid, galeriid, salongid, kontorid, ja paljud teised kohad vabaaja veetmiseks.
• Kai kunstikeskus ja PROTO avastustehas toovad piirkonda igapäevaselt rohkelt külastajaid ja ürituste publikut.
• Jalutuskäigu kaugusel Lennusadam, Telliskivi Loomelinnak ja Kalamaja elamukvartalid.
• Mugav juurdepääs jalgsi, rattaga ja autoga – piirkonnas on EuroParki parkla ning sadama promenaad koos uue tänavavalgustuse ja rattateedega.
• Põhja-Tallinn jätkab kiiret arengut – Noblessner on piirkonna süda ja üks Tallinna atraktiivsemaid sihtkohti elamiseks, töötamiseks ja vaba aja veetmiseks.
ÜÜRITINGIMUSED:
– Üürihinnale lisanduvad kõrvalkulud ja käibemaks
– Tagatisdeposiit 2-3 kuu üür
– Vahendustasu ei lisandu
Kui antud objekt ei ole see mida otsite, siis andke oma soovist teada ja leiame just Teile sobiva pinna!
JAGA MINU KONTAKTI KÕIGILE, KES VAJAVAD KINNISVARANÕU!
- - - - - - - - - -
Telli hindamine UUS MAA Kinnisvarabüroolt https://uusmaa.ee/teenused/hindamine/
UUS MAA KINNISVARABÜROO EKSPERTHINNANGUID AKTSEPTEERIVAD KÕIK FINANTSASUTUSED.
- - - - - - - - - -
Liitu Uus Maa uudiskirjaga ja saa homset kinnisvarainfot juba täna!
https://www.uusmaa.ee/uudiskirjagaliitumine/
- - - - - - - - - -
Kodu aitab osta Swedbank.
Pakkumise saamiseks kasuta koodi UUSMAA ja Sind teenindatakse eelisjärjekorras.
Võtame ühendust 1 tööpäeva jooksul.
Uus Maa kliendile soodsam lepingutasu. Küsi täpsemat infot maaklerilt.
Finantsteenuseid pakub Swedbank AS. Tutvu tingimustega, pea nõu.














