ÜÜRI KOGU PIND VÕI TULE ALLÜÜRNIKUKS OSALE PINNAST!
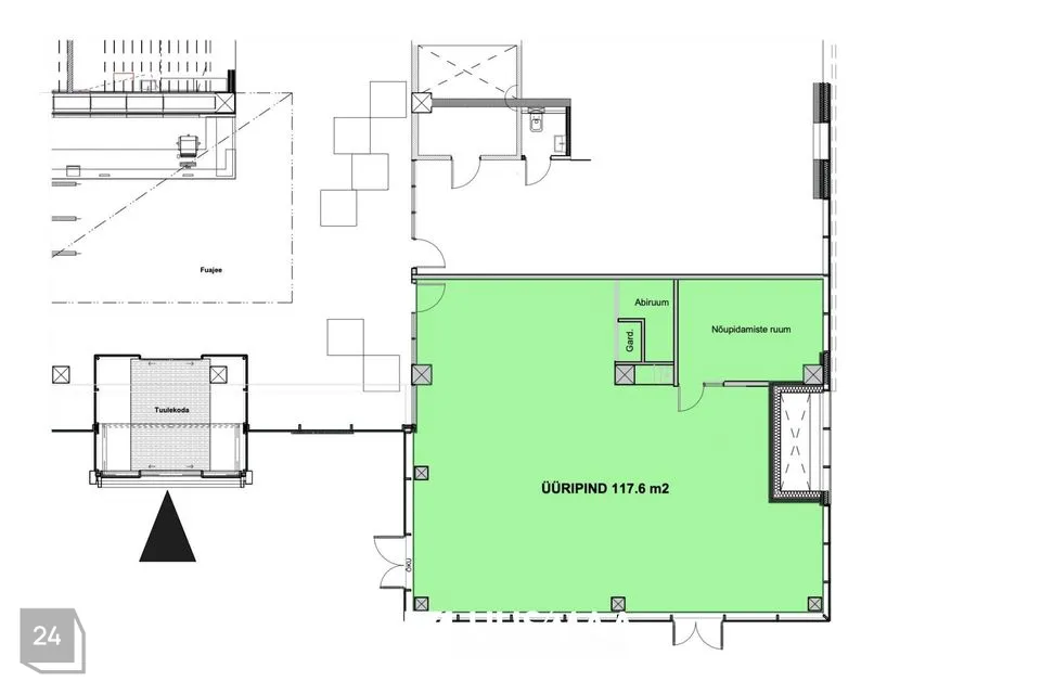
Üürile anda esinduslik omaette sissepääsu ja vitriinakendega äripind Avala Kvartalis Electra büroohoones. Hubase atmosfääriga pinna koosseisus on avatud tööala / müügisaal ja üks kabinetiks või nõupidamisruumiks sobiv tuba. Olemas on väike kööginurk, tualettruumid on koridoris pinna vahetus läheduses. Soovi korral on võimalik tulla allüürnikuks ja jagada ruumi tänase üürnikuga (pinna suurus ja jagunemine kokkuleppel). Soovi korral saab samas kvartalis üürida ka suurema büroopinna.
Avala Kvartal on uus ja rohelisest mõtteviisist lähtuv ärikvartal Tallinna kesklinna servas, kuhu mugav ligipääs nii autoga kui ühistranspordiga. Üürnikel on võimalik üürida parkimiskohti parkimismajas, klientidele on parkimine 2h tasuta. Olemas on elektriautode laadijad, majasisene rattahoidla koos duširuumiga ja Bikeep rattaparkla külalistele.
Hoonel on A-energiamärgis, samuti keskkonnasõbraliku maja märgis LEED GOLD sertifikaat. Valgustust, kütet ja ventilatsiooni juhib automaatika sõltuvalt tarbimisvajadusest, see hoiab kõrvalkulud madalad.
Kvartalis on lõunarestoran, 24/7 Fitness spordiklubi ning kaunid rohealad puhkamiseks ja sportimiseks.
SÕIDUAEG / KAUGUSED
• Rocca Al Mare keskus 12 min / 6,7 km
• Kristiine keskus 6 min / 2,9 km
• Telliskivi loomelinnak 8 min / 4 km
• Viru Keskus 8 min / 3,5 km
• Lennujaam 5 min / 3,2 km
• Tallinna Sadam 10 min / 3,8 km
• Lasnamäe Centrum 13 min / 8,2 km
• Viimsi Keskus 23 min / 13,1 km
Üür 16 eur/m2. Lisanduvad kõrvalkulud ja käibemaks.
Kui otsid esinduslikku äripinda, võta ühendust ja tule vaatama!
Pakkumine on vahendustasuta.
Jaga minu kontakti kõigile, kes vajavad kinnisvaranõu!
Liitu meie uudiskirjaga ja saa homset kinnisvarainfot juba täna! Vaata https://arikinnisvara.uusmaa.ee
UUS MAA ÄRIKINNISVARA - aastakümned kogemust ja klientide usaldust, läbimõeldud täisteenus ja suurim arv eksperte: vahendamine, hindamine, haldamine, nõustamine ja investeerimine.
Üürile anda esinduslik omaette sissepääsu ja vitriinakendega äripind Avala Kvartalis Electra büroohoones. Hubase atmosfääriga pinna koosseisus on avatud tööala / müügisaal ja üks kabinetiks või nõupidamisruumiks sobiv tuba. Olemas on väike kööginurk, tualettruumid on koridoris pinna vahetus läheduses. Soovi korral on võimalik tulla allüürnikuks ja jagada ruumi tänase üürnikuga (pinna suurus ja jagunemine kokkuleppel). Soovi korral saab samas kvartalis üürida ka suurema büroopinna.
Avala Kvartal on uus ja rohelisest mõtteviisist lähtuv ärikvartal Tallinna kesklinna servas, kuhu mugav ligipääs nii autoga kui ühistranspordiga. Üürnikel on võimalik üürida parkimiskohti parkimismajas, klientidele on parkimine 2h tasuta. Olemas on elektriautode laadijad, majasisene rattahoidla koos duširuumiga ja Bikeep rattaparkla külalistele.
Hoonel on A-energiamärgis, samuti keskkonnasõbraliku maja märgis LEED GOLD sertifikaat. Valgustust, kütet ja ventilatsiooni juhib automaatika sõltuvalt tarbimisvajadusest, see hoiab kõrvalkulud madalad.
Kvartalis on lõunarestoran, 24/7 Fitness spordiklubi ning kaunid rohealad puhkamiseks ja sportimiseks.
SÕIDUAEG / KAUGUSED
• Rocca Al Mare keskus 12 min / 6,7 km
• Kristiine keskus 6 min / 2,9 km
• Telliskivi loomelinnak 8 min / 4 km
• Viru Keskus 8 min / 3,5 km
• Lennujaam 5 min / 3,2 km
• Tallinna Sadam 10 min / 3,8 km
• Lasnamäe Centrum 13 min / 8,2 km
• Viimsi Keskus 23 min / 13,1 km
Üür 16 eur/m2. Lisanduvad kõrvalkulud ja käibemaks.
Kui otsid esinduslikku äripinda, võta ühendust ja tule vaatama!
Pakkumine on vahendustasuta.
Jaga minu kontakti kõigile, kes vajavad kinnisvaranõu!
Liitu meie uudiskirjaga ja saa homset kinnisvarainfot juba täna! Vaata https://arikinnisvara.uusmaa.ee
UUS MAA ÄRIKINNISVARA - aastakümned kogemust ja klientide usaldust, läbimõeldud täisteenus ja suurim arv eksperte: vahendamine, hindamine, haldamine, nõustamine ja investeerimine.

















