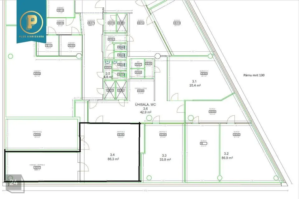
Üürile anda Kesklinna linnaosas, Pärnu mnt 130 aadressil asuvas ärihoones 86,3 m² suurune värskelt renoveeritud büroopind.
Tegemist on kaasaegse hoonega, mis asub kohe Pärnu maantee ääres.
Kolmandal korrusel asuv suurte akenaga büroopind koosneb kahest toast, millest esimene läbikäidav tuba on 45,8m2 ja teine mitteläbikäidav tuba 25,2m2.
Lisaks on üüripinna kasutada naabritega ühiskasutuses olev uus kööginurk ja tualetid.
Majas on lift.
Ruumidesse on tagatud 24/7 ligipääs.
Akentele on võimalus paigaldada välireklaami. Hoones on kaasaegne sundventilatsioon ning jahutus.
Välja on ehitatud elektrooniline valvesüsteem. Lähedal asuvad trammi-, bussi- ja rongipeatused.
Üürihinnale lisanduvad kõrvalkulud + tagatisraha kahe kuu üüri summa + km. Maakleritasu ei lisandu.
Helista julgelt ja lähme vaatama!
Plus Kinnisvarabüroo on butiikstiilis kinnisvarabüroo neile, kes hindavad personaalset lähenemist.
Plus Kinnisvarabüroo keskendub kvaliteedile, mitte kvantiteedile. Iga klient on meie jaoks tähtis ning töötame oma kliendi maksimaalse heaolu nimel!
Tegemist on kaasaegse hoonega, mis asub kohe Pärnu maantee ääres.
Kolmandal korrusel asuv suurte akenaga büroopind koosneb kahest toast, millest esimene läbikäidav tuba on 45,8m2 ja teine mitteläbikäidav tuba 25,2m2.
Lisaks on üüripinna kasutada naabritega ühiskasutuses olev uus kööginurk ja tualetid.
Majas on lift.
Ruumidesse on tagatud 24/7 ligipääs.
Akentele on võimalus paigaldada välireklaami. Hoones on kaasaegne sundventilatsioon ning jahutus.
Välja on ehitatud elektrooniline valvesüsteem. Lähedal asuvad trammi-, bussi- ja rongipeatused.
Üürihinnale lisanduvad kõrvalkulud + tagatisraha kahe kuu üüri summa + km. Maakleritasu ei lisandu.
Helista julgelt ja lähme vaatama!
Plus Kinnisvarabüroo on butiikstiilis kinnisvarabüroo neile, kes hindavad personaalset lähenemist.
Plus Kinnisvarabüroo keskendub kvaliteedile, mitte kvantiteedile. Iga klient on meie jaoks tähtis ning töötame oma kliendi maksimaalse heaolu nimel!











