Üürile anda kvaliteetne büroopind 2008. aastal valminud hoones Schnelli pargi ja vanalinna läheduses - Shnelli Ärimajas.
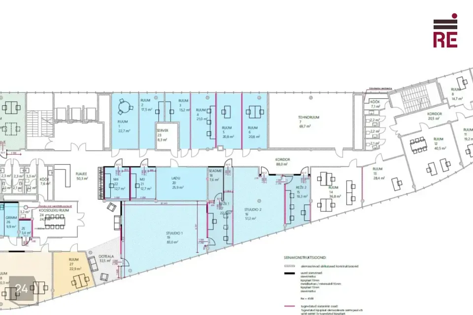
Pind hõlmab kogu 6. korrust 7-korruselisest büroohoonest ja on suurusega 1226,7 m2.
Üüripind koosneb erineva suurusega kabinettidest, nõupidamisteruumidest, vastuvõtualast, kööginurgast ja olmeruumidest. Pinna joonise leiate pakkumise galeriist. Üüripinna planeeringut võimalik kokkuleppel üürileandjaga muuta.
Pakutavad ruumid on eripärased, sest
- asuvad hoone eelviimasel korrusel ja pakuvad väga häid vaateid Põhja-Tallinnale, kesklinnale ja Toompeale
- ruumidel on tavapärasest mõnevõrra kõrgem lagi
- kõrged aknad, mis toovad palju valgust ja loovad avarust
- mugava sisekliima büroos tagab kaasaegne sundventilatsioon ja jahutus
- ruumid on heas seisukorras
- logo paigaldamise võimalus Toompuiestee poolsele fassaadile
- lühikese jalutuskäigu kaugusel on nii Balti jaam, trammipeatus, Telliskivi Loomelinnak, Balti jaama turg koos kõikide poodide, toidukohtade ja spordiklubidega
Hoones on 3 lifti, toitlustuskoht, ilusalong ja administraator. Keldrikorrusel on võimalik üürida ka väikeseid laoruume.
Klientidele on parkimiskellaga parkimine tasuta. Üürnikele kindlad parkimiskohad lisatasu eest hoone kõrval asuvas väliparklas.
Seega on tegu väga hea keskse asukohaga nii ühistranspordiga tulijale (rong, tramm, buss) kui ka autoga käijale.
Hinnale lisanduvad kõrvalkulud ja käibemaks.
Pakkumine on vahendustasuta!
Tutvuge hoone teiste pakkumistega ja külastage Toompuiestee 35 büroohoone veebilehte aadressil: http://www.re.ee/projektid/aripinnad/toompuiestee-35
Huvi korral annan meeleldi lisainfot ja korraldan objekti külastuse.
Kui antud objekt ei ole see mida otsite, siis andke oma soovist teada ja leiame just Teile sobiva pinna.
RE Kinnisvara AS on tegutsenud 1995. aastast, olles üks vanimaid Eesti kinnisvaraettevõtteid.
Pakume kinnisvaraga seotud täisteenust:
- äri- ja elamispindade maaklerteenus
- kinnisvara hindamine laenu tagatiseks, sh kohtutele, finantsaruandluseks jne.
- äri- ja elukondlike arendusprojektide müügikorraldus
- kinnisvaraturu ja -projektide analüüs ja konsultatsioon
- kinnisvara seadustamine
Teeme koostööd kõigi Eesti pankade ja finantsasutustega. Meie eksperthinnangud on aktsepteeritud kõigi Eestis tegutsevate krediidiasutuste poolt.
Tutvu lähemalt re.ee.
RE Kinnisvara AS – PARIM OSA KINNISVARAST
Helista 66 88 666 või saada e-mail ***@***.ee
https://facebook.com/re.kinnisvara
https://www.instagram.com/rekinnisvara/
https://ee.linkedin.com/company/re-kinnisvara
Pind hõlmab kogu 6. korrust 7-korruselisest büroohoonest ja on suurusega 1226,7 m2.
Üüripind koosneb erineva suurusega kabinettidest, nõupidamisteruumidest, vastuvõtualast, kööginurgast ja olmeruumidest. Pinna joonise leiate pakkumise galeriist. Üüripinna planeeringut võimalik kokkuleppel üürileandjaga muuta.
Pakutavad ruumid on eripärased, sest
- asuvad hoone eelviimasel korrusel ja pakuvad väga häid vaateid Põhja-Tallinnale, kesklinnale ja Toompeale
- ruumidel on tavapärasest mõnevõrra kõrgem lagi
- kõrged aknad, mis toovad palju valgust ja loovad avarust
- mugava sisekliima büroos tagab kaasaegne sundventilatsioon ja jahutus
- ruumid on heas seisukorras
- logo paigaldamise võimalus Toompuiestee poolsele fassaadile
- lühikese jalutuskäigu kaugusel on nii Balti jaam, trammipeatus, Telliskivi Loomelinnak, Balti jaama turg koos kõikide poodide, toidukohtade ja spordiklubidega
Hoones on 3 lifti, toitlustuskoht, ilusalong ja administraator. Keldrikorrusel on võimalik üürida ka väikeseid laoruume.
Klientidele on parkimiskellaga parkimine tasuta. Üürnikele kindlad parkimiskohad lisatasu eest hoone kõrval asuvas väliparklas.
Seega on tegu väga hea keskse asukohaga nii ühistranspordiga tulijale (rong, tramm, buss) kui ka autoga käijale.
Hinnale lisanduvad kõrvalkulud ja käibemaks.
Pakkumine on vahendustasuta!
Tutvuge hoone teiste pakkumistega ja külastage Toompuiestee 35 büroohoone veebilehte aadressil: http://www.re.ee/projektid/aripinnad/toompuiestee-35
Huvi korral annan meeleldi lisainfot ja korraldan objekti külastuse.
Kui antud objekt ei ole see mida otsite, siis andke oma soovist teada ja leiame just Teile sobiva pinna.
RE Kinnisvara AS on tegutsenud 1995. aastast, olles üks vanimaid Eesti kinnisvaraettevõtteid.
Pakume kinnisvaraga seotud täisteenust:
- äri- ja elamispindade maaklerteenus
- kinnisvara hindamine laenu tagatiseks, sh kohtutele, finantsaruandluseks jne.
- äri- ja elukondlike arendusprojektide müügikorraldus
- kinnisvaraturu ja -projektide analüüs ja konsultatsioon
- kinnisvara seadustamine
Teeme koostööd kõigi Eesti pankade ja finantsasutustega. Meie eksperthinnangud on aktsepteeritud kõigi Eestis tegutsevate krediidiasutuste poolt.
Tutvu lähemalt re.ee.
RE Kinnisvara AS – PARIM OSA KINNISVARAST
Helista 66 88 666 või saada e-mail ***@***.ee
https://facebook.com/re.kinnisvara
https://www.instagram.com/rekinnisvara/
https://ee.linkedin.com/company/re-kinnisvara





















