Meistri tn 22 on heas asukohas ärihoone, mis läbis 2018 aastal põhjaliku renoveerimise.
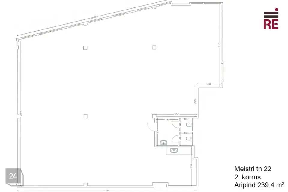
Üürile anda 239.4 m² suurune büroopind Meistri 22 ärihoone 2. korrusel.
ERIPAKKUMINE! Üürivabastus kuni 2025 aasta lõpuni!
Tegemist on avara ja valgusküllase äripinnaga, kus täna on suur avatud kontoriala koos kööginurgaga. Ruumis on olemas tualettruumid. Tutvuge pinna plaaniga kuulutuse galeriis.
Hoonel on esinduslik fuajee ning kõrgematele korrustele pääseb liftiga. Hoones on keskküte ning kasutusel on kaasaegsed ja efektiivsed tehnosüsteemid - sundventilatsioon ja jahutus. Ärihoone on varustatud kaasaegsete kommunikatsiooni- ja sidesüsteemidega. Ruumidesse on tagatud ligipääs ööpäevaringselt ning territooriumil tagab turvalisuse videovalve. Maja fassaadile on võimalik paigaldada ettevõtte välireklaam.
Tänu aktiivse liiklusega Ehitajate teele, on tagatud hea ligipääs nii auto kui ka ühistranspordiga. Maja ees on tasuta parkimine üürnikele ja külalistele. Läheduses on mitmeid söögikohti lõunatamiseks või partneritega kohtumiseks.
Üürihinnale lisanduvad kõrvalkulud ja käibemaks.
Pakkumine on Teile vahendustasuta.
Huvi korral annan lisainformatsiooni ja korraldan objekti külastuse.
Kõik pakkumised ei ole avalikud! Hoones on pakkuda vabasid äripindasid suuruses 57.4-485 m². Meil on infot kõikide hoones asuvate äripindade kohta. Võta ühendust ja leiame Teile sobiva lahenduse!
Tutvuge Meistri tn 22 hoone ja teiste pakkumistega: http://re.ee/projektid/aripinnad/meistri-22
RE Kinnisvara AS on tegutsenud 1995. aastast, olles üks vanimaid Eesti kinnisvaraettevõtteid.
Pakume kinnisvaraga seotud täisteenust:
- äri- ja elamispindade maaklerteenus
- kinnisvara hindamine laenu tagatiseks, sh kohtutele, finantsaruandluseks jne.
- äri- ja elukondlike arendusprojektide müügikorraldus
- kinnisvaraturu ja -projektide analüüs ja konsultatsioon
- kinnisvara seadustamine
Teeme koostööd kõigi Eesti pankade ja finantsasutustega. Meie eksperthinnangud on aktsepteeritud kõigi Eestis tegutsevate krediidiasutuste poolt.
Tutvu lähemalt re.ee.
RE Kinnisvara AS – PARIM OSA KINNISVARAST
Helista 66 88 666 või saada e-mail ***@***.ee
https://facebook.com/re.kinnisvara
https://www.instagram.com/rekinnisvara/
https://ee.linkedin.com/company/re-kinnisvara
Üürile anda 239.4 m² suurune büroopind Meistri 22 ärihoone 2. korrusel.
ERIPAKKUMINE! Üürivabastus kuni 2025 aasta lõpuni!
Tegemist on avara ja valgusküllase äripinnaga, kus täna on suur avatud kontoriala koos kööginurgaga. Ruumis on olemas tualettruumid. Tutvuge pinna plaaniga kuulutuse galeriis.
Hoonel on esinduslik fuajee ning kõrgematele korrustele pääseb liftiga. Hoones on keskküte ning kasutusel on kaasaegsed ja efektiivsed tehnosüsteemid - sundventilatsioon ja jahutus. Ärihoone on varustatud kaasaegsete kommunikatsiooni- ja sidesüsteemidega. Ruumidesse on tagatud ligipääs ööpäevaringselt ning territooriumil tagab turvalisuse videovalve. Maja fassaadile on võimalik paigaldada ettevõtte välireklaam.
Tänu aktiivse liiklusega Ehitajate teele, on tagatud hea ligipääs nii auto kui ka ühistranspordiga. Maja ees on tasuta parkimine üürnikele ja külalistele. Läheduses on mitmeid söögikohti lõunatamiseks või partneritega kohtumiseks.
Üürihinnale lisanduvad kõrvalkulud ja käibemaks.
Pakkumine on Teile vahendustasuta.
Huvi korral annan lisainformatsiooni ja korraldan objekti külastuse.
Kõik pakkumised ei ole avalikud! Hoones on pakkuda vabasid äripindasid suuruses 57.4-485 m². Meil on infot kõikide hoones asuvate äripindade kohta. Võta ühendust ja leiame Teile sobiva lahenduse!
Tutvuge Meistri tn 22 hoone ja teiste pakkumistega: http://re.ee/projektid/aripinnad/meistri-22
RE Kinnisvara AS on tegutsenud 1995. aastast, olles üks vanimaid Eesti kinnisvaraettevõtteid.
Pakume kinnisvaraga seotud täisteenust:
- äri- ja elamispindade maaklerteenus
- kinnisvara hindamine laenu tagatiseks, sh kohtutele, finantsaruandluseks jne.
- äri- ja elukondlike arendusprojektide müügikorraldus
- kinnisvaraturu ja -projektide analüüs ja konsultatsioon
- kinnisvara seadustamine
Teeme koostööd kõigi Eesti pankade ja finantsasutustega. Meie eksperthinnangud on aktsepteeritud kõigi Eestis tegutsevate krediidiasutuste poolt.
Tutvu lähemalt re.ee.
RE Kinnisvara AS – PARIM OSA KINNISVARAST
Helista 66 88 666 või saada e-mail ***@***.ee
https://facebook.com/re.kinnisvara
https://www.instagram.com/rekinnisvara/
https://ee.linkedin.com/company/re-kinnisvara
















