Üürile anda hea asukohaga büroopind Tallinna kesklinnas aadressil Liivalaia 22.
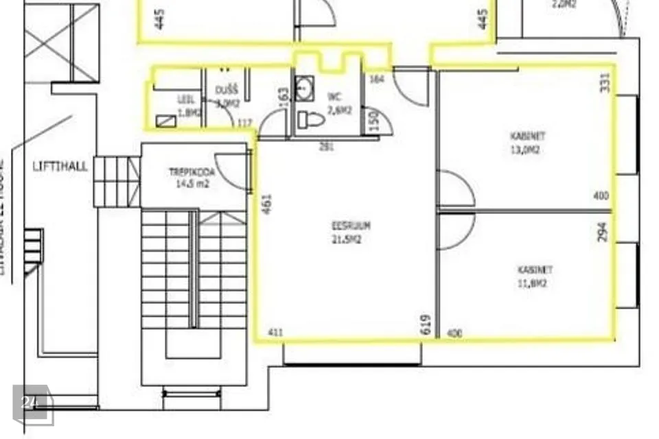
Äripind suurusega 89,7 m² asub hoone kolmandal korrusel. Pakutav pind koosneb avarast vastuvõtualast, nõupidamiste ruumist, neljast eraldi töökabinetist, dushiruumist, panipaigast ning tualettruumist. Olemas on kööginurga paigaldamise valmidus. Lisaks on olemas väike rõdu, vaatega hoovi poole. Ruumide plaan on leitav piltide galeriist.
Büroopinnal on sundventilatsioon ja jahutusseadmed. Olemas on valvesignalisatsioon ja kiire internetiühendus. Sissepääs hoonesse on üürnikele ööpäevaringne. Hoones on olemas lift.
Liivalaia 20a hoone on mugavas asukohas. Vahetus läheduses on erinevad ühistranspordi peatused, lühikese jalutuskäigu kaugusel on mitmed erinevaid toitlustuskohad.
Pinna juurde saab üürida parkimiskohti hoone kõrval olevas tõkkepuuga parklas.
Üürihinnale lisanduvad käibemaks ja kõrvalkulud. Pakkumine on vahendustasuta.
Huvi korral annan meeleldi lisainfot ning korraldan objekti külastuse.
Pangad pakuvad Domus Kinnisvara klientidele eluasemelaenu lepingutasu soodustusi. Küsi lisainfot Domus Kinnisvara maaklerilt või hindajalt.
Müü ja hinda meiega! Teeme kinnisvara müügi Sinu jaoks sujuvaks ja pingevabaks.
Äripind suurusega 89,7 m² asub hoone kolmandal korrusel. Pakutav pind koosneb avarast vastuvõtualast, nõupidamiste ruumist, neljast eraldi töökabinetist, dushiruumist, panipaigast ning tualettruumist. Olemas on kööginurga paigaldamise valmidus. Lisaks on olemas väike rõdu, vaatega hoovi poole. Ruumide plaan on leitav piltide galeriist.
Büroopinnal on sundventilatsioon ja jahutusseadmed. Olemas on valvesignalisatsioon ja kiire internetiühendus. Sissepääs hoonesse on üürnikele ööpäevaringne. Hoones on olemas lift.
Liivalaia 20a hoone on mugavas asukohas. Vahetus läheduses on erinevad ühistranspordi peatused, lühikese jalutuskäigu kaugusel on mitmed erinevaid toitlustuskohad.
Pinna juurde saab üürida parkimiskohti hoone kõrval olevas tõkkepuuga parklas.
Üürihinnale lisanduvad käibemaks ja kõrvalkulud. Pakkumine on vahendustasuta.
Huvi korral annan meeleldi lisainfot ning korraldan objekti külastuse.
Pangad pakuvad Domus Kinnisvara klientidele eluasemelaenu lepingutasu soodustusi. Küsi lisainfot Domus Kinnisvara maaklerilt või hindajalt.
Müü ja hinda meiega! Teeme kinnisvara müügi Sinu jaoks sujuvaks ja pingevabaks.

















