Avar ja stiilne äripind Solarise keskuses – ideaalne galerii, kohviku või ürituste korraldamise jaoks!
Üürile anda ainulaadne kahetasandiline äripind Tallinna südalinnas, Solarise keskuse Rävala puiestee poolsel küljel, Alexela kontserdimaja naabruses. Tegemist on suure potentsiaaliga pinnaga, mis sobib ideaalselt nii kunstigaleriiks, kohvikuks, kokteilibaariks, ateljeeks, stuudioks, kui ka ürituste või cateringi korraldamiseks.
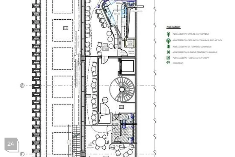
Äripinna üldpind: 405,6 m²
– I korrus: 255,1 m² (galerii, kontor, köök)
– II korrus: 150,5 m² (kokteilibaar)
PINNA KIRJELDUS
* Avar ja kõrgete lagedega esimene korrus, mida praegu kasutatakse kunstigaleriina.
* Eraldi kontoriruum ja ka köök, mis on varustatud professionaalse toitlustustehnikaga.
* Saab kasutada ning on olemas kaubalift korruste vaheliseks kauba transpordiks.
* Teisel korrusel tegutseb sisustatud kokteilibaar – vajadusel ja kokkuleppel kvaliteetne mööbel ja baaritehnika jäävad sisse, võimaldades tegevust koheselt jätkata.
* Mõlemal korrusel on olemas WC.
* Eraldi sissepääs tänavalt ning väga hea nähtavus.
* Fassaadile võimalik paigaldada logo või välireklaami.
* Olemas väiksem laoruum.
* Uhke valgustus ja elegantne interjöör loovad unikaalse atmosfääri.
ASUKOHT
Asukoht on üks Tallinna parimaid – kesklinna süda, Solarise keskuses ja Alexela kontserdimaja vahetus läheduses.
Ühistranspordi peatused on kõrval.
Suurepärane nähtavus ja pidev inimeste liikumine tagavad tugeva kliendivoo, eriti toitlustus- ja teenindusettevõtetele.
SOBIB IDEAALSELT
* kunstigalerii või ateljee,
* kohvik või kokteilibaar,
* catering- või üritusteenus,
* showroom,
* stuudio või väikepoe pind.
ÜÜR
Üürihinnale 4700 eurot kuus lisanduvad kommunaalkulud ja käibemaks.
Valmis koheseks sissekolimiseks ja tegevuse jätkamiseks.
Kui otsid oma ettevõttele kaasaegset, hästi ligipääsetavat ja stiilse sisustusega toitlustus/kokteilibaari, siis see pakkumine on just sinule.
Võta ühendust ja lepi kokku külastus!
Pangad pakuvad Domus Kinnisvara klientidele eluasemelaenu lepingutasu soodustusi. Küsi lisainfot Domus Kinnisvara maaklerilt või hindajalt.
Müü ja hinda meiega! Teeme kinnisvara müügi Sinu jaoks sujuvaks ja pingevabaks.
Üürile anda ainulaadne kahetasandiline äripind Tallinna südalinnas, Solarise keskuse Rävala puiestee poolsel küljel, Alexela kontserdimaja naabruses. Tegemist on suure potentsiaaliga pinnaga, mis sobib ideaalselt nii kunstigaleriiks, kohvikuks, kokteilibaariks, ateljeeks, stuudioks, kui ka ürituste või cateringi korraldamiseks.
Äripinna üldpind: 405,6 m²
– I korrus: 255,1 m² (galerii, kontor, köök)
– II korrus: 150,5 m² (kokteilibaar)
PINNA KIRJELDUS
* Avar ja kõrgete lagedega esimene korrus, mida praegu kasutatakse kunstigaleriina.
* Eraldi kontoriruum ja ka köök, mis on varustatud professionaalse toitlustustehnikaga.
* Saab kasutada ning on olemas kaubalift korruste vaheliseks kauba transpordiks.
* Teisel korrusel tegutseb sisustatud kokteilibaar – vajadusel ja kokkuleppel kvaliteetne mööbel ja baaritehnika jäävad sisse, võimaldades tegevust koheselt jätkata.
* Mõlemal korrusel on olemas WC.
* Eraldi sissepääs tänavalt ning väga hea nähtavus.
* Fassaadile võimalik paigaldada logo või välireklaami.
* Olemas väiksem laoruum.
* Uhke valgustus ja elegantne interjöör loovad unikaalse atmosfääri.
ASUKOHT
Asukoht on üks Tallinna parimaid – kesklinna süda, Solarise keskuses ja Alexela kontserdimaja vahetus läheduses.
Ühistranspordi peatused on kõrval.
Suurepärane nähtavus ja pidev inimeste liikumine tagavad tugeva kliendivoo, eriti toitlustus- ja teenindusettevõtetele.
SOBIB IDEAALSELT
* kunstigalerii või ateljee,
* kohvik või kokteilibaar,
* catering- või üritusteenus,
* showroom,
* stuudio või väikepoe pind.
ÜÜR
Üürihinnale 4700 eurot kuus lisanduvad kommunaalkulud ja käibemaks.
Valmis koheseks sissekolimiseks ja tegevuse jätkamiseks.
Kui otsid oma ettevõttele kaasaegset, hästi ligipääsetavat ja stiilse sisustusega toitlustus/kokteilibaari, siis see pakkumine on just sinule.
Võta ühendust ja lepi kokku külastus!
Pangad pakuvad Domus Kinnisvara klientidele eluasemelaenu lepingutasu soodustusi. Küsi lisainfot Domus Kinnisvara maaklerilt või hindajalt.
Müü ja hinda meiega! Teeme kinnisvara müügi Sinu jaoks sujuvaks ja pingevabaks.
































