2026. aprillis vabaneb avar ja stiilse siseviimistlusega büroo Telliskivi TLN linnakus asuva I2 büroohoone 3. korrusel.
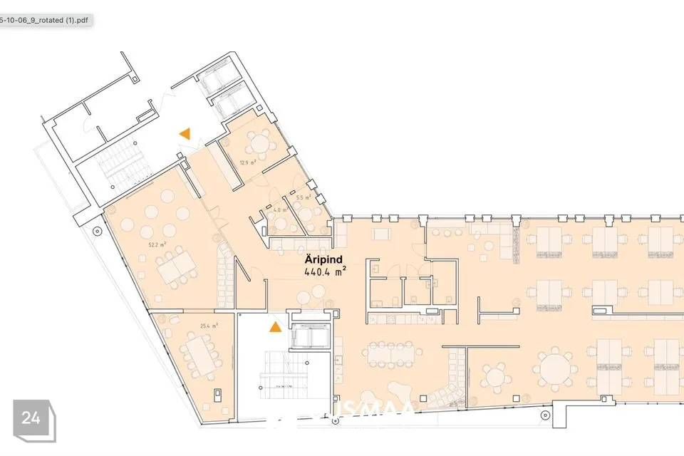
Pinna koosseisus on pisut liigendatud avatud planeeringuga tööala, nõupidamisruumid, kõneboksid, avar kööginurk-puhkeala ja tualettruumid.
Telliskivi TLN on ajaloolise tööstuspiirkonna asemele arendatud modernne ja atraktiivne ärilinnak, kus ärikodu leidnud hulk edukaid ettevõtteid. Telliskivis kohtuvad töö ja meelelahutus, sest lisaks esmaklassilistle büroodele on linnakus suurepärased restoranid, mitmekesine meelahutus ja hubased rohealad. See on linnak, kus alati midagi toimub ja mis pidevalt areneb!
Telliskivi TLN on mugavas asukohas, kesklinna piiril, kuhu on väga hea ligipääs nii autoga kui ühistranspordiga (tramm, buss, rong). Linnaku parklates on mugavad parkimisvõimalused nii üürnikele kui külalistele.
ÜÜRIHIND 18,5 eur/m2. Lisanduvad kõrvalkulud ja käibemaks.
Miks valida oma ärikoduks Telliskivi TLN:
- Arendaja on pühendunud sellele, et pakkuda ettevõtetele tegutsemiseks täisväärtuslikku keskkonda, samas seades rõhu inimkesksusele. Telliskivi TLN linnak ühendab endas A-klassi äripinnad lopsakate haljasalade, puhkealade ja kohapealsete mugavustega, luues tasakaalustatud linnaruumi ja keskkonna.
- Telliskivi TLN linnakus töötab igapäevaselt enam kui 2000 töötajat ning tööpäevadel kasutab linnakut enam kui 6000 inimest.
- Paindlikud, kaasaegsed ruumid: erineva funktsiooni ja miljööga äripinnad, mis on kohandatavad vastavalt ettevõtete vajadustele.
- Tugev bränd ja kogukond: Telliskivi TLN on keskkonnana ihaldatud asukoht ja mitmekesine üürnike struktuur loob võimalusi kogukonnaliikmete vaheliseks koostööks ja sünergiaks.
- Kohapealsed mugavused tagavad tasakaalu: söögikohad, meelelahutus, poed, terviseteenused ja haljasalad võimaldavad Telliskivi TLN üürnikel jääda kogu päeva jooksul inspireerituks.
NB! Linnakus valmib sel sügisel uus hoone: I4, kus ka veel mõned bürood pakkuda. Kui soovid päris uut pinda, siis vaata lähemalt: https://arikinnisvara.uusmaa.ee/hoone/699/i4-hoone/
Pakkumine on vahendustasuta.
Jaga minu kontakti kõigile, kes vajavad kinnisvaranõu!
Liitu meie uudiskirjaga ja saa homset kinnisvarainfot juba täna! Vaata https://arikinnisvara.uusmaa.ee
UUS MAA ÄRIKINNISVARA - aastakümned kogemust ja klientide usaldust, läbimõeldud täisteenus ja suurim arv eksperte: vahendamine, hindamine, haldamine, nõustamine ja investeerimine.
Pinna koosseisus on pisut liigendatud avatud planeeringuga tööala, nõupidamisruumid, kõneboksid, avar kööginurk-puhkeala ja tualettruumid.
Telliskivi TLN on ajaloolise tööstuspiirkonna asemele arendatud modernne ja atraktiivne ärilinnak, kus ärikodu leidnud hulk edukaid ettevõtteid. Telliskivis kohtuvad töö ja meelelahutus, sest lisaks esmaklassilistle büroodele on linnakus suurepärased restoranid, mitmekesine meelahutus ja hubased rohealad. See on linnak, kus alati midagi toimub ja mis pidevalt areneb!
Telliskivi TLN on mugavas asukohas, kesklinna piiril, kuhu on väga hea ligipääs nii autoga kui ühistranspordiga (tramm, buss, rong). Linnaku parklates on mugavad parkimisvõimalused nii üürnikele kui külalistele.
ÜÜRIHIND 18,5 eur/m2. Lisanduvad kõrvalkulud ja käibemaks.
Miks valida oma ärikoduks Telliskivi TLN:
- Arendaja on pühendunud sellele, et pakkuda ettevõtetele tegutsemiseks täisväärtuslikku keskkonda, samas seades rõhu inimkesksusele. Telliskivi TLN linnak ühendab endas A-klassi äripinnad lopsakate haljasalade, puhkealade ja kohapealsete mugavustega, luues tasakaalustatud linnaruumi ja keskkonna.
- Telliskivi TLN linnakus töötab igapäevaselt enam kui 2000 töötajat ning tööpäevadel kasutab linnakut enam kui 6000 inimest.
- Paindlikud, kaasaegsed ruumid: erineva funktsiooni ja miljööga äripinnad, mis on kohandatavad vastavalt ettevõtete vajadustele.
- Tugev bränd ja kogukond: Telliskivi TLN on keskkonnana ihaldatud asukoht ja mitmekesine üürnike struktuur loob võimalusi kogukonnaliikmete vaheliseks koostööks ja sünergiaks.
- Kohapealsed mugavused tagavad tasakaalu: söögikohad, meelelahutus, poed, terviseteenused ja haljasalad võimaldavad Telliskivi TLN üürnikel jääda kogu päeva jooksul inspireerituks.
NB! Linnakus valmib sel sügisel uus hoone: I4, kus ka veel mõned bürood pakkuda. Kui soovid päris uut pinda, siis vaata lähemalt: https://arikinnisvara.uusmaa.ee/hoone/699/i4-hoone/
Pakkumine on vahendustasuta.
Jaga minu kontakti kõigile, kes vajavad kinnisvaranõu!
Liitu meie uudiskirjaga ja saa homset kinnisvarainfot juba täna! Vaata https://arikinnisvara.uusmaa.ee
UUS MAA ÄRIKINNISVARA - aastakümned kogemust ja klientide usaldust, läbimõeldud täisteenus ja suurim arv eksperte: vahendamine, hindamine, haldamine, nõustamine ja investeerimine.



















