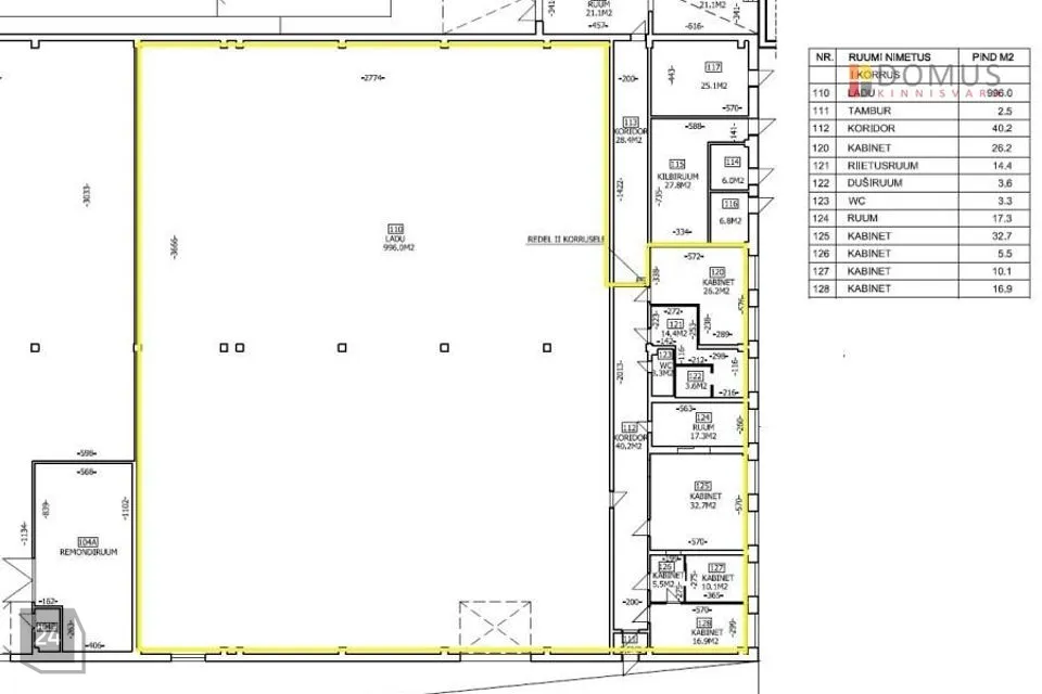
Anda üürile 1. korruse laopind koos bürooruumidega aadressil Laki 28, kogusuurusega 1162,5 m². Üüripind koosneb 996 m² suurusest laoruumist (laekõrgus tala alla 4,7 m, ülejäänud lae kõrgus 5,5m - 6,2m), mille juurde kuuluvad kontoriruumid (5 kabinetti, abiruum, pesuruum ja tualett). Ruumide plaan on leitav piltide galeriis.
SOODUSTUS: 1 kuu üüritasuta!
Laopinnal on kaugküte (kalorifeerid), kontoriruumid on köetavad elektri- ja õhksoojuspumbaga. Pakutavat inda on võimalik jagada ning üürida ka väiksemas mahus, kas 430 m² või 566 m².
Pakutav pind asub aktiivses ärikvartalis, laohoonele on mugav ligipääs nii Laki tänavalt kui ka Kadaka teelt. Kauba laadimiseks on estakaad, samuti on olemas kaldtee. Üüripind on valvestatav.
Hinnale lisanduvad kõrvalkulud ja käibemaks. Tagatisraha on kahe kuu üürisumma. Pakkumine on vahendustasuta.
Huvi korral annan meeleldi lisainfot ning korraldan objekti külastuse.
Pangad pakuvad Domus Kinnisvara klientidele eluasemelaenu lepingutasu soodustusi. Küsi lisainfot Domus Kinnisvara maaklerilt või hindajalt.
Müü ja hinda meiega! Teeme kinnisvara müügi Sinu jaoks sujuvaks ja pingevabaks.
SOODUSTUS: 1 kuu üüritasuta!
Laopinnal on kaugküte (kalorifeerid), kontoriruumid on köetavad elektri- ja õhksoojuspumbaga. Pakutavat inda on võimalik jagada ning üürida ka väiksemas mahus, kas 430 m² või 566 m².
Pakutav pind asub aktiivses ärikvartalis, laohoonele on mugav ligipääs nii Laki tänavalt kui ka Kadaka teelt. Kauba laadimiseks on estakaad, samuti on olemas kaldtee. Üüripind on valvestatav.
Hinnale lisanduvad kõrvalkulud ja käibemaks. Tagatisraha on kahe kuu üürisumma. Pakkumine on vahendustasuta.
Huvi korral annan meeleldi lisainfot ning korraldan objekti külastuse.
Pangad pakuvad Domus Kinnisvara klientidele eluasemelaenu lepingutasu soodustusi. Küsi lisainfot Domus Kinnisvara maaklerilt või hindajalt.
Müü ja hinda meiega! Teeme kinnisvara müügi Sinu jaoks sujuvaks ja pingevabaks.


















