2025 kevadel valminud MARA ärimaja asub Lasnamäe südames Mahtra 30d.
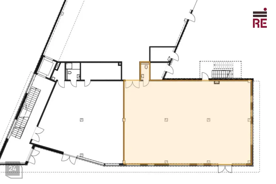
1. korrusel asuva suurte klaasakendega kaubanduspinna suurus 212,3m2. Äripind on hästi nähtav ja ligipääsetav Mustakivi teelt. Ruumidesse on sissepääs otse tänavalt. Parkimiskohad (tasuta) otse äripinna ees. NB! Võimalik üürida ka 143m2 suurune 1.korruse äripind.
Pinnal on veeühendused köögi jaoks, abiruumid ning ligipääs suurde lattu, mida on võimalik lisaks üürida 10,5Eur/m2+km+kõrvalkulud (lao suurus 754m2). Laopinnal on laadimine maaga tasapinnas olevate tõstuste kaudu. Tootmis- või laoruumi kõrgus fermini on 6m. Põranda kandevõime on 5 t/m2.
Hoone vastab A energiaklassile tagades energiasäästlikkuse. Katusele paigaldatakse päikesepaneelid energia säästmiseks.
Lisaks on maja 2. ja 3.korrusel võimalik üürida väiksemaid büroo/teenindusruume 37-64 m2.
Ümbruskonnas leidub mitmeid söögikohti ja siin on head ühistranspordi ühendused.
Mara maja vastas üle tee asub Mustakivi Selver ja lühikese jalutuskäigu kaugusele jääb Lasnamäe Centrum.
Teisi pakkumisi MARA ärihoones saab vaadata siin - https://re.ee/kinnisvaraprojekt/aripinnad/stockoffice/mara-arimaja-mahtra-30d/
Huvi korral annan meeleldi lisainformatsiooni ja korraldan objekti külastuse.
RE Kinnisvara AS on tegutsenud 1995. aastast, olles üks vanimaid Eesti kinnisvaraettevõtteid.
Pakume kinnisvaraga seotud täisteenust:
- äri- ja elamispindade maaklerteenus
- kinnisvara hindamine laenu tagatiseks, sh kohtutele, finantsaruandluseks jne.
- äri- ja elukondlike arendusprojektide müügikorraldus
- kinnisvaraturu ja -projektide analüüs ja konsultatsioon
- kinnisvara seadustamine
Teeme koostööd kõigi Eesti pankade ja finantsasutustega. Meie eksperthinnangud on aktsepteeritud kõigi Eestis tegutsevate krediidiasutuste poolt.
Tutvu lähemalt re.ee.
RE Kinnisvara AS – PARIM OSA KINNISVARAST
Helista 66 88 666 või saada e-mail ***@***.ee
https://facebook.com/re.kinnisvara
https://www.instagram.com/rekinnisvara/
https://ee.linkedin.com/company/re-kinnisvara
1. korrusel asuva suurte klaasakendega kaubanduspinna suurus 212,3m2. Äripind on hästi nähtav ja ligipääsetav Mustakivi teelt. Ruumidesse on sissepääs otse tänavalt. Parkimiskohad (tasuta) otse äripinna ees. NB! Võimalik üürida ka 143m2 suurune 1.korruse äripind.
Pinnal on veeühendused köögi jaoks, abiruumid ning ligipääs suurde lattu, mida on võimalik lisaks üürida 10,5Eur/m2+km+kõrvalkulud (lao suurus 754m2). Laopinnal on laadimine maaga tasapinnas olevate tõstuste kaudu. Tootmis- või laoruumi kõrgus fermini on 6m. Põranda kandevõime on 5 t/m2.
Hoone vastab A energiaklassile tagades energiasäästlikkuse. Katusele paigaldatakse päikesepaneelid energia säästmiseks.
Lisaks on maja 2. ja 3.korrusel võimalik üürida väiksemaid büroo/teenindusruume 37-64 m2.
Ümbruskonnas leidub mitmeid söögikohti ja siin on head ühistranspordi ühendused.
Mara maja vastas üle tee asub Mustakivi Selver ja lühikese jalutuskäigu kaugusele jääb Lasnamäe Centrum.
Teisi pakkumisi MARA ärihoones saab vaadata siin - https://re.ee/kinnisvaraprojekt/aripinnad/stockoffice/mara-arimaja-mahtra-30d/
Huvi korral annan meeleldi lisainformatsiooni ja korraldan objekti külastuse.
RE Kinnisvara AS on tegutsenud 1995. aastast, olles üks vanimaid Eesti kinnisvaraettevõtteid.
Pakume kinnisvaraga seotud täisteenust:
- äri- ja elamispindade maaklerteenus
- kinnisvara hindamine laenu tagatiseks, sh kohtutele, finantsaruandluseks jne.
- äri- ja elukondlike arendusprojektide müügikorraldus
- kinnisvaraturu ja -projektide analüüs ja konsultatsioon
- kinnisvara seadustamine
Teeme koostööd kõigi Eesti pankade ja finantsasutustega. Meie eksperthinnangud on aktsepteeritud kõigi Eestis tegutsevate krediidiasutuste poolt.
Tutvu lähemalt re.ee.
RE Kinnisvara AS – PARIM OSA KINNISVARAST
Helista 66 88 666 või saada e-mail ***@***.ee
https://facebook.com/re.kinnisvara
https://www.instagram.com/rekinnisvara/
https://ee.linkedin.com/company/re-kinnisvara





















