Trendikas büroopind A-energiaklassi 2025.a valminud ärihoones Telliskivi südames.
Üürile anda kvaliteetsed büroopinnad Telliskivi 51a asuvas uues ärihoones. Kauss arhitektuuribüroo poolt projekteeritud kolmekorruseline hoone paikneb Telliskivi loomelinnaku vahetus läheduses, pakkudes inspireerivat töökeskkonda.
Hoone on projekteeritud raudbetoonist kandekonstruktsiooniga, mis võimaldab paindlikku ruumiplaneeringut vastavalt üürniku vajadustele. Kõrged aknad kõigis välisseintes tagavad rikkaliku loomuliku valguse ruumis. Hoone 2. ja 3. korrusel asuvad büroopinnad, 1. korrusel paiknevad kohvik ja restoran.
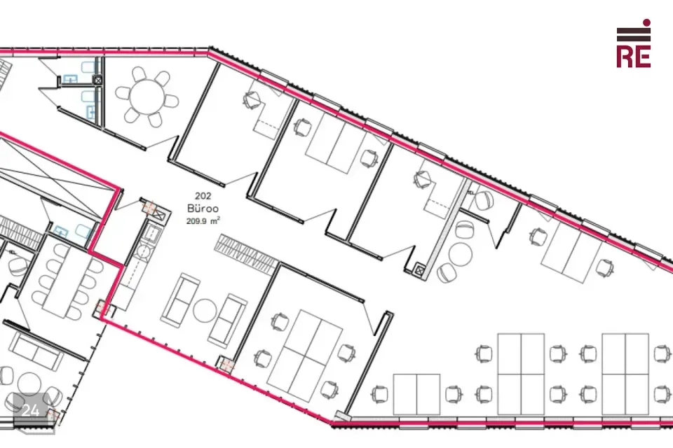
Pakutavas teise korruse 209,9m2 suuruses büroos on vastuvõtualas kaks tualetiboksi, kööginurga valmidus (vesi-kanal olemas), ülejäänud on hetkel avatud büroo, kuid on võimalik luua eraldi kabinette ja nõupidamisruume. Näidislahendusega ruumiplaan on leitav piltide galeriis. Samas hoones on üürile anda ka 121.2m2 suurune teise korruse bürooruum.
Hoones on kaasaegne Šveitsi tootja Zehnder laekütte ja -jahutussüsteem, mis tagab ühtlase ja mugava sisekliima aastaringselt. Koosolekuruumides on lisajahutussüsteemid (fancoil). Hoone A-energiaklass ja katusel asuvad päikesepaneelid aitavad hoida kõrvalkulusid madalal. Aknad on kolmekordse klaaspaketiga ning vahelagedes on kasutatud sammumüra vähendavaid lahendusi.
Hoones on lift ning igale pinnale on toodud turvasüsteemide valmidus. Kinnistu territooriumile rajatakse jalgrattahoidjad, elektriautode laadimiskohad ning maja taha uus pargiala. Parkimiskohad külalistele otse maja ees.
Telliskivi piirkonnas on kõik vajalik käe-jala juures - söögikohad, poed, terviseteenused, meelelahutus ning rohealad. Asukoht Tallinna kesklinna piiril võimaldab suurepärase ligipääsu kõikidest suundadest ning ühistranspordi ühendused (tramm, rong, buss) on väga head. Nii jalgratta kui autoga liikujatele on tagatud parkimisvõimalused.
Hoone valmib 2025. aasta oktoobris.
Üürile lisandub käibemaks ja kõrvalkulud.
Huvi korral võtke ühendust ning leiame Teile sobiva lahenduse!
RE Kinnisvara AS on tegutsenud 1995. aastast, olles üks vanimaid Eesti kinnisvaraettevõtteid.
Pakume kinnisvaraga seotud täisteenust:
- äri- ja elamispindade maaklerteenus
- kinnisvara hindamine laenu tagatiseks, sh kohtutele, finantsaruandluseks jne.
- äri- ja elukondlike arendusprojektide müügikorraldus
- kinnisvaraturu ja -projektide analüüs ja konsultatsioon
- kinnisvara seadustamine
Teeme koostööd kõigi Eesti pankade ja finantsasutustega. Meie eksperthinnangud on aktsepteeritud kõigi Eestis tegutsevate krediidiasutuste poolt.
Tutvu lähemalt re.ee.
RE Kinnisvara AS – PARIM OSA KINNISVARAST
Helista 66 88 666 või saada e-mail ***@***.ee
https://facebook.com/re.kinnisvara
https://www.instagram.com/rekinnisvara/
https://ee.linkedin.com/company/re-kinnisvara
Üürile anda kvaliteetsed büroopinnad Telliskivi 51a asuvas uues ärihoones. Kauss arhitektuuribüroo poolt projekteeritud kolmekorruseline hoone paikneb Telliskivi loomelinnaku vahetus läheduses, pakkudes inspireerivat töökeskkonda.
Hoone on projekteeritud raudbetoonist kandekonstruktsiooniga, mis võimaldab paindlikku ruumiplaneeringut vastavalt üürniku vajadustele. Kõrged aknad kõigis välisseintes tagavad rikkaliku loomuliku valguse ruumis. Hoone 2. ja 3. korrusel asuvad büroopinnad, 1. korrusel paiknevad kohvik ja restoran.
Pakutavas teise korruse 209,9m2 suuruses büroos on vastuvõtualas kaks tualetiboksi, kööginurga valmidus (vesi-kanal olemas), ülejäänud on hetkel avatud büroo, kuid on võimalik luua eraldi kabinette ja nõupidamisruume. Näidislahendusega ruumiplaan on leitav piltide galeriis. Samas hoones on üürile anda ka 121.2m2 suurune teise korruse bürooruum.
Hoones on kaasaegne Šveitsi tootja Zehnder laekütte ja -jahutussüsteem, mis tagab ühtlase ja mugava sisekliima aastaringselt. Koosolekuruumides on lisajahutussüsteemid (fancoil). Hoone A-energiaklass ja katusel asuvad päikesepaneelid aitavad hoida kõrvalkulusid madalal. Aknad on kolmekordse klaaspaketiga ning vahelagedes on kasutatud sammumüra vähendavaid lahendusi.
Hoones on lift ning igale pinnale on toodud turvasüsteemide valmidus. Kinnistu territooriumile rajatakse jalgrattahoidjad, elektriautode laadimiskohad ning maja taha uus pargiala. Parkimiskohad külalistele otse maja ees.
Telliskivi piirkonnas on kõik vajalik käe-jala juures - söögikohad, poed, terviseteenused, meelelahutus ning rohealad. Asukoht Tallinna kesklinna piiril võimaldab suurepärase ligipääsu kõikidest suundadest ning ühistranspordi ühendused (tramm, rong, buss) on väga head. Nii jalgratta kui autoga liikujatele on tagatud parkimisvõimalused.
Hoone valmib 2025. aasta oktoobris.
Üürile lisandub käibemaks ja kõrvalkulud.
Huvi korral võtke ühendust ning leiame Teile sobiva lahenduse!
RE Kinnisvara AS on tegutsenud 1995. aastast, olles üks vanimaid Eesti kinnisvaraettevõtteid.
Pakume kinnisvaraga seotud täisteenust:
- äri- ja elamispindade maaklerteenus
- kinnisvara hindamine laenu tagatiseks, sh kohtutele, finantsaruandluseks jne.
- äri- ja elukondlike arendusprojektide müügikorraldus
- kinnisvaraturu ja -projektide analüüs ja konsultatsioon
- kinnisvara seadustamine
Teeme koostööd kõigi Eesti pankade ja finantsasutustega. Meie eksperthinnangud on aktsepteeritud kõigi Eestis tegutsevate krediidiasutuste poolt.
Tutvu lähemalt re.ee.
RE Kinnisvara AS – PARIM OSA KINNISVARAST
Helista 66 88 666 või saada e-mail ***@***.ee
https://facebook.com/re.kinnisvara
https://www.instagram.com/rekinnisvara/
https://ee.linkedin.com/company/re-kinnisvara





















