Üürile anda väga hea nähtavusega esimese korruse teeninduspind aadressil Liivalaia 13 asuvas ECE Ärimajas.
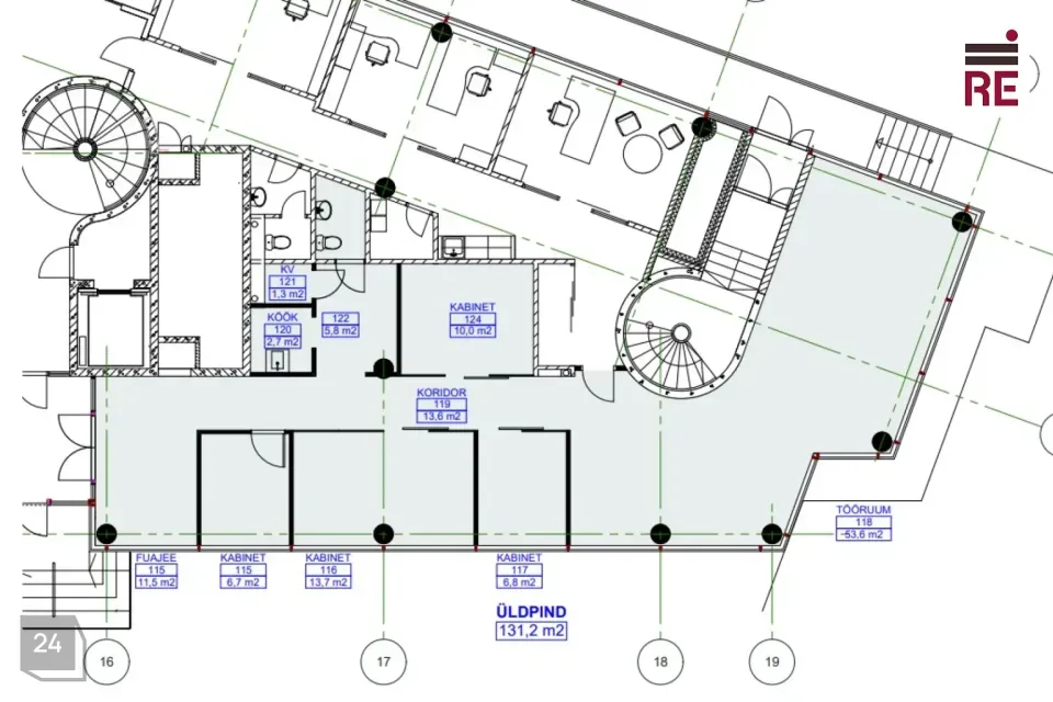
Ruumid koosnevad neljast kabinetist, lisaks suurem avatud ala, köök ja tualett.
Ruumid on vabad.
Ruumid on varustatud kaasaegsete tehnosüsteemidega (jahutus, ventilatsioon, küte).
Parkimismajas on antud pinnaga võimalik üürida üks parkimiskoht hinnaga 85€/kuu. Hoone nullkorrusel on võimalik üürile võtta ka väiksemaid laobokse.
Külalised saavad parkida erinevates lähedal asuvates avalikes parklates. Hoone 1.korrusel on administraator.
Maja üürnikeks on mitmed erinevad ettevõtted ja asutused nagu näiteks Hispaania ja Korea Vabariigi Suursaatkond.
Ruumidesse on tagatud 24h ligipääs.
Üürihinnale lisanduvad kõrvalkulud ja käibemaks.
Pakkumine on vahendustasuta!
ECE Ärimajas on ka teisi pakkumisi, palun tutvuge nendega siin:
http://www.re.ee/projektid/aripinnad/ece-arimaja/
Huvi korral annan meeleldi lisainfot ja korraldan objekti külastuse.
Kui antud objekt ei ole see mida otsite, siis andke oma soovist teada ja leiame just teile sobiva pinna.
RE Kinnisvara AS on tegutsenud 1995. aastast, olles üks vanimaid Eesti kinnisvaraettevõtteid.
Pakume kinnisvaraga seotud täisteenust:
- äri- ja elamispindade maaklerteenus
- kinnisvara hindamine laenu tagatiseks, sh kohtutele, finantsaruandluseks jne.
- äri- ja elukondlike arendusprojektide müügikorraldus
- kinnisvaraturu ja -projektide analüüs ja konsultatsioon
- kinnisvara seadustamine
Teeme koostööd kõigi Eesti pankade ja finantsasutustega. Meie eksperthinnangud on aktsepteeritud kõigi Eestis tegutsevate krediidiasutuste poolt.
Tutvu lähemalt re.ee.
RE Kinnisvara AS – PARIM OSA KINNISVARAST
Helista 66 88 666 või saada e-mail ***@***.ee
https://facebook.com/re.kinnisvara
https://www.instagram.com/rekinnisvara/
https://ee.linkedin.com/company/re-kinnisvara
Ruumid koosnevad neljast kabinetist, lisaks suurem avatud ala, köök ja tualett.
Ruumid on vabad.
Ruumid on varustatud kaasaegsete tehnosüsteemidega (jahutus, ventilatsioon, küte).
Parkimismajas on antud pinnaga võimalik üürida üks parkimiskoht hinnaga 85€/kuu. Hoone nullkorrusel on võimalik üürile võtta ka väiksemaid laobokse.
Külalised saavad parkida erinevates lähedal asuvates avalikes parklates. Hoone 1.korrusel on administraator.
Maja üürnikeks on mitmed erinevad ettevõtted ja asutused nagu näiteks Hispaania ja Korea Vabariigi Suursaatkond.
Ruumidesse on tagatud 24h ligipääs.
Üürihinnale lisanduvad kõrvalkulud ja käibemaks.
Pakkumine on vahendustasuta!
ECE Ärimajas on ka teisi pakkumisi, palun tutvuge nendega siin:
http://www.re.ee/projektid/aripinnad/ece-arimaja/
Huvi korral annan meeleldi lisainfot ja korraldan objekti külastuse.
Kui antud objekt ei ole see mida otsite, siis andke oma soovist teada ja leiame just teile sobiva pinna.
RE Kinnisvara AS on tegutsenud 1995. aastast, olles üks vanimaid Eesti kinnisvaraettevõtteid.
Pakume kinnisvaraga seotud täisteenust:
- äri- ja elamispindade maaklerteenus
- kinnisvara hindamine laenu tagatiseks, sh kohtutele, finantsaruandluseks jne.
- äri- ja elukondlike arendusprojektide müügikorraldus
- kinnisvaraturu ja -projektide analüüs ja konsultatsioon
- kinnisvara seadustamine
Teeme koostööd kõigi Eesti pankade ja finantsasutustega. Meie eksperthinnangud on aktsepteeritud kõigi Eestis tegutsevate krediidiasutuste poolt.
Tutvu lähemalt re.ee.
RE Kinnisvara AS – PARIM OSA KINNISVARAST
Helista 66 88 666 või saada e-mail ***@***.ee
https://facebook.com/re.kinnisvara
https://www.instagram.com/rekinnisvara/
https://ee.linkedin.com/company/re-kinnisvara





















