Üürile anda äripind Järve Keskuse territooriumil.
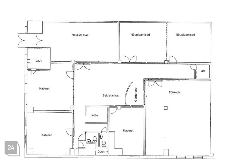
Pind asub esimesel korrusel ja sobib suurepäraselt ettevõttele, kes vajab nii lao-, kaubandus- kui ka bürooruume. Pind vabaneb 2026. a esimeses kvartalis.
Miks valida see üüripind?
Tasuta parkimine.
24/7 juurdepääs.
Vaid 10-minutilise autosõidu kaugusel Tallinna kesklinnast.
Mitmekesine söögikohtade valik Järve Keskuses.
Ideaalne võimalus ettevõtetele, kes hindavad kvaliteetset töökeskkonda ja mugavat asukohta.
Hinnale lisanduvad kõrvalkulud ja käibemaks.
Silikaat Grupp on Eesti kapitalil põhinev kontsern, mille omandis on üle 355 kinnistu üle Eesti. Meie portfelli kuuluvad Järve Keskus, Väike-Järve Ärikeskus, Lepa Keskus, Silikaat Tehnopark, Järve Laod ja innovaatiline hotellikontseptsioon Nothel. Tutvu meie äripindadega aadressil arimaja.ee.
Huvi korral võtke meiega ühendust!
Pind asub esimesel korrusel ja sobib suurepäraselt ettevõttele, kes vajab nii lao-, kaubandus- kui ka bürooruume. Pind vabaneb 2026. a esimeses kvartalis.
Miks valida see üüripind?
Tasuta parkimine.
24/7 juurdepääs.
Vaid 10-minutilise autosõidu kaugusel Tallinna kesklinnast.
Mitmekesine söögikohtade valik Järve Keskuses.
Ideaalne võimalus ettevõtetele, kes hindavad kvaliteetset töökeskkonda ja mugavat asukohta.
Hinnale lisanduvad kõrvalkulud ja käibemaks.
Silikaat Grupp on Eesti kapitalil põhinev kontsern, mille omandis on üle 355 kinnistu üle Eesti. Meie portfelli kuuluvad Järve Keskus, Väike-Järve Ärikeskus, Lepa Keskus, Silikaat Tehnopark, Järve Laod ja innovaatiline hotellikontseptsioon Nothel. Tutvu meie äripindadega aadressil arimaja.ee.
Huvi korral võtke meiega ühendust!




