Üürile anda stiilse siseviimistlusega täiesti sisustatud büroo Maakri Kvartalis, mis on Tallinna üks mainekaim ärikvartal.
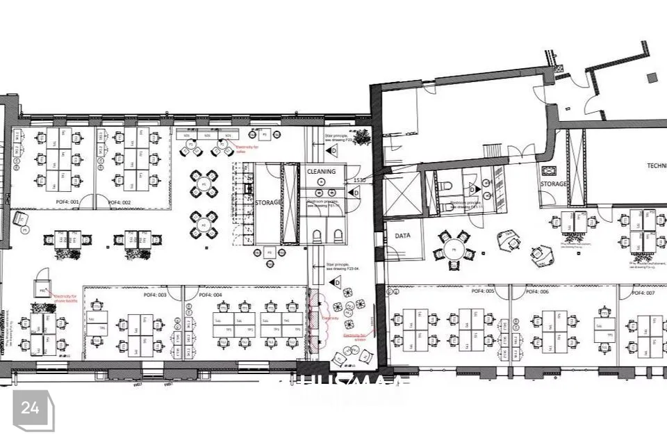
Terve korruse hõlmav pind mahutab üle 60 töökoha. Pind on väga hea planeeringuga: eri suuruses tööruumid, avatud tööala, kõneboksid, avar kööginurk ja mitu hubast puhkeala, lisaks panipaigad, tualettruumid ja garderoob.
Pinnal on olemas kogu kontoris vajalik mööbel, mis teeb sissekolimise ülimugavaks: tulge vaid oma arvutitega kohale ja valige igaüks sobiv töökoht!
Pinnale on kaks sissepääsu, ühe puhul on olemas ka lift, teine ainult trepist.
Maakri Kvartal on unikaalne kooslus moodsatest klaashoonetest ja eelmise sajandi algusest pärinevatest, 2018. aastal renoveeritud hoonetest. Neist ühes paiknebki kõnealune kaunis büroo.
Kvartali peasissepääsu juure on esinduslik fuajee. Tornmaja 3. korrusel on terrassiga lõunarestoran, samuti on kvartalis a la carte restorani HÄRG ja Kolm Sibulat, erinevad kauplused ja teenindusettevõtted ning rohealaga sisehoov, kus võimalik puhata või üritusi korraldada. Kõik selleks, et pakkuda kvartalis tegutsevatele ettevõtetele mugavat töökeskkond.
Suurepärane asukoht linnasüdames tagab mugava ligipääsu kõigist Tallinna piirkondadest. Lähinaabriteks südalinna suurimad büroohooned: Skyon, Tornimäe Ärikeskus, City Plaza, Euroopa Liidu maja, SEB hoone, Rävala Ärikeskus, Novira Plaza ja hotellid: Radisson Blu Sky, Swissôtel.
Naabruses on avalikud parklad, sh Rävala pst all paiknev parkla, mille kaudu on Maakri Kvartal ühenduses naaberhoonetega, sh Stockmanni kaubamajaga. Hoone parkimismajas saab üürida parkimiskohti vabade kohtade olemasolu korral.
Üürihind on esimesed 6 kuud vaid 12 500 eurot kuus, lisandub käibemaks. NB! Hinnas sisalduvad kõik kõrvalkulud ja mööbli kasutamine. Kauba peale saad kasutada ka samas hoones paikneva Worklandi hüvesid (koosolekuruumid, ühisüritused jne). Edasine hind sõltub lepingu perioodist.
Kui otsid inspireeriva atmosfääriga bürood, võta ühendust ja tule vaatama!
NB! Pakkuda ka väiksemat bürood, võta ühendust ja küsi infot võimaluste kohta!
Jaga minu kontakti kõigile, kes vajavad kinnisvaranõu!
Liitu meie uudiskirjaga ja saa homset kinnisvarainfot juba täna! Vaata https://arikinnisvara.uusmaa.ee
UUS MAA ÄRIKINNISVARA - aastakümned kogemust ja klientide usaldust, läbimõeldud täisteenus ja suurim arv eksperte: vahendamine, hindamine, haldamine, nõustamine ja investeerimine.
Terve korruse hõlmav pind mahutab üle 60 töökoha. Pind on väga hea planeeringuga: eri suuruses tööruumid, avatud tööala, kõneboksid, avar kööginurk ja mitu hubast puhkeala, lisaks panipaigad, tualettruumid ja garderoob.
Pinnal on olemas kogu kontoris vajalik mööbel, mis teeb sissekolimise ülimugavaks: tulge vaid oma arvutitega kohale ja valige igaüks sobiv töökoht!
Pinnale on kaks sissepääsu, ühe puhul on olemas ka lift, teine ainult trepist.
Maakri Kvartal on unikaalne kooslus moodsatest klaashoonetest ja eelmise sajandi algusest pärinevatest, 2018. aastal renoveeritud hoonetest. Neist ühes paiknebki kõnealune kaunis büroo.
Kvartali peasissepääsu juure on esinduslik fuajee. Tornmaja 3. korrusel on terrassiga lõunarestoran, samuti on kvartalis a la carte restorani HÄRG ja Kolm Sibulat, erinevad kauplused ja teenindusettevõtted ning rohealaga sisehoov, kus võimalik puhata või üritusi korraldada. Kõik selleks, et pakkuda kvartalis tegutsevatele ettevõtetele mugavat töökeskkond.
Suurepärane asukoht linnasüdames tagab mugava ligipääsu kõigist Tallinna piirkondadest. Lähinaabriteks südalinna suurimad büroohooned: Skyon, Tornimäe Ärikeskus, City Plaza, Euroopa Liidu maja, SEB hoone, Rävala Ärikeskus, Novira Plaza ja hotellid: Radisson Blu Sky, Swissôtel.
Naabruses on avalikud parklad, sh Rävala pst all paiknev parkla, mille kaudu on Maakri Kvartal ühenduses naaberhoonetega, sh Stockmanni kaubamajaga. Hoone parkimismajas saab üürida parkimiskohti vabade kohtade olemasolu korral.
Üürihind on esimesed 6 kuud vaid 12 500 eurot kuus, lisandub käibemaks. NB! Hinnas sisalduvad kõik kõrvalkulud ja mööbli kasutamine. Kauba peale saad kasutada ka samas hoones paikneva Worklandi hüvesid (koosolekuruumid, ühisüritused jne). Edasine hind sõltub lepingu perioodist.
Kui otsid inspireeriva atmosfääriga bürood, võta ühendust ja tule vaatama!
NB! Pakkuda ka väiksemat bürood, võta ühendust ja küsi infot võimaluste kohta!
Jaga minu kontakti kõigile, kes vajavad kinnisvaranõu!
Liitu meie uudiskirjaga ja saa homset kinnisvarainfot juba täna! Vaata https://arikinnisvara.uusmaa.ee
UUS MAA ÄRIKINNISVARA - aastakümned kogemust ja klientide usaldust, läbimõeldud täisteenus ja suurim arv eksperte: vahendamine, hindamine, haldamine, nõustamine ja investeerimine.
























