Anda üürile lao ja tootmisruumid Pirita Kosel.
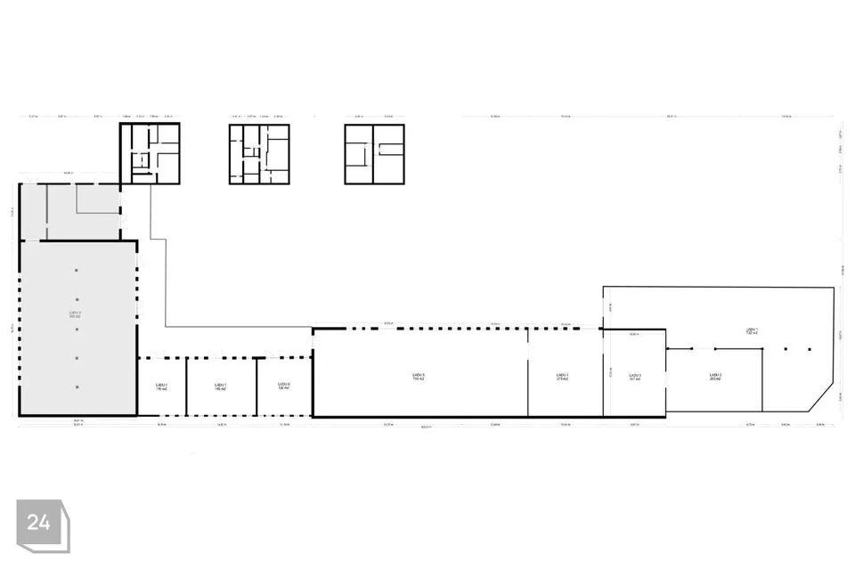
Joonisel on üüritav pind märgitud: Ladu 1-3, kokku 1205 m2
Soovi korral saab üürile võtta ka teisi ruume territooriumil.
Joonisel halli tooniga märgitud ruumid on üürile antud, ülejäänud ruumid on vabad.
Aiaga piiratud territooriumil paiknevad tootmis ja laohooned on ehitatud aastatel 1975 – 2005. Hooned on omavahel ühenduses. Saab kasutusele võtta ka eraldatud hoonetena.
Hunditubaka tee 3 hoone on suurusega 2268 m2
Hunditubaka tee 7 Ladu ja adminstratiivhoone suurusega 1860 m2
Hunditubaka tee 7 Ladu 630 m2
Kokku üüritavat pinda 4758 m2.
Suur territoorium, väga head manööverdamise võimalused erineva suurusega veokitele.
Ruumides on tegutsenud pikka aega tekstiilitööstus.
Üürnik vähendas tegevust Eestist, mistõttu ka olemasolev leping lõpetatati.
Olemas vesi ja kanalisatsioon
Gaasiküte
Elektrivõimsus: 200A + 250A
Lao kõrgus fermini 5,5 m
Tasuta parkimine hoovis
Huvi korral võta ühendust ja küsi lisa.
JAGA MINU KONTAKTI KÕIGILE, KES VAJAVAD KINNISVARANÕU!
- - - - - - - - - -
Telli hindamine UUS MAA Kinnisvarabüroolt https://uusmaa.ee/teenused/hindamine/
UUS MAA KINNISVARABÜROO EKSPERTHINNANGUID AKTSEPTEERIVAD KÕIK FINANTSASUTUSED.
- - - - - - - - - -
Liitu Uus Maa uudiskirjaga ja saa homset kinnisvarainfot juba täna!
https://www.uusmaa.ee/uudiskirjagaliitumine/
- - - - - - - - - -
Kodu aitab osta Swedbank.
Pakkumise saamiseks kasuta koodi UUSMAA ja Sind teenindatakse eelisjärjekorras.
Võtame ühendust 1 tööpäeva jooksul.
Uus Maa kliendile soodsam lepingutasu. Küsi täpsemat infot maaklerilt.
Finantsteenuseid pakub Swedbank AS. Tutvu tingimustega, pea nõu.
Joonisel on üüritav pind märgitud: Ladu 1-3, kokku 1205 m2
Soovi korral saab üürile võtta ka teisi ruume territooriumil.
Joonisel halli tooniga märgitud ruumid on üürile antud, ülejäänud ruumid on vabad.
Aiaga piiratud territooriumil paiknevad tootmis ja laohooned on ehitatud aastatel 1975 – 2005. Hooned on omavahel ühenduses. Saab kasutusele võtta ka eraldatud hoonetena.
Hunditubaka tee 3 hoone on suurusega 2268 m2
Hunditubaka tee 7 Ladu ja adminstratiivhoone suurusega 1860 m2
Hunditubaka tee 7 Ladu 630 m2
Kokku üüritavat pinda 4758 m2.
Suur territoorium, väga head manööverdamise võimalused erineva suurusega veokitele.
Ruumides on tegutsenud pikka aega tekstiilitööstus.
Üürnik vähendas tegevust Eestist, mistõttu ka olemasolev leping lõpetatati.
Olemas vesi ja kanalisatsioon
Gaasiküte
Elektrivõimsus: 200A + 250A
Lao kõrgus fermini 5,5 m
Tasuta parkimine hoovis
Huvi korral võta ühendust ja küsi lisa.
JAGA MINU KONTAKTI KÕIGILE, KES VAJAVAD KINNISVARANÕU!
- - - - - - - - - -
Telli hindamine UUS MAA Kinnisvarabüroolt https://uusmaa.ee/teenused/hindamine/
UUS MAA KINNISVARABÜROO EKSPERTHINNANGUID AKTSEPTEERIVAD KÕIK FINANTSASUTUSED.
- - - - - - - - - -
Liitu Uus Maa uudiskirjaga ja saa homset kinnisvarainfot juba täna!
https://www.uusmaa.ee/uudiskirjagaliitumine/
- - - - - - - - - -
Kodu aitab osta Swedbank.
Pakkumise saamiseks kasuta koodi UUSMAA ja Sind teenindatakse eelisjärjekorras.
Võtame ühendust 1 tööpäeva jooksul.
Uus Maa kliendile soodsam lepingutasu. Küsi täpsemat infot maaklerilt.
Finantsteenuseid pakub Swedbank AS. Tutvu tingimustega, pea nõu.









































