Pakume võimalust astuda Tallinna vanalinna restoranipidajate sekka prestiižsel Vana-Posti tänaval, kus kohtuvad vanalinna ajalugu ja kaasaegne meelelahutusmaailm. Tegemist on erakordselt hea asukohaga äripinnaga, mis paikneb turistide ja kohalike armastatud liikumistrajektooril.
Teie ees on valik - jätkata toimiva kontseptsiooniga või luua täiesti uus lähenemine gastronoomiale selles ajaloolises, kuid samas aktiivses piirkonnas. Vana-Posti tänava strateegiline positsioon tagab pideva külastajate voo läbi aasta.
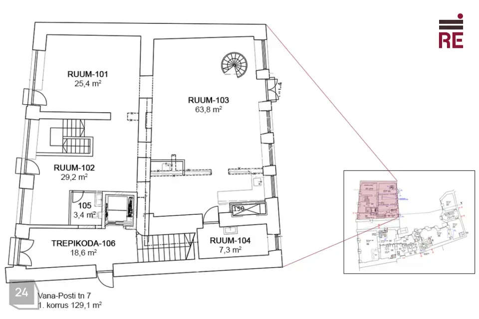
Pakutavad restoraniruumid paiknevad esimesel (129,1m2) ja nullkorrusel (107,7m2), kokku on ruumide pindala 236,8m2. Lisaväärtusena kuulub restoranile privaatne terrassiala sisehoovis.
Pakkumine hõlmab ruume ilma sisustuse ja köögitehnikata, kuid olemasolevat sisustuse osas on võimalik eraldi kokku leppida.
Restoran asub 1914. aastal ehitatud juugendstiilis hoones, mis sai osaliselt kannatada II maailmasõja aegsetel pommitamistel ning taastati 1947. aastal. 2018. aasta alguses läbis hoone põhjaliku renoveerimise, mille käigus:
- Uuendati täielikult hoone fassaad
- Renoveeriti sissepääsud ja fuajeed esinduslikule ärihoonele kohaselt
- Paigaldati hoone üürnikke ja külastajaid teenindav lift
- Varustati kõik pinnad kaasaegsete kommunikatsioonidega, sh sundventilatsiooni ja jahutusega
Tegemist on multifunktsionaalse ärihoonega, kus esimesel korrusel tegutsevad restoranid, kõrgematel korrustel paiknevad büroopinnad ja külaliskorterid, mis loob hea kliendivoo potentsiaali.
Vana-Posti tänav asub Tallinna vanalinna südames, turistide ja kohalike elanike tiheda liikumisega piirkonnas. Ruumide asukoht tagab pideva klientuuri.
Üürihinnale lisanduvad kõrvalkulud ja käibemaks.
Tagatisraha on kahe kuu üürisumma.
Pakkumine on vahendustasuta!
Huvi korral võtke ühendust ning leiame Teile sobiva lahenduse!
RE Kinnisvara AS on tegutsenud 1995. aastast, olles üks vanimaid Eesti kinnisvaraettevõtteid.
Pakume kinnisvaraga seotud täisteenust:
- äri- ja elamispindade maaklerteenus
- kinnisvara hindamine laenu tagatiseks, sh kohtutele, finantsaruandluseks jne.
- äri- ja elukondlike arendusprojektide müügikorraldus
- kinnisvaraturu ja -projektide analüüs ja konsultatsioon
- kinnisvara seadustamine
Teeme koostööd kõigi Eesti pankade ja finantsasutustega. Meie eksperthinnangud on aktsepteeritud kõigi Eestis tegutsevate krediidiasutuste poolt.
Tutvu lähemalt re.ee.
RE Kinnisvara AS – PARIM OSA KINNISVARAST
Helista 66 88 666 või saada e-mail ***@***.ee
https://facebook.com/re.kinnisvara
https://www.instagram.com/rekinnisvara/
https://ee.linkedin.com/company/re-kinnisvara
Teie ees on valik - jätkata toimiva kontseptsiooniga või luua täiesti uus lähenemine gastronoomiale selles ajaloolises, kuid samas aktiivses piirkonnas. Vana-Posti tänava strateegiline positsioon tagab pideva külastajate voo läbi aasta.
Pakutavad restoraniruumid paiknevad esimesel (129,1m2) ja nullkorrusel (107,7m2), kokku on ruumide pindala 236,8m2. Lisaväärtusena kuulub restoranile privaatne terrassiala sisehoovis.
Pakkumine hõlmab ruume ilma sisustuse ja köögitehnikata, kuid olemasolevat sisustuse osas on võimalik eraldi kokku leppida.
Restoran asub 1914. aastal ehitatud juugendstiilis hoones, mis sai osaliselt kannatada II maailmasõja aegsetel pommitamistel ning taastati 1947. aastal. 2018. aasta alguses läbis hoone põhjaliku renoveerimise, mille käigus:
- Uuendati täielikult hoone fassaad
- Renoveeriti sissepääsud ja fuajeed esinduslikule ärihoonele kohaselt
- Paigaldati hoone üürnikke ja külastajaid teenindav lift
- Varustati kõik pinnad kaasaegsete kommunikatsioonidega, sh sundventilatsiooni ja jahutusega
Tegemist on multifunktsionaalse ärihoonega, kus esimesel korrusel tegutsevad restoranid, kõrgematel korrustel paiknevad büroopinnad ja külaliskorterid, mis loob hea kliendivoo potentsiaali.
Vana-Posti tänav asub Tallinna vanalinna südames, turistide ja kohalike elanike tiheda liikumisega piirkonnas. Ruumide asukoht tagab pideva klientuuri.
Üürihinnale lisanduvad kõrvalkulud ja käibemaks.
Tagatisraha on kahe kuu üürisumma.
Pakkumine on vahendustasuta!
Huvi korral võtke ühendust ning leiame Teile sobiva lahenduse!
RE Kinnisvara AS on tegutsenud 1995. aastast, olles üks vanimaid Eesti kinnisvaraettevõtteid.
Pakume kinnisvaraga seotud täisteenust:
- äri- ja elamispindade maaklerteenus
- kinnisvara hindamine laenu tagatiseks, sh kohtutele, finantsaruandluseks jne.
- äri- ja elukondlike arendusprojektide müügikorraldus
- kinnisvaraturu ja -projektide analüüs ja konsultatsioon
- kinnisvara seadustamine
Teeme koostööd kõigi Eesti pankade ja finantsasutustega. Meie eksperthinnangud on aktsepteeritud kõigi Eestis tegutsevate krediidiasutuste poolt.
Tutvu lähemalt re.ee.
RE Kinnisvara AS – PARIM OSA KINNISVARAST
Helista 66 88 666 või saada e-mail ***@***.ee
https://facebook.com/re.kinnisvara
https://www.instagram.com/rekinnisvara/
https://ee.linkedin.com/company/re-kinnisvara




























