* KAMPAANIA! ÜÜRIHIND ÜHEKS AASTAKS ON 13,5€ / M2, ALATES TEISEST AASTAST ON ÜÜRIHIND TAVAPÄRANE EHK 19€ / M2. LISANDUB KÄIBEMAKS JA KÕRVALKULUD.
Üürile anda uus kaasaegne, maast laeni akendega büroopind energiatõhusas ärihoones Pirita jõe kaldal - kõigest 15 min sõidu kaugusel Kesklinnast. Äripinnalt avanevad looduskaunid vaated merele, Pirita männimetsale ja jahisadamale. Hoone on projekteeritud kõrgelt tunnustatud KoKo arhitektide poolt ja ehitajaks on Mapri Ehitus.
Ruumid on vabad ja valmis koheseks sissekolimiseks!
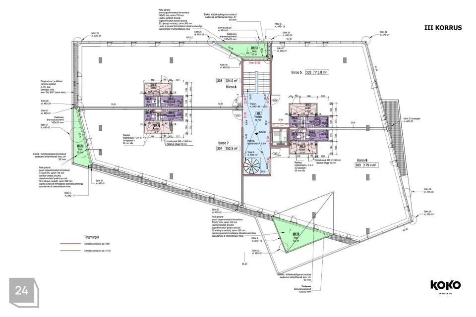
BÜROO NR 3
Ruumidele annavad avarust ja valgust põrandast laeni 3-kordsed alumiinium profiilaknad ning kõrged 3-meetrised laed. Äripinnale on paigaldatud individuaalne ventilatsiooni- ja jahutussüsteem, mida juhitakse kaasaegse targa maja tehnoloogia abil.
- Netopindala 152.5 m², millele lisandub avatud tüüpi 10.4 m² suurune rõdu kaunite vaadetega männimetsale ja merele;
- Kabinettide arv vastavalt kliendi soovidele;
- Kaks tualettruumi ja üks duširuum;
Jõesuu tee 6 hoones on saadaval veel teised erineva suurusega äripinnad - helista ja küsi lisa!
I korrus:
TEENINDUSPIND / 54.2 m² / VABA
II korrus:
BÜROO 1 / 115.9 m² / ÜÜRITUD
BÜROO 2 / 180.1 m² / VABA
BÜROO 3 / 152.5 m² / VABA
BÜROO 4 / 136.3 m² / ÜÜRITUD
III korrus:
BÜROO 5 / 115.8 m² / ÜÜRITUD
BÜROO 6 / 179.4 m² / ÜÜRITUD
BÜROO 7 / 152.5 m² / VABA
BÜROO 8 / 134 m² / ÜÜRITUD
HOONE
Elegantse kaasaegse põhjamaise arhitektuuriga hoonet iseloomustab ruumide avarus ja valgusküllasus. Hoone energiatõhusus on saavutatud keskkonnasõbraliku maaküttega. Maasisesed energiavaiad tagavad kogu hoone kütte- ja jahutusvajadused.
Targa maja tehnoloogiaga on võimalik reguleerida hoone sisekliimat ning juhtida seadmeid lähtudes väliskeskkonna muutustest või kasutaja soovidest.
Mugavaks liiklemiseks on majas olemas lift.
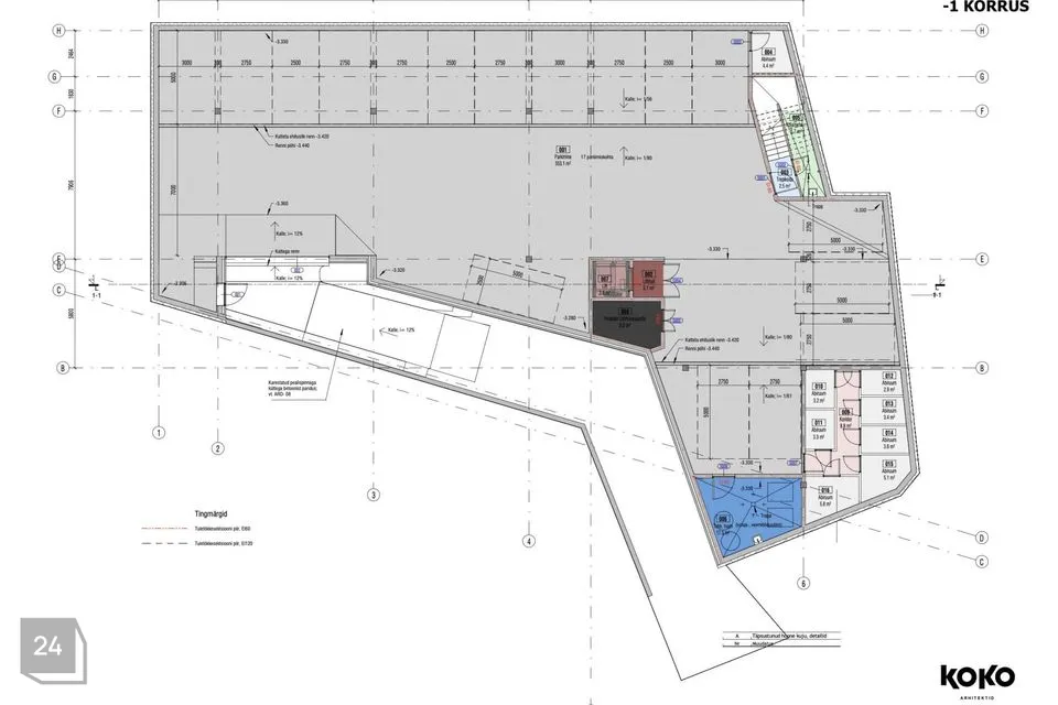
PARKIMINE / PANIPAIGAD
Töötajad saavad mugavalt parkida oma autot soojas maa-aluses garaažis hoone -1 korrusel (ühe parkimiskoha üür on €100 / kuu, millele lisandub käibemaks), klientide jaoks leidub rohkelt parkimiskohti maja kõrval asuvas linnaparklas ja ka ümbruses. NB! Pirita parkimistsoonis on tasuta parkimine perioodil 15. september kuni 15. mai.
Garaažikorrusel on mahukad panipaigad mugavaks asjade hoiustamiseks (üürihind: €100 + käibemaks).
ASUKOHT
Suurepärane asukoht kõigest 10-minutilise sõidutee kaugusel Kesklinnast. Hoone läheduses asuvad Pirita Vaba Aja Keskus, Pirita Keskus ja Rimi, Kalevi Jahtklubi ja Restoran, Perearstikeskus ja Pirita Spordikeskus.
Üürilepingu sõlmimisel tuleb tasuda ettemaks esimese kuu üüri eest ja tagatisraha kahe kuu üürisumma ulatuses. Pakkumine Teile on vahendustasuta.
Võta ühendust, kui otsid looduskauni asukohaga kaasaegset büroopinda uues energiatõhusas ärihoones!
* Kui soovite müüa, osta või üürida kinnisvara, siis pöörduge julgesti minu poole! Samuti aitan vajadusel pangalaenu taotlemisel ja tagatisvara või ostetava vara hindamisel.
JAGA MINU KONTAKTI KÕIGILE, KES VAJAVAD KINNISVARANÕU!
- - - - - - - - - -
Telli hindamine UUS MAA Kinnisvarabüroolt https://uusmaa.ee/teenused/hindamine/
UUS MAA KINNISVARABÜROO EKSPERTHINNANGUID AKTSEPTEERIVAD KÕIK FINANTSASUTUSED.
- - - - - - - - - -
Liitu Uus Maa uudiskirjaga ja saa homset kinnisvarainfot juba täna!
https://www.uusmaa.ee/uudiskirjagaliitumine/
- - - - - - - - - -
Kodu aitab osta Swedbank.
Pakkumise saamiseks kasuta koodi UUSMAA ja Sind teenindatakse eelisjärjekorras.
Võtame ühendust 1 tööpäeva jooksul.
Uus Maa kliendile soodsam lepingutasu. Küsi täpsemat infot maaklerilt.
Finantsteenuseid pakub Swedbank AS. Tutvu tingimustega, pea nõu.
Üürile anda uus kaasaegne, maast laeni akendega büroopind energiatõhusas ärihoones Pirita jõe kaldal - kõigest 15 min sõidu kaugusel Kesklinnast. Äripinnalt avanevad looduskaunid vaated merele, Pirita männimetsale ja jahisadamale. Hoone on projekteeritud kõrgelt tunnustatud KoKo arhitektide poolt ja ehitajaks on Mapri Ehitus.
Ruumid on vabad ja valmis koheseks sissekolimiseks!
BÜROO NR 3
Ruumidele annavad avarust ja valgust põrandast laeni 3-kordsed alumiinium profiilaknad ning kõrged 3-meetrised laed. Äripinnale on paigaldatud individuaalne ventilatsiooni- ja jahutussüsteem, mida juhitakse kaasaegse targa maja tehnoloogia abil.
- Netopindala 152.5 m², millele lisandub avatud tüüpi 10.4 m² suurune rõdu kaunite vaadetega männimetsale ja merele;
- Kabinettide arv vastavalt kliendi soovidele;
- Kaks tualettruumi ja üks duširuum;
Jõesuu tee 6 hoones on saadaval veel teised erineva suurusega äripinnad - helista ja küsi lisa!
I korrus:
TEENINDUSPIND / 54.2 m² / VABA
II korrus:
BÜROO 1 / 115.9 m² / ÜÜRITUD
BÜROO 2 / 180.1 m² / VABA
BÜROO 3 / 152.5 m² / VABA
BÜROO 4 / 136.3 m² / ÜÜRITUD
III korrus:
BÜROO 5 / 115.8 m² / ÜÜRITUD
BÜROO 6 / 179.4 m² / ÜÜRITUD
BÜROO 7 / 152.5 m² / VABA
BÜROO 8 / 134 m² / ÜÜRITUD
HOONE
Elegantse kaasaegse põhjamaise arhitektuuriga hoonet iseloomustab ruumide avarus ja valgusküllasus. Hoone energiatõhusus on saavutatud keskkonnasõbraliku maaküttega. Maasisesed energiavaiad tagavad kogu hoone kütte- ja jahutusvajadused.
Targa maja tehnoloogiaga on võimalik reguleerida hoone sisekliimat ning juhtida seadmeid lähtudes väliskeskkonna muutustest või kasutaja soovidest.
Mugavaks liiklemiseks on majas olemas lift.
PARKIMINE / PANIPAIGAD
Töötajad saavad mugavalt parkida oma autot soojas maa-aluses garaažis hoone -1 korrusel (ühe parkimiskoha üür on €100 / kuu, millele lisandub käibemaks), klientide jaoks leidub rohkelt parkimiskohti maja kõrval asuvas linnaparklas ja ka ümbruses. NB! Pirita parkimistsoonis on tasuta parkimine perioodil 15. september kuni 15. mai.
Garaažikorrusel on mahukad panipaigad mugavaks asjade hoiustamiseks (üürihind: €100 + käibemaks).
ASUKOHT
Suurepärane asukoht kõigest 10-minutilise sõidutee kaugusel Kesklinnast. Hoone läheduses asuvad Pirita Vaba Aja Keskus, Pirita Keskus ja Rimi, Kalevi Jahtklubi ja Restoran, Perearstikeskus ja Pirita Spordikeskus.
Üürilepingu sõlmimisel tuleb tasuda ettemaks esimese kuu üüri eest ja tagatisraha kahe kuu üürisumma ulatuses. Pakkumine Teile on vahendustasuta.
Võta ühendust, kui otsid looduskauni asukohaga kaasaegset büroopinda uues energiatõhusas ärihoones!
* Kui soovite müüa, osta või üürida kinnisvara, siis pöörduge julgesti minu poole! Samuti aitan vajadusel pangalaenu taotlemisel ja tagatisvara või ostetava vara hindamisel.
JAGA MINU KONTAKTI KÕIGILE, KES VAJAVAD KINNISVARANÕU!
- - - - - - - - - -
Telli hindamine UUS MAA Kinnisvarabüroolt https://uusmaa.ee/teenused/hindamine/
UUS MAA KINNISVARABÜROO EKSPERTHINNANGUID AKTSEPTEERIVAD KÕIK FINANTSASUTUSED.
- - - - - - - - - -
Liitu Uus Maa uudiskirjaga ja saa homset kinnisvarainfot juba täna!
https://www.uusmaa.ee/uudiskirjagaliitumine/
- - - - - - - - - -
Kodu aitab osta Swedbank.
Pakkumise saamiseks kasuta koodi UUSMAA ja Sind teenindatakse eelisjärjekorras.
Võtame ühendust 1 tööpäeva jooksul.
Uus Maa kliendile soodsam lepingutasu. Küsi täpsemat infot maaklerilt.
Finantsteenuseid pakub Swedbank AS. Tutvu tingimustega, pea nõu.

































