Üürile anda äripind teise korrusel Hipodroomi ristmiku lähistel. Metalli 3 hoone asub vahetult ühe linna suurima tuiksoone läheduses. Pinnale on hea ligipääs nii Kristiine, Kesklinna, Mustamäe kui ka Haabersti suunalt.
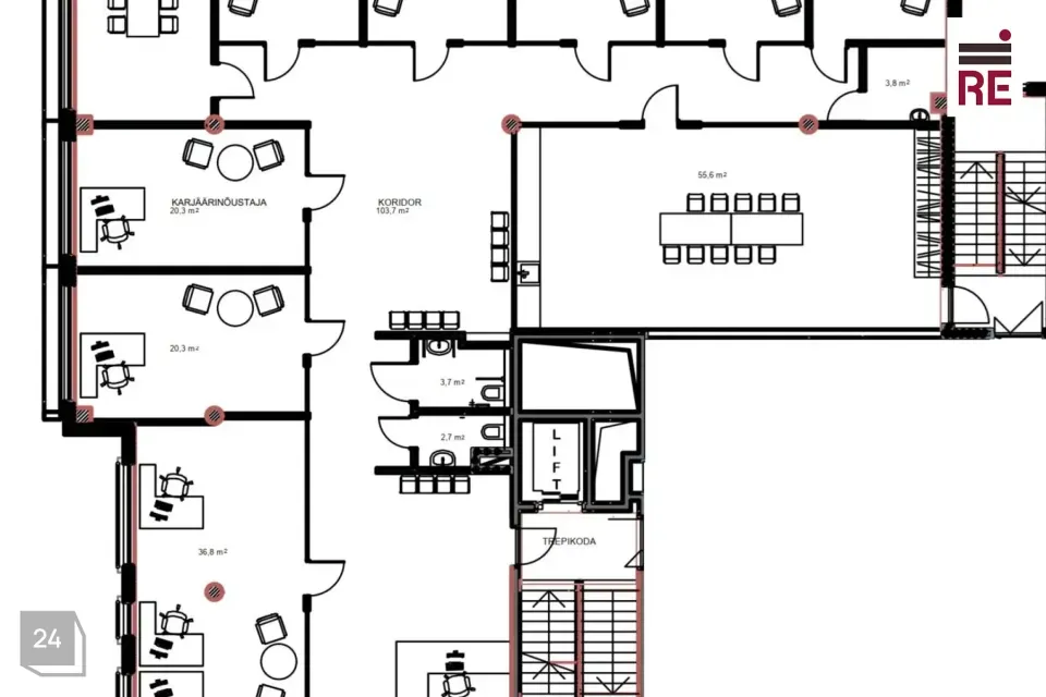
Tegemist on mugava planeeringuga äripinnaga, mille suurus on 396,9 m2. Pinnaga on võimalik liita kõrvalasuvad ruumid suurendades kasutatava kogupinna ca 550 m2-ni.
Ruume iseloomustavad klaasustega kabinetid ning suured aknapinnad, mis avavad vaated ümbruskonnale ja toovad siseruumidesse rohkelt loomulikku valgust. Valgusküllane ja avar õhkkond loob töötamiseks inspireeriva ja energiat andva keskkonna. Ruumide keskmesse saab kujundada mõnusa puhkeala.
Pinnal on olemas veeühendused kööginurga paigaldamiseks ja oma tualettruumid.
Planeeringut ja sisekujundust saab kohandada vastavalt üürniku soovidele.
Hoone soojusallikaks on kaugküte, siseruume köetakse radiaatoritega. Hoonel on soojustagastiga ventilatsioonisüsteem, jahutusüsteem toimib paneelide abil.
Ümbritsev piirkond on rahulik ja roheline. Naabruses on valdavalt elumajad ja väiksemad büroohooned. Vahetus läheduses Endla tänaval asuvad bussipeatused.
Üürnike parkimine on võimaldatud maja hoovis ja kinnistul maja ees.
Üürihinnale lisanduvad kõrvalkulud ja käibemaks. Vahendustasu ei lisandu.
Huvi korral annan lisainformatsiooni ja korraldan objekti külastuse.
Kõik pakkumised ei ole avalikud! Hoones on pakkuda vabasid äripindasid suuruses 36.7-507.3 m². Meil on infot kõikide hoones asuvate äripindade kohta. Võta ühendust ja leiame Teile sobiva lahenduse!
RE Kinnisvara AS on tegutsenud 1995. aastast, olles üks vanimaid Eesti kinnisvaraettevõtteid.
Pakume kinnisvaraga seotud täisteenust:
- äri- ja elamispindade maaklerteenus
- kinnisvara hindamine laenu tagatiseks, sh kohtutele, finantsaruandluseks jne.
- äri- ja elukondlike arendusprojektide müügikorraldus
- kinnisvaraturu ja -projektide analüüs ja konsultatsioon
- kinnisvara seadustamine
Teeme koostööd kõigi Eesti pankade ja finantsasutustega. Meie eksperthinnangud on aktsepteeritud kõigi Eestis tegutsevate krediidiasutuste poolt.
Tutvu lähemalt re.ee.
RE Kinnisvara AS – PARIM OSA KINNISVARAST
Helista 66 88 666 või saada e-mail ***@***.ee
https://facebook.com/re.kinnisvara
https://www.instagram.com/rekinnisvara/
https://ee.linkedin.com/company/re-kinnisvara
Tegemist on mugava planeeringuga äripinnaga, mille suurus on 396,9 m2. Pinnaga on võimalik liita kõrvalasuvad ruumid suurendades kasutatava kogupinna ca 550 m2-ni.
Ruume iseloomustavad klaasustega kabinetid ning suured aknapinnad, mis avavad vaated ümbruskonnale ja toovad siseruumidesse rohkelt loomulikku valgust. Valgusküllane ja avar õhkkond loob töötamiseks inspireeriva ja energiat andva keskkonna. Ruumide keskmesse saab kujundada mõnusa puhkeala.
Pinnal on olemas veeühendused kööginurga paigaldamiseks ja oma tualettruumid.
Planeeringut ja sisekujundust saab kohandada vastavalt üürniku soovidele.
Hoone soojusallikaks on kaugküte, siseruume köetakse radiaatoritega. Hoonel on soojustagastiga ventilatsioonisüsteem, jahutusüsteem toimib paneelide abil.
Ümbritsev piirkond on rahulik ja roheline. Naabruses on valdavalt elumajad ja väiksemad büroohooned. Vahetus läheduses Endla tänaval asuvad bussipeatused.
Üürnike parkimine on võimaldatud maja hoovis ja kinnistul maja ees.
Üürihinnale lisanduvad kõrvalkulud ja käibemaks. Vahendustasu ei lisandu.
Huvi korral annan lisainformatsiooni ja korraldan objekti külastuse.
Kõik pakkumised ei ole avalikud! Hoones on pakkuda vabasid äripindasid suuruses 36.7-507.3 m². Meil on infot kõikide hoones asuvate äripindade kohta. Võta ühendust ja leiame Teile sobiva lahenduse!
RE Kinnisvara AS on tegutsenud 1995. aastast, olles üks vanimaid Eesti kinnisvaraettevõtteid.
Pakume kinnisvaraga seotud täisteenust:
- äri- ja elamispindade maaklerteenus
- kinnisvara hindamine laenu tagatiseks, sh kohtutele, finantsaruandluseks jne.
- äri- ja elukondlike arendusprojektide müügikorraldus
- kinnisvaraturu ja -projektide analüüs ja konsultatsioon
- kinnisvara seadustamine
Teeme koostööd kõigi Eesti pankade ja finantsasutustega. Meie eksperthinnangud on aktsepteeritud kõigi Eestis tegutsevate krediidiasutuste poolt.
Tutvu lähemalt re.ee.
RE Kinnisvara AS – PARIM OSA KINNISVARAST
Helista 66 88 666 või saada e-mail ***@***.ee
https://facebook.com/re.kinnisvara
https://www.instagram.com/rekinnisvara/
https://ee.linkedin.com/company/re-kinnisvara

















