Kadaka pst 112, Tallinn aadressil valmis 2024. a lõpus energiatõhus büroohoone. Pakkumisel on 80.4-ruutmeetrine männimetsa ja terviseraja poole avaneva terrassiga äripind. Eelistatult on oodatud toitlustamisega seotud ettevõtted. Uurige aga igal juhul lähemalt!
Lisainfoks, et Kadaka pst viadukt avati liiklusele 19.05. Üüripind jääb tee pealt väga hästi nähtavale kohale.
HOONE
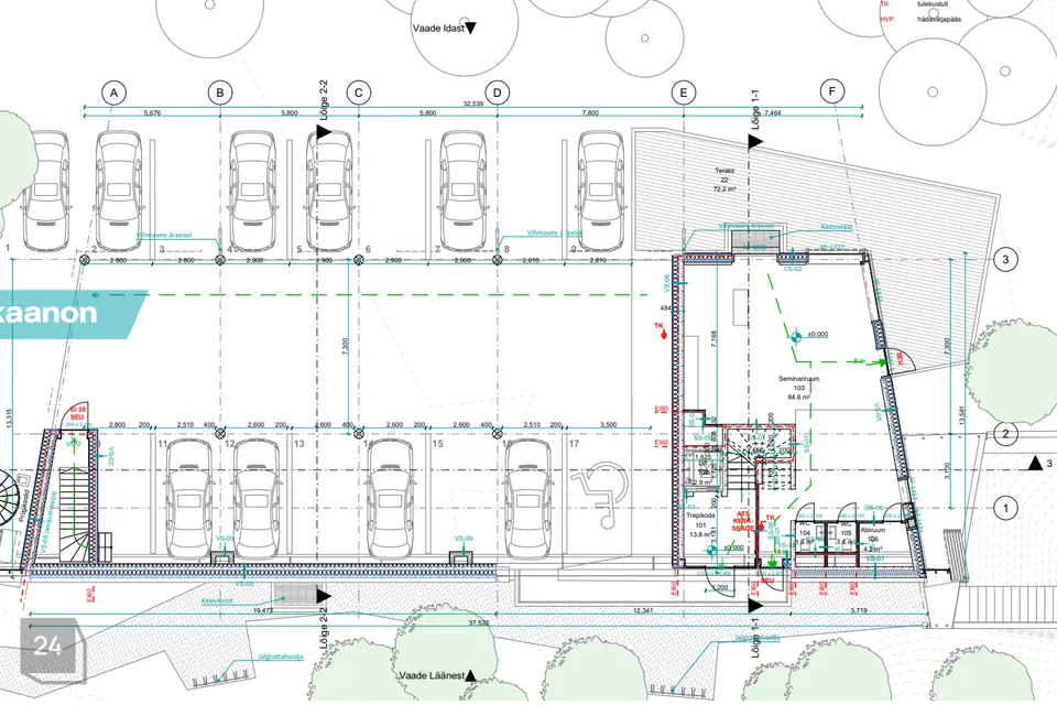
Kauni männimetsa veerel valminud büroohoone on funktsionaalselt jaotatud kihiliselt, korruste kaupa. Alumistele korrustele on ette nähtud terviseradasid teenindava funktsiooniga pinnad - need asuvad keldrikorrusel ja esimesel maapealsel korrusel, vastavalt siis treeningsaali ja võimaliku ürituste korraldamise ruumina. Teisele korrusele on planeeritud väljaüüritavad büroopinnad ning kolmas korrus on ettenähtud hoone tellija kontoriks, mis hõlmab endas kogu korruse.
Kuna büroohoone asub suhteliselt suure liikluskoormusega Kadaka pst ääres, siis hoone arhitektuuri osas on kavandatud Kadaka pst äärne külg suhteliselt kinnise ja läbipaistmatu betoonseinana (minimaalse akende koguse ja suurustega). Hoone ida- ja lõunakülgedele aga avanevad suurepärased vaated metsale ning terviseradadele- need küljed on projekteeritud suurte maast laeni akendega ning hoone materjalikontseptsioonis ka soojas võtmes. Seega ebameeldivama tänavapoolse keskkonna suunas jäävad kõvemad, kalgimad ja tugevamad materjalid (betoon) ning metsa ja inimeste poole soojemad (puit). Kõiki hoone korruseid teenindab invanõuetele vastav lift. Maja küte on lahendatud ruumipõhiselt reguleeritava põrandakütte näol ning olemas on ka jahutussüsteem ja loomulikult ka ventilatsioonisüsteem.
Pinnal on 2 WC-d ning lisaväärtuseks on 72.2-ruutmeetrine väliterrass.
Parkimine on lahendatud hoonealuses avatud parklas ning omanikule kuuluval kõrvalkinnistul. Jalgratastele on ette nähtud jalgrattahoidjad.
ASUKOHT
Kadaka pst 112 hoone asub kaunil metsaveerel Kadaka pst ääres Nõmmel. Maja juures asub kohe Hiiu-Harku terviserada ning läheduses on ka Nõmme Spordikeskus ja Glehni park. Piirkond sobib suurepäraselt loodust ja aktiivset eluviisi hindavatele inimestele.
Huvi korral võtke ühendust ning uurige lähemalt! Pind on valmis sissekolimiseks!
---
SUPERSOODUSTUSED PANKADELT
Ostes endale kodu Kaanoni vahendusel, pakuvad pangad meie maakleri poolt panka saadetud vihje alusel kodulaenu lepingutasudele mitmeid soodustusi. Uuri lähemalt meie maaklerilt.
Tegu on finantsteenustega. Tutvu tingimustega ja pea nõu asjatundjatega.
---
KAANON KINNISVARABÜROO
30-aastase kogemusega kinnisvarabüroo. Meie kogenud maaklerid aitavad sind kinnisvaraalastes küsimustes.
Meie hindajad koostavad hindamisi pankadele ja teistele krediidiasutustele, kohtutele, finantsaruandluseks, müügihinna määramiseks, varalisteks vaidlusteks ning konsulteerivad vara väärtusega seotud küsimustes.
Kui soovid kinnisvara müüa või hinnata siis võta palun ühendust meie meeskonnaga: www.kaanon.ee/kontakt
Lisainfoks, et Kadaka pst viadukt avati liiklusele 19.05. Üüripind jääb tee pealt väga hästi nähtavale kohale.
HOONE
Kauni männimetsa veerel valminud büroohoone on funktsionaalselt jaotatud kihiliselt, korruste kaupa. Alumistele korrustele on ette nähtud terviseradasid teenindava funktsiooniga pinnad - need asuvad keldrikorrusel ja esimesel maapealsel korrusel, vastavalt siis treeningsaali ja võimaliku ürituste korraldamise ruumina. Teisele korrusele on planeeritud väljaüüritavad büroopinnad ning kolmas korrus on ettenähtud hoone tellija kontoriks, mis hõlmab endas kogu korruse.
Kuna büroohoone asub suhteliselt suure liikluskoormusega Kadaka pst ääres, siis hoone arhitektuuri osas on kavandatud Kadaka pst äärne külg suhteliselt kinnise ja läbipaistmatu betoonseinana (minimaalse akende koguse ja suurustega). Hoone ida- ja lõunakülgedele aga avanevad suurepärased vaated metsale ning terviseradadele- need küljed on projekteeritud suurte maast laeni akendega ning hoone materjalikontseptsioonis ka soojas võtmes. Seega ebameeldivama tänavapoolse keskkonna suunas jäävad kõvemad, kalgimad ja tugevamad materjalid (betoon) ning metsa ja inimeste poole soojemad (puit). Kõiki hoone korruseid teenindab invanõuetele vastav lift. Maja küte on lahendatud ruumipõhiselt reguleeritava põrandakütte näol ning olemas on ka jahutussüsteem ja loomulikult ka ventilatsioonisüsteem.
Pinnal on 2 WC-d ning lisaväärtuseks on 72.2-ruutmeetrine väliterrass.
Parkimine on lahendatud hoonealuses avatud parklas ning omanikule kuuluval kõrvalkinnistul. Jalgratastele on ette nähtud jalgrattahoidjad.
ASUKOHT
Kadaka pst 112 hoone asub kaunil metsaveerel Kadaka pst ääres Nõmmel. Maja juures asub kohe Hiiu-Harku terviserada ning läheduses on ka Nõmme Spordikeskus ja Glehni park. Piirkond sobib suurepäraselt loodust ja aktiivset eluviisi hindavatele inimestele.
Huvi korral võtke ühendust ning uurige lähemalt! Pind on valmis sissekolimiseks!
---
SUPERSOODUSTUSED PANKADELT
Ostes endale kodu Kaanoni vahendusel, pakuvad pangad meie maakleri poolt panka saadetud vihje alusel kodulaenu lepingutasudele mitmeid soodustusi. Uuri lähemalt meie maaklerilt.
Tegu on finantsteenustega. Tutvu tingimustega ja pea nõu asjatundjatega.
---
KAANON KINNISVARABÜROO
30-aastase kogemusega kinnisvarabüroo. Meie kogenud maaklerid aitavad sind kinnisvaraalastes küsimustes.
Meie hindajad koostavad hindamisi pankadele ja teistele krediidiasutustele, kohtutele, finantsaruandluseks, müügihinna määramiseks, varalisteks vaidlusteks ning konsulteerivad vara väärtusega seotud küsimustes.
Kui soovid kinnisvara müüa või hinnata siis võta palun ühendust meie meeskonnaga: www.kaanon.ee/kontakt






























