Üürile anda korraliku viimistlusega renoveeritud büroopind Kadaka teel. Maja fassaadile on võimalik paigaldada valgusreklaam, aknad kolmes suunas, kõrged laed.
BÜROO
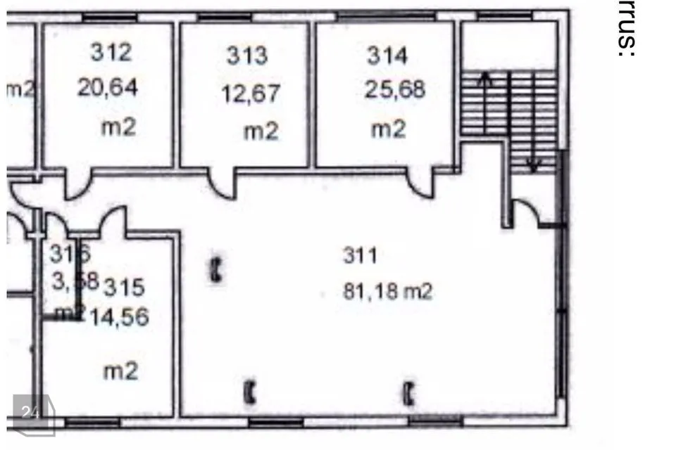
- 3. korrus
- Korralik parkettpõrand
- Ruumi suurus 158,3 m2
- Kõrvalkulud soovi korral fikseeritud aastaringselt 1,8 €/m2 + km
- Personaalne värskelt renoveeritud tualett
- Privaatne möbleeritud köögiruum
PINNA KOOSSEIS:
- Suur kõrge laega peasaal
- Kolm eraldi kabinetti
- Köögiruum
- WC
- Kaks sissepääsu, maja eest peauksest, tagauksest maja küljele parklasse
HOONE ja ASUKOHT
• Hea asukoht Kadaka teel, Kadaka Selveri juures
• Lähedal ühistranspordi peatused
• Mugav ühendus kesklinnaga ja teiste piirkondadega
• Lähedal palju kaubandus- ja toitlustusettevõtteid
PARKIMINE
• Tasuta parkimine töötajatele ja klientidele
PIIRKONNA ARENG
• YIT Eesti AS ja Astlanda Kinnisvara arendavad piirkonda ka elukeskkonda. Kokku ehitatakse vahetusse lähedusse juurde ca 1250 uut korterit.
• Ümbruskonnas saab olema palju ettevõtteid ning kogu piirkond on ärikeskkonnana väga hästi toimiv.
SÕIDUAEG
• Kristiine Keskus 4,8 km / 7 min
• Viru keskus 6,4 km / 10 min
• Tallinna Sadam 7,2 km / 12 min
• Telliskivi loomelinnak 5,1 km / 8 min
• Mustamäe keskus 2 km / 3 min
• Tallinna Lennujaam 9,3 km / 11 min
• Rocca Al Mare keskus 3,1 km / 5 min
Hinnale lisandub käibemaks.
JAGA MINU KONTAKTI KÕIGILE, KES VAJAVAD KINNISVARANÕU!
- - - - - - - - - -
Telli hindamine UUS MAA Kinnisvarabüroolt https://uusmaa.ee/teenused/hindamine/
UUS MAA KINNISVARABÜROO EKSPERTHINNANGUID AKTSEPTEERIVAD KÕIK FINANTSASUTUSED.
- - - - - - - - - -
Liitu Uus Maa uudiskirjaga ja saa homset kinnisvarainfot juba täna!
https://www.uusmaa.ee/uudiskirjagaliitumine/
- - - - - - - - - -
Kodu aitab osta Swedbank.
Pakkumise saamiseks kasuta koodi UUSMAA ja Sind teenindatakse eelisjärjekorras.
Võtame ühendust 1 tööpäeva jooksul.
Uus Maa kliendile soodsam lepingutasu. Küsi täpsemat infot maaklerilt.
Finantsteenuseid pakub Swedbank AS. Tutvu tingimustega, pea nõu.
BÜROO
- 3. korrus
- Korralik parkettpõrand
- Ruumi suurus 158,3 m2
- Kõrvalkulud soovi korral fikseeritud aastaringselt 1,8 €/m2 + km
- Personaalne värskelt renoveeritud tualett
- Privaatne möbleeritud köögiruum
PINNA KOOSSEIS:
- Suur kõrge laega peasaal
- Kolm eraldi kabinetti
- Köögiruum
- WC
- Kaks sissepääsu, maja eest peauksest, tagauksest maja küljele parklasse
HOONE ja ASUKOHT
• Hea asukoht Kadaka teel, Kadaka Selveri juures
• Lähedal ühistranspordi peatused
• Mugav ühendus kesklinnaga ja teiste piirkondadega
• Lähedal palju kaubandus- ja toitlustusettevõtteid
PARKIMINE
• Tasuta parkimine töötajatele ja klientidele
PIIRKONNA ARENG
• YIT Eesti AS ja Astlanda Kinnisvara arendavad piirkonda ka elukeskkonda. Kokku ehitatakse vahetusse lähedusse juurde ca 1250 uut korterit.
• Ümbruskonnas saab olema palju ettevõtteid ning kogu piirkond on ärikeskkonnana väga hästi toimiv.
SÕIDUAEG
• Kristiine Keskus 4,8 km / 7 min
• Viru keskus 6,4 km / 10 min
• Tallinna Sadam 7,2 km / 12 min
• Telliskivi loomelinnak 5,1 km / 8 min
• Mustamäe keskus 2 km / 3 min
• Tallinna Lennujaam 9,3 km / 11 min
• Rocca Al Mare keskus 3,1 km / 5 min
Hinnale lisandub käibemaks.
JAGA MINU KONTAKTI KÕIGILE, KES VAJAVAD KINNISVARANÕU!
- - - - - - - - - -
Telli hindamine UUS MAA Kinnisvarabüroolt https://uusmaa.ee/teenused/hindamine/
UUS MAA KINNISVARABÜROO EKSPERTHINNANGUID AKTSEPTEERIVAD KÕIK FINANTSASUTUSED.
- - - - - - - - - -
Liitu Uus Maa uudiskirjaga ja saa homset kinnisvarainfot juba täna!
https://www.uusmaa.ee/uudiskirjagaliitumine/
- - - - - - - - - -
Kodu aitab osta Swedbank.
Pakkumise saamiseks kasuta koodi UUSMAA ja Sind teenindatakse eelisjärjekorras.
Võtame ühendust 1 tööpäeva jooksul.
Uus Maa kliendile soodsam lepingutasu. Küsi täpsemat infot maaklerilt.
Finantsteenuseid pakub Swedbank AS. Tutvu tingimustega, pea nõu.
























