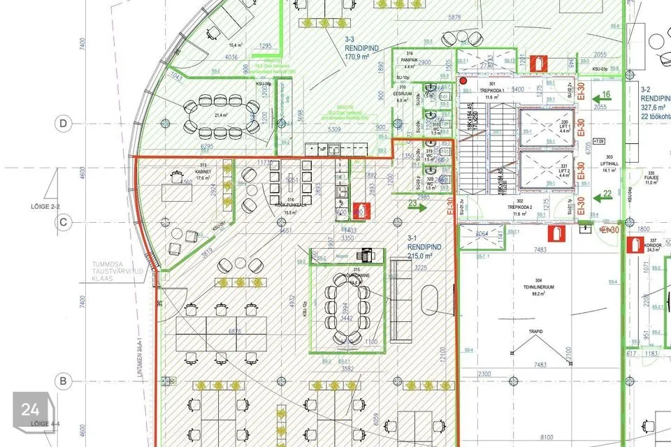
Üürile anda valgusküllane avar büroo Ringi Kvartalis, 2020. aasta valminud Ellipsi Maja 3. korrusel. Pind on hubase siseviimistlusega ja selle koosseisu kuulub avatud tööala, nõupidamisruumi, kabinet, köök/puhkeruum koos köögimööbliga ja kaks tualetti
Ellips Maja on silmapaistva arhitektuuriga esinduslik ja energiasäästlik büroohoone. Hoone energiaklass on A, tänu maaküttele on kütte- ja jahtuskulu väike, mistõttu hoone kõrvalkulud on madalad. Ruumides on integreeritud kütte- ja jahutussüsteem, mis tagab meeldiva sisekliima.
Hoone juures on parkimismaja, lisaks on parkimiskohad väliparklas (pinnaga koos saab üürida 5 parkimiskohta). Olemas on elektriautode laadimispunkt ning jalgrattaparkla koos duširuumiga. Klientidele on tasuta parkimine hoone parklas.
Kõrvalmajas on lõunarestoran, läheduses on ka teisi söögikohti (Veerenni Tervisekeskuses, Avalas Kvartalis, Baltika Kvartalis), ca 5 minutilise autosõidu kaugusel on Ülemiste Keskus ja Kristiine Keskus.
Ringi Kvartal paikneb Kesklinna servas Veerenni asumis, kuhu on mugav ligipääs erinevatest linnaosadest nii autoga, ühistranspordiga kui keskkonnasäästlike liiklusvahenditega. Bussipeatused on paariminutilise jalutuskäigu kaugusel, ka rongi- ja trammipeatused on jalutuskäigu kaugusel.
Lähikonnas on hulk ärihooneid, Veerenni Tervisekeskus, Pharma Plaza, Baltika Kvartal ning uus atraktiivne elamukvartal.
Esimeseks pooleks aastaks üürihind 9,50 EUR/m2, , edasi 10,90 eur/m2+KM. Lisanduvad kõrvalkulud ja käibemaks.
Kui otsid hea hinna ja kvaliteedi suhtega bürood, võta ühendust ja tule vaatama!
Pakkumine on vahendustasuta.
Jaga minu kontakti kõigile, kes vajavad kinnisvaranõu!
Liitu meie uudiskirjaga ja saa homset kinnisvarainfot juba täna! Vaata https://arikinnisvara.uusmaa.ee
UUS MAA ÄRIKINNISVARA - aastakümned kogemust ja klientide usaldust, läbimõeldud täisteenus ja suurim arv eksperte: vahendamine, hindamine, haldamine, nõustamine ja investeerimine.
Ellips Maja on silmapaistva arhitektuuriga esinduslik ja energiasäästlik büroohoone. Hoone energiaklass on A, tänu maaküttele on kütte- ja jahtuskulu väike, mistõttu hoone kõrvalkulud on madalad. Ruumides on integreeritud kütte- ja jahutussüsteem, mis tagab meeldiva sisekliima.
Hoone juures on parkimismaja, lisaks on parkimiskohad väliparklas (pinnaga koos saab üürida 5 parkimiskohta). Olemas on elektriautode laadimispunkt ning jalgrattaparkla koos duširuumiga. Klientidele on tasuta parkimine hoone parklas.
Kõrvalmajas on lõunarestoran, läheduses on ka teisi söögikohti (Veerenni Tervisekeskuses, Avalas Kvartalis, Baltika Kvartalis), ca 5 minutilise autosõidu kaugusel on Ülemiste Keskus ja Kristiine Keskus.
Ringi Kvartal paikneb Kesklinna servas Veerenni asumis, kuhu on mugav ligipääs erinevatest linnaosadest nii autoga, ühistranspordiga kui keskkonnasäästlike liiklusvahenditega. Bussipeatused on paariminutilise jalutuskäigu kaugusel, ka rongi- ja trammipeatused on jalutuskäigu kaugusel.
Lähikonnas on hulk ärihooneid, Veerenni Tervisekeskus, Pharma Plaza, Baltika Kvartal ning uus atraktiivne elamukvartal.
Esimeseks pooleks aastaks üürihind 9,50 EUR/m2, , edasi 10,90 eur/m2+KM. Lisanduvad kõrvalkulud ja käibemaks.
Kui otsid hea hinna ja kvaliteedi suhtega bürood, võta ühendust ja tule vaatama!
Pakkumine on vahendustasuta.
Jaga minu kontakti kõigile, kes vajavad kinnisvaranõu!
Liitu meie uudiskirjaga ja saa homset kinnisvarainfot juba täna! Vaata https://arikinnisvara.uusmaa.ee
UUS MAA ÄRIKINNISVARA - aastakümned kogemust ja klientide usaldust, läbimõeldud täisteenus ja suurim arv eksperte: vahendamine, hindamine, haldamine, nõustamine ja investeerimine.

















