Büroo 31 asub Pärnu maantee ääres kesklinna tuiksoonel.
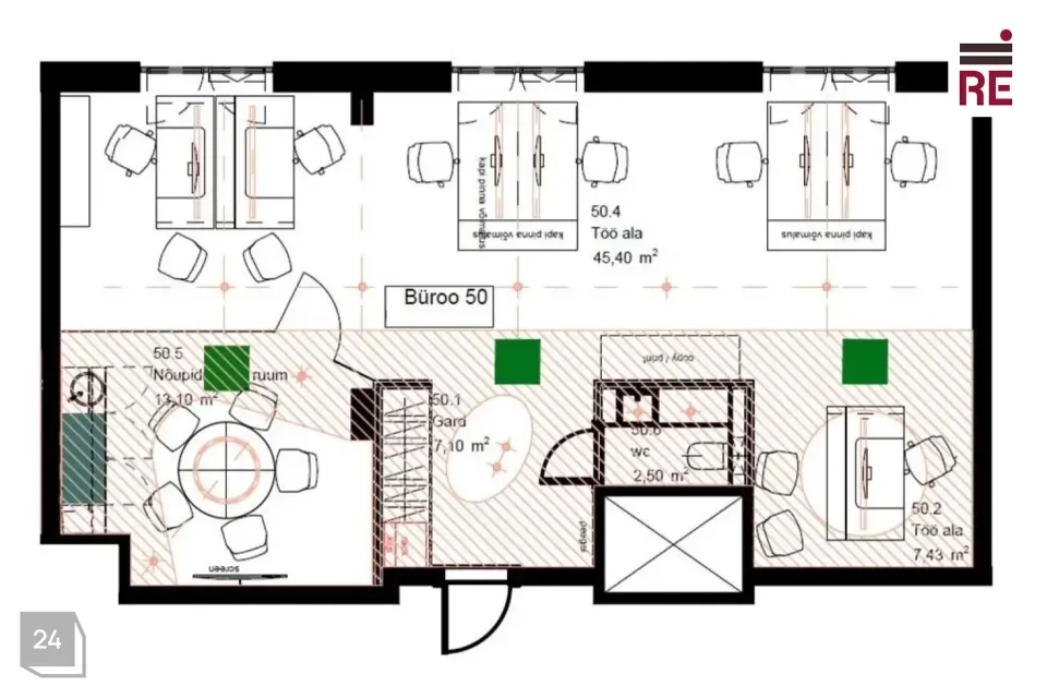
Pakutav büroo on hoone 2. korrusel. Pinnal on kööginurk ja eraldatud koosolekute ruum. Joonis on leitav kuulutusest.
Büroo 31 on modernne büroohoone Pärnu mnt ja Süda tn nurgal, aadressil Pärnu mnt 31. Hoone on osa Das Haus arendusprojektist, kuhu kuuluvad lisaks Büroo 31 hoonele veel Pärnu mnt 29, Pärnu mnt 33 ja Süda 4 paiknevad eluhooned, mis koos moodustavad terviklikult arendatud kvartali.
Hoonete välisarhitektuuri on teostanud Arhitektuuribüroo PLUSS eesotsas Indrek Allmanniga. Büroo 31 sisearhitektid on Meelis Press ning Tiiu Truus.
Büroo 31 hoone 1. korrusel asuvad kaubanduspinnad ning esinduslik restoran. 2.-6. korrustel asuvad büroopinnad.
Avaratest ja hästi läbi mõeldud planeeringuga büroodest avanevad kaunid vaated vanalinnale, merele ja Süda tänava rohelusele.
Büroo 31 asub linna tuiksoonel ja on suurepäraselt ligipääsetav nii ühistranspordiga, autoga kui ka jalgsi. Maja all paikneb 2-korruseline parkla, kuhu büroopindade üürnikel on võimalus üürida parkimiskohad.
Ruumide üürile võtmine on vahendustasuta.
Üürihinnale lisanduvad kõrvalkulud ja käibemaks.
Tutvuge Büroo 31 teiste pakkumistega siin:
https://re.ee/projektid/aripinnad/parnu-mnt-31-buroo-31/
Kui soovite ruume vaadata või rohkem infot, siis palun võtke ühendust.
RE Kinnisvara AS on tegutsenud 1995. aastast, olles üks vanimaid Eesti kinnisvaraettevõtteid.
Pakume kinnisvaraga seotud täisteenust:
- äri- ja elamispindade maaklerteenus
- kinnisvara hindamine laenu tagatiseks, sh kohtutele, finantsaruandluseks jne.
- äri- ja elukondlike arendusprojektide müügikorraldus
- kinnisvaraturu ja -projektide analüüs ja konsultatsioon
- kinnisvara seadustamine
Teeme koostööd kõigi Eesti pankade ja finantsasutustega. Meie eksperthinnangud on aktsepteeritud kõigi Eestis tegutsevate krediidiasutuste poolt.
Tutvu lähemalt re.ee.
RE Kinnisvara AS – PARIM OSA KINNISVARAST
Helista 66 88 666 või saada e-mail ***@***.ee
https://facebook.com/re.kinnisvara
https://www.instagram.com/rekinnisvara/
https://ee.linkedin.com/company/re-kinnisvara
Pakutav büroo on hoone 2. korrusel. Pinnal on kööginurk ja eraldatud koosolekute ruum. Joonis on leitav kuulutusest.
Büroo 31 on modernne büroohoone Pärnu mnt ja Süda tn nurgal, aadressil Pärnu mnt 31. Hoone on osa Das Haus arendusprojektist, kuhu kuuluvad lisaks Büroo 31 hoonele veel Pärnu mnt 29, Pärnu mnt 33 ja Süda 4 paiknevad eluhooned, mis koos moodustavad terviklikult arendatud kvartali.
Hoonete välisarhitektuuri on teostanud Arhitektuuribüroo PLUSS eesotsas Indrek Allmanniga. Büroo 31 sisearhitektid on Meelis Press ning Tiiu Truus.
Büroo 31 hoone 1. korrusel asuvad kaubanduspinnad ning esinduslik restoran. 2.-6. korrustel asuvad büroopinnad.
Avaratest ja hästi läbi mõeldud planeeringuga büroodest avanevad kaunid vaated vanalinnale, merele ja Süda tänava rohelusele.
Büroo 31 asub linna tuiksoonel ja on suurepäraselt ligipääsetav nii ühistranspordiga, autoga kui ka jalgsi. Maja all paikneb 2-korruseline parkla, kuhu büroopindade üürnikel on võimalus üürida parkimiskohad.
Ruumide üürile võtmine on vahendustasuta.
Üürihinnale lisanduvad kõrvalkulud ja käibemaks.
Tutvuge Büroo 31 teiste pakkumistega siin:
https://re.ee/projektid/aripinnad/parnu-mnt-31-buroo-31/
Kui soovite ruume vaadata või rohkem infot, siis palun võtke ühendust.
RE Kinnisvara AS on tegutsenud 1995. aastast, olles üks vanimaid Eesti kinnisvaraettevõtteid.
Pakume kinnisvaraga seotud täisteenust:
- äri- ja elamispindade maaklerteenus
- kinnisvara hindamine laenu tagatiseks, sh kohtutele, finantsaruandluseks jne.
- äri- ja elukondlike arendusprojektide müügikorraldus
- kinnisvaraturu ja -projektide analüüs ja konsultatsioon
- kinnisvara seadustamine
Teeme koostööd kõigi Eesti pankade ja finantsasutustega. Meie eksperthinnangud on aktsepteeritud kõigi Eestis tegutsevate krediidiasutuste poolt.
Tutvu lähemalt re.ee.
RE Kinnisvara AS – PARIM OSA KINNISVARAST
Helista 66 88 666 või saada e-mail ***@***.ee
https://facebook.com/re.kinnisvara
https://www.instagram.com/rekinnisvara/
https://ee.linkedin.com/company/re-kinnisvara











