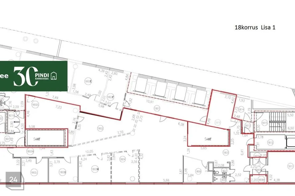
18. korrusel asuv valgusküllane ja avar büroopind pakub imelisi vaateid linnale ja merele. Ruumilahendus on läbimõeldud ning sobib suurepäraselt ettevõttele, kes hindab kvaliteetset töökeskkonda ja esinduslikkust. Büroos on avatud tööalad, seitse kabinetti ja nõupidamisruumi, avar vastuvõtuala, kööginurk, garderoob, panipaigad ning tualetid.
Pinnal on kaasaegne ventilatsiooni-, jahutus- ja valvesüsteem. Hoone ise on tunnustatud BREEAM “Very Good” rohesertifikaadiga — sellise tasemeni on Eestis hinnatud vaid 37 hoonet, mis kinnitab maja kvaliteeti ja energiatõhusust.
Tornimäe hoonet valvatakse ööpäevaringselt ning külaliste sissepääs on mugav, kuid kontrollitud. Seetõttu sobib pind ettevõttele, kelle igapäevatöös ei ole suurt kliendivoogu.
Hoone neljandal korrusel asub meeldiv lõunarestoran ning soovi korral on võimalik üürida konverentsiruume. Asukoht on suurepärane — Tallinna ärielu kese, kus kõik vajalik on käeulatuses: restoranid, spordiklubid, kaubandus, hotellid ja mitmed avalikud parklad.
Üürihinnale lisanduvad käibemaks ja kõrvalkulud. Soovi korral on võimalik üürida ka suurem või väiksem pind samas hoones.
Kui otsid bürood, kus tööpäev möödub inspireerivate linnavaadete saatel ja kus töötingimused vastavad tänapäeva kõrgeimatele ootustele, siis võta ühendust — räägin hea meelega lähemalt.
Soovid osta või üürida oma ettevõttele uut äripinda? Võta meiega ühendust ja tee päring siin: www.pindi.ee/otsid-endale-uut-aripinda/
-------------------------------------------------------------------------------------------------------------------------------------------------------
PANGA SOODUSTUSED Teeme koostööd kõikide suuremate pankadega! Meie kliendina teenindatakse Sind eelisjärjekorras ning kodulaenu lepingutasule kehtivad soodustused.
VAHENDAMINE Pindi Kinnisvara on pakkunud esindusteenust kinnisvaraturul alates 1995. aastast. Suurima Eesti kinnisvarabüroona oleme esindatud 18 linnas.
OSTUESINDUS Otsid endale kinnisvara? Muudame Sinu otsinguprotsessi sujuvaks ning meeldivaks kogemuseks. Meil on suur kliendibaas ja südikad maaklerid.
HINDAMINE Meie 30 kutselise hindaja eksperthinnanguid aktsepteerivad kõik finantsasutused! Hindame nii elukondlikku kui ärikinnisvara.
HALDAMINE Pakume kinnisvara haldamisel täislahendust: raamatupidamist, tehnosüsteemide hooldust, heakorratöid kinnistul ja hoones, ehituse- ja renoveerimistööde korraldamist, energia-, vee ja kommunikatsiooniteenuste vahendamist ja eripuhastusteenuseid.
JURIIDILINE NÕUSTAMINE Pindi Kinnisvara tütarettevõtte Realia Õigusbüroo spetsialistid on Sulle abiks kõigis kinnisvara puudutavates juriidilistes küsimustes.
Täpsemalt loe ja võta ühendust: https://www.pindi.ee/ või konsulteeri oma maakleriga.
Pinnal on kaasaegne ventilatsiooni-, jahutus- ja valvesüsteem. Hoone ise on tunnustatud BREEAM “Very Good” rohesertifikaadiga — sellise tasemeni on Eestis hinnatud vaid 37 hoonet, mis kinnitab maja kvaliteeti ja energiatõhusust.
Tornimäe hoonet valvatakse ööpäevaringselt ning külaliste sissepääs on mugav, kuid kontrollitud. Seetõttu sobib pind ettevõttele, kelle igapäevatöös ei ole suurt kliendivoogu.
Hoone neljandal korrusel asub meeldiv lõunarestoran ning soovi korral on võimalik üürida konverentsiruume. Asukoht on suurepärane — Tallinna ärielu kese, kus kõik vajalik on käeulatuses: restoranid, spordiklubid, kaubandus, hotellid ja mitmed avalikud parklad.
Üürihinnale lisanduvad käibemaks ja kõrvalkulud. Soovi korral on võimalik üürida ka suurem või väiksem pind samas hoones.
Kui otsid bürood, kus tööpäev möödub inspireerivate linnavaadete saatel ja kus töötingimused vastavad tänapäeva kõrgeimatele ootustele, siis võta ühendust — räägin hea meelega lähemalt.
Soovid osta või üürida oma ettevõttele uut äripinda? Võta meiega ühendust ja tee päring siin: www.pindi.ee/otsid-endale-uut-aripinda/
-------------------------------------------------------------------------------------------------------------------------------------------------------
PANGA SOODUSTUSED Teeme koostööd kõikide suuremate pankadega! Meie kliendina teenindatakse Sind eelisjärjekorras ning kodulaenu lepingutasule kehtivad soodustused.
VAHENDAMINE Pindi Kinnisvara on pakkunud esindusteenust kinnisvaraturul alates 1995. aastast. Suurima Eesti kinnisvarabüroona oleme esindatud 18 linnas.
OSTUESINDUS Otsid endale kinnisvara? Muudame Sinu otsinguprotsessi sujuvaks ning meeldivaks kogemuseks. Meil on suur kliendibaas ja südikad maaklerid.
HINDAMINE Meie 30 kutselise hindaja eksperthinnanguid aktsepteerivad kõik finantsasutused! Hindame nii elukondlikku kui ärikinnisvara.
HALDAMINE Pakume kinnisvara haldamisel täislahendust: raamatupidamist, tehnosüsteemide hooldust, heakorratöid kinnistul ja hoones, ehituse- ja renoveerimistööde korraldamist, energia-, vee ja kommunikatsiooniteenuste vahendamist ja eripuhastusteenuseid.
JURIIDILINE NÕUSTAMINE Pindi Kinnisvara tütarettevõtte Realia Õigusbüroo spetsialistid on Sulle abiks kõigis kinnisvara puudutavates juriidilistes küsimustes.
Täpsemalt loe ja võta ühendust: https://www.pindi.ee/ või konsulteeri oma maakleriga.


















