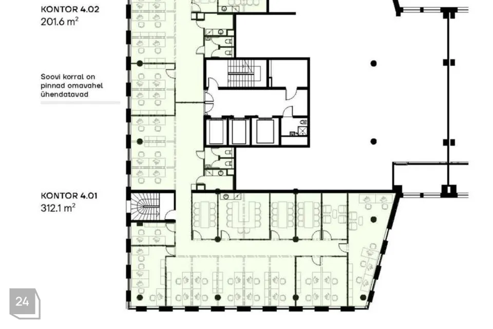
Büroopind asub Masingu maja B-tornis. Büroopinnale on planeeritud erinevates suurustes kabinette ja avatud tööalasid. Lisaks on pinnal olemas mitu nõupidamisruumi, kaks kööginurka koos vajaliku tehnikaga ning tualettruumid. Eksklusiivsed ja inspireerivad vaated avanevad Ülemiste City linnakule, Ülemiste järvele ja Rail Baltica terminalile. Tegemist on ühe võimaliku näidislahendusega. Ruumiprogrammi ja pinna suurust on võimalik muuta vastavalt soovidele.
Lõplik üürihind sõltub üürniku siselahenduse soovidest.
Üürihinnale lisanduvad kõrvalkulud ja käibemaks.
Kujunda töökeskkond, mis kasvab koos sinu ambitsioonidega.
Võta meiega ühendust ning kombineeri korruseid ja kontoripindu vastavalt oma vajadustele. Hetkel on veel võimalik teha planeeringus muudatusi , et luua just sinu ettevõtte jaoks ideaalne töökeskkond.
Naturaalne elegants kohtub modernse funktsionaalsusega
Masingu maja interjöör on loodud inspireerima, toetama produktiivsust ja heaolu. Naturaalsed ning jätkusuutlikud materjalid toovad ruumidesse soojust ja eksklusiivsust.
Tammespoonist paneelid, hingavad materjalid ja hoolikalt valitud taimestik toovad looduse hoonesse sisse.
Rafineeritud detailid: Harjatud messingust detailid ning looduslikust kivist inspireeritud põrandad annavad interjöörile kaasaegse ja stiilse aktsendi.
Paindlikud lahendused võimaldavad luua kontori, mis on sama unikaalne kui sinu ettevõte. Disain, mis teenib eesmärki ning detailid, mis peegeldavad hoolikust ja inspiratsiooni.
Võta ühendust juba täna ning tutvustame pakkumist lähemalt!
Suurepärane asukoht Tallinna parimas ärikvartalis
Ülemiste City on Tallinna parima ligipääsetavusega ärilinnak. Masingu maja asub lennujaama lähedal ja tulevase Rail Baltica terminali kõrval, oluliste maanteesõlmede vahetus läheduses. See tagab suurepärase ühenduse nii kohalike kui rahvusvaheliste sihtkohtadega.
35 ühistranspordi ühendust – linnakusse saad nii bussiga, rongiga kui ka õige pea juba taas trammiga.
Bikeepi jalgrattaparklad ja Bolti jaamad võimaldavad mugavalt ja turvaliselt parkida. Duši- ja riietusruumid hoones teevad jalgrattaga tööle tulemise eriti mugavaks.
VIKTOR MASINGU MAJA
A-energiaklassiga, üle 20 000+ m² suurune Masingu maja pakub rohkemat kui lihtsalt büroopindu – see on unikaalne arengut soodustav paik. Vastates kõrgeimatele keskkonnastandarditele, ühendab hoone funktsionaalsuse ja paindlikkuse, pakkudes ruume vastavalt kliendi soovile alates 180 m² kuni terve tornini.
Kolides Ülemiste City südames asuvasse Masingu majja, avad ukse põnevateks koostöödeks ja innovatsiooniks, mida jõustab Ülemiste City – Eesti kolmas majanduslinn Tallinna ja Tartu järel.
Lõplik üürihind sõltub üürniku siselahenduse soovidest.
Üürihinnale lisanduvad kõrvalkulud ja käibemaks.
Kujunda töökeskkond, mis kasvab koos sinu ambitsioonidega.
Võta meiega ühendust ning kombineeri korruseid ja kontoripindu vastavalt oma vajadustele. Hetkel on veel võimalik teha planeeringus muudatusi , et luua just sinu ettevõtte jaoks ideaalne töökeskkond.
Naturaalne elegants kohtub modernse funktsionaalsusega
Masingu maja interjöör on loodud inspireerima, toetama produktiivsust ja heaolu. Naturaalsed ning jätkusuutlikud materjalid toovad ruumidesse soojust ja eksklusiivsust.
Tammespoonist paneelid, hingavad materjalid ja hoolikalt valitud taimestik toovad looduse hoonesse sisse.
Rafineeritud detailid: Harjatud messingust detailid ning looduslikust kivist inspireeritud põrandad annavad interjöörile kaasaegse ja stiilse aktsendi.
Paindlikud lahendused võimaldavad luua kontori, mis on sama unikaalne kui sinu ettevõte. Disain, mis teenib eesmärki ning detailid, mis peegeldavad hoolikust ja inspiratsiooni.
Võta ühendust juba täna ning tutvustame pakkumist lähemalt!
Suurepärane asukoht Tallinna parimas ärikvartalis
Ülemiste City on Tallinna parima ligipääsetavusega ärilinnak. Masingu maja asub lennujaama lähedal ja tulevase Rail Baltica terminali kõrval, oluliste maanteesõlmede vahetus läheduses. See tagab suurepärase ühenduse nii kohalike kui rahvusvaheliste sihtkohtadega.
35 ühistranspordi ühendust – linnakusse saad nii bussiga, rongiga kui ka õige pea juba taas trammiga.
Bikeepi jalgrattaparklad ja Bolti jaamad võimaldavad mugavalt ja turvaliselt parkida. Duši- ja riietusruumid hoones teevad jalgrattaga tööle tulemise eriti mugavaks.
VIKTOR MASINGU MAJA
A-energiaklassiga, üle 20 000+ m² suurune Masingu maja pakub rohkemat kui lihtsalt büroopindu – see on unikaalne arengut soodustav paik. Vastates kõrgeimatele keskkonnastandarditele, ühendab hoone funktsionaalsuse ja paindlikkuse, pakkudes ruume vastavalt kliendi soovile alates 180 m² kuni terve tornini.
Kolides Ülemiste City südames asuvasse Masingu majja, avad ukse põnevateks koostöödeks ja innovatsiooniks, mida jõustab Ülemiste City – Eesti kolmas majanduslinn Tallinna ja Tartu järel.


















