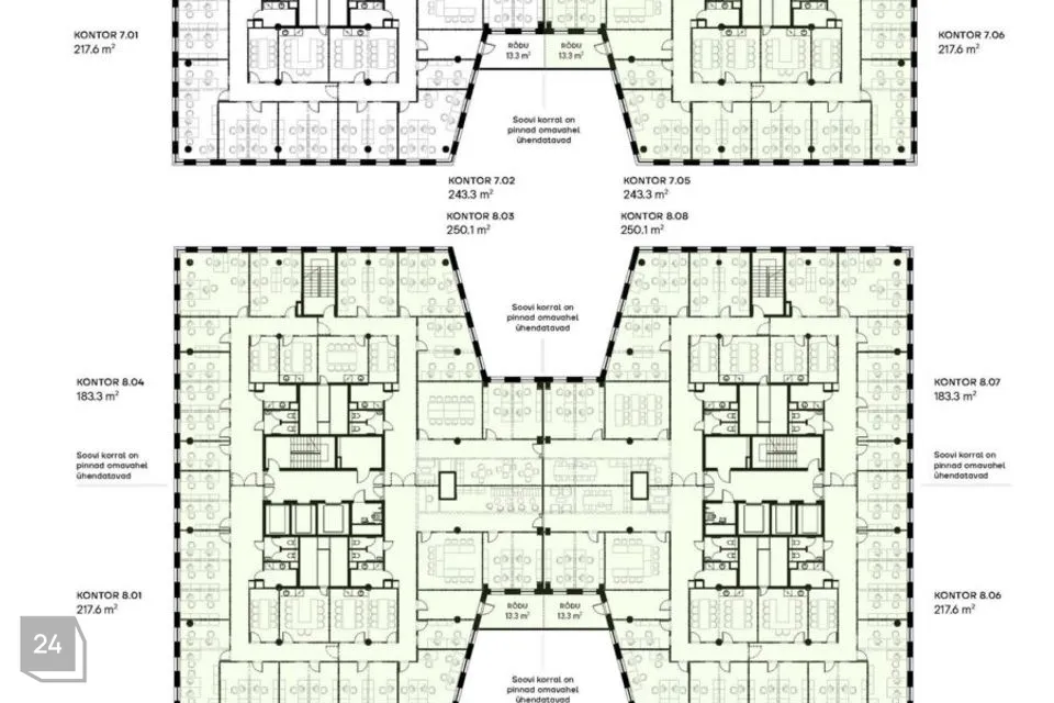
Üürile anda 1/2 7.korrusest ja terve 8. korrus, kokku suurusega 2 682,90 m², Masingu majas Ülemiste City südames. See esinduslik ja paindlik kontoripind on ideaalne suurematele ettevõtetele, kes vajavad avarat tööruumi, kus on võimalik luua erinevaid tööalasid – avatud kontori lahendus, koosolekuruumid, privaatse tööalade piirkonnad ning palju muud. Pind pakub suurepäraseid vaateid, rohkelt loomulikku valgust ja täiendavaid võimalusi ruumide kohandamiseks vastavalt üürniku vajadustele. See pind on ideaalne valik ambitsioonikale ettevõtele, kes otsib esinduslikku ja paindlikku töökeskkonda, kus igapäevane töö saab toimuda innovaatilises, energiatõhusas ja dünaamilises keskkonnas.
Lõplik üürihind sõltub üürniku siselahenduse soovidest.
Üürihinnale lisanduvad kõrvalkulud ja käibemaks.
Kujunda töökeskkond, mis kasvab koos sinu ambitsioonidega.
Võta meiega ühendust ning kombineeri korruseid ja kontoripindu vastavalt oma vajadustele. Hetkel on veel võimalik teha planeeringus muudatusi , et luua just sinu ettevõtte jaoks ideaalne töökeskkond.
Naturaalne elegants kohtub modernse funktsionaalsusega
Masingu maja interjöör on loodud inspireerima, toetama produktiivsust ja heaolu. Naturaalsed ning jätkusuutlikud materjalid toovad ruumidesse soojust ja eksklusiivsust.
Tammespoonist paneelid, hingavad materjalid ja hoolikalt valitud taimestik toovad looduse hoonesse sisse.
Rafineeritud detailid: Harjatud messingust detailid ning looduslikust kivist inspireeritud põrandad annavad interjöörile kaasaegse ja stiilse aktsendi.
Paindlikud lahendused võimaldavad luua kontori, mis on sama unikaalne kui sinu ettevõte. Disain, mis teenib eesmärki ning detailid, mis peegeldavad hoolikust ja inspiratsiooni.
Võta ühendust juba täna ning tutvustame pakkumist lähemalt!
Suurepärane asukoht Tallinna parimas ärikvartalis
Ülemiste City on Tallinna parima ligipääsetavusega ärilinnak. Masingu maja asub lennujaama lähedal ja tulevase Rail Baltica terminali kõrval, oluliste maanteesõlmede vahetus läheduses. See tagab suurepärase ühenduse nii kohalike kui rahvusvaheliste sihtkohtadega.
35 ühistranspordi ühendust – linnakusse saad nii bussiga, rongiga kui ka õige pea juba taas trammiga.
Bikeepi jalgrattaparklad ja Bolti jaamad võimaldavad mugavalt ja turvaliselt parkida. Duši- ja riietusruumid hoones teevad jalgrattaga tööle tulemise eriti mugavaks.
VIKTOR MASINGU MAJA
A-energiaklassiga, üle 20 000+ m² suurune Masingu maja pakub rohkemat kui lihtsalt büroopindu – see on unikaalne arengut soodustav paik. Vastates kõrgeimatele keskkonnastandarditele, ühendab hoone funktsionaalsuse ja paindlikkuse, pakkudes ruume vastavalt kliendi soovile alates 180 m² kuni terve tornini.
Kolides Ülemiste City südames asuvasse Masingu majja, avad ukse põnevateks koostöödeks ja innovatsiooniks, mida jõustab Ülemiste City – Eesti kolmas majanduslinn Tallinna ja Tartu järel.
***
ASUKOHT
Ülemiste City asub transpordivõimaluste tuiksoonel, mille ühel küljel on Tallinna lennujaam, teisel aga tulevane Rail Baltica terminal ja uus bussijaam. Sadam jääb linnakust vaid kümne minuti autosõidu kaugusele ning Peterburi teele ja Tartu maanteele saad keerata otse kvartalist väljudes.
Siia saab igast linnajaost mugavalt bussiga ja ka rongiga, säästes nii linnaruumi kui loodust. Hetkel on trammiliin peatatud, kuid avatakse taas 2026. aastal.
Uuri lähemalt https://www.ulemistecity.ee/kuidas-tulla/
LINNAKU TOITLUSTUS JA TEENUSED
Ülemiste Citys on enam kui 10 erinevat lõunarestorani, mis pakuvad mitmekesiseid maitseelamusi kogu maailmast. Lisaks kaks R-Kioski ja suuremateks ostudeks Selver ABC, kus on rikkalik sooja toidu ja salatilett. Linnakus on ka spordiklubi, suurel hulgal rattaparklaid ja laialt ilu- ja vaba aja teenuseid ning kaunid pargid, kus lõõgastuda või lõunat süüa. Lühikese jalutuskäigu kaugusele jääv Ülemiste keskus pakub veel lisaks laia valikut restorane, poode ja teenuseid.
MUGAV PARKIMINE
Ülemiste City autoparklad mahutavad kokku üle 3300 sõiduauto ja parkimiskoht ei jää kontorihoonest kaugemale kui 150 m. Üüripinna parkimine on lahendatud parkimismajades ja soovitud tasuliste parkimiskohtade arv lisatakse üürihinnale. Lisaks parkimismajadele, kus külalistel on 1h tasuta parkimist, on linnakus ka suured väliparklad, kus külalistele on parkimine parkimiskellaga 2h tasuta.
TUGITEENUSED
Uue asukohaga kaasneb tavaliselt palju sekeldusi. Kes koristab kontorit? Kes aitab sisekujundusega? Kes lööb naela seina või kus saab käia poes, juuksuris või spordiklubis? Ülemiste linnakus oleme need probleemid lahendanud sinu eest.
Ülemiste City hoonetes on olemas konverentsi- ja koosolekuruumid koos toitlustusega; vastuvõtulaua assistendid, kes tervitavad külalisi ja aitavad murede korral; koristus- ja hooldusteenus koos meistrimehega; LED-ekraanid selleks, et saaksid oma ettevõtte teha nähtavaks ja kaasata uusi kliente; riietus- ja duširuumid sportliku eluviisi toetamiseks; hulgaliselt turvalisi rattaparklaid, samuti sisekujundaja, et kontori ruumilahendus toetaks tööstiili. Kõike ikka selleks, et saaksid tegeleda oma tähtsate tööülesannetega ja kontor oleks täpselt selline, nagu sinu ettevõttel vaja.
VISIOONIGA LINN
Ülemiste City on rahvusvaheline ja mitmekesine keskkond, mille keskmes on talentidele loodud teadmispõhise töö-, arengu- ja elukeskkonna arendamine, mis toetab iga kogukonna liikme konkurentsivõimet maailmas, meelitab lahkunud talendid tagasi koju ning inspireerib uute ärimudelite teket. Ülemiste City on ühtselt hingav tervik, mis pakub inspireerivat keskkonda kohalikele ja välistalentidele ning loob samas viljaka kasvulava tulevikutegijatele ja innovaatoritele.
Ülemiste City näol on ajaloolisele tööstuspiirkonnale antud uus elu ja hingamine. Siin paiknevad kõrvuti 19. sajandi tööstusarhitektuur ja modernne linnaruum, mis on kasvatanud Ülemiste City Baltimaade suurimaks ja kõige kiiremini arenevaks ärilinnakuks.
ARENDAJA
Mainor Ülemiste, Eesti suurim ärikinnisvara arendaja, on pika ajalooga Mainor Grupi tütarettevõte. Mainor Ülemiste põhitegevus on Baltimaade suurima ärilinnaku, rahvusvahelise haardega atraktiivse ja teadmispõhise Ülemiste City arendamine.
KOGUKOND
Aastas toimub Ülemiste Citys üle 100 erineva sündmuse – konverentsid, kontserdid, spordiüritused, näitused, peod, häkid, seminarid, live-ülekanded, töötoad ning palju muud põnevat. Populaarseimad iga-aastased sündmuse on Business Triathlon, Kogukonnapäev, Business Breakfast, Tervisekuu ja Tänavatoidupäevad.
Ülemiste City kogukonnafond võimaldab üheskoos kiiremini eesmärke täita ja siinsetel talentidel linnaku arengus kaasa rääkida ja ise osaleda. Meie kogukonna liikmete jaoks on loodud turundus- ja HR võrgustikud, mis käivad koos pea igakuiselt.
Igal talendil peab olema võimalus kasvada ja avastada oma tõelist potentsiaali. Meie ülesanne on seda võimaldada. Kui olla osa kogukonnast, lüüa kaasa uute tehnoloogiate testimisel või rohelisema tuleviku loomisel, siis see kogukond on sulle!
Vaata lisaks ulemistecity.ee
Lõplik üürihind sõltub üürniku siselahenduse soovidest.
Üürihinnale lisanduvad kõrvalkulud ja käibemaks.
Kujunda töökeskkond, mis kasvab koos sinu ambitsioonidega.
Võta meiega ühendust ning kombineeri korruseid ja kontoripindu vastavalt oma vajadustele. Hetkel on veel võimalik teha planeeringus muudatusi , et luua just sinu ettevõtte jaoks ideaalne töökeskkond.
Naturaalne elegants kohtub modernse funktsionaalsusega
Masingu maja interjöör on loodud inspireerima, toetama produktiivsust ja heaolu. Naturaalsed ning jätkusuutlikud materjalid toovad ruumidesse soojust ja eksklusiivsust.
Tammespoonist paneelid, hingavad materjalid ja hoolikalt valitud taimestik toovad looduse hoonesse sisse.
Rafineeritud detailid: Harjatud messingust detailid ning looduslikust kivist inspireeritud põrandad annavad interjöörile kaasaegse ja stiilse aktsendi.
Paindlikud lahendused võimaldavad luua kontori, mis on sama unikaalne kui sinu ettevõte. Disain, mis teenib eesmärki ning detailid, mis peegeldavad hoolikust ja inspiratsiooni.
Võta ühendust juba täna ning tutvustame pakkumist lähemalt!
Suurepärane asukoht Tallinna parimas ärikvartalis
Ülemiste City on Tallinna parima ligipääsetavusega ärilinnak. Masingu maja asub lennujaama lähedal ja tulevase Rail Baltica terminali kõrval, oluliste maanteesõlmede vahetus läheduses. See tagab suurepärase ühenduse nii kohalike kui rahvusvaheliste sihtkohtadega.
35 ühistranspordi ühendust – linnakusse saad nii bussiga, rongiga kui ka õige pea juba taas trammiga.
Bikeepi jalgrattaparklad ja Bolti jaamad võimaldavad mugavalt ja turvaliselt parkida. Duši- ja riietusruumid hoones teevad jalgrattaga tööle tulemise eriti mugavaks.
VIKTOR MASINGU MAJA
A-energiaklassiga, üle 20 000+ m² suurune Masingu maja pakub rohkemat kui lihtsalt büroopindu – see on unikaalne arengut soodustav paik. Vastates kõrgeimatele keskkonnastandarditele, ühendab hoone funktsionaalsuse ja paindlikkuse, pakkudes ruume vastavalt kliendi soovile alates 180 m² kuni terve tornini.
Kolides Ülemiste City südames asuvasse Masingu majja, avad ukse põnevateks koostöödeks ja innovatsiooniks, mida jõustab Ülemiste City – Eesti kolmas majanduslinn Tallinna ja Tartu järel.
***
ASUKOHT
Ülemiste City asub transpordivõimaluste tuiksoonel, mille ühel küljel on Tallinna lennujaam, teisel aga tulevane Rail Baltica terminal ja uus bussijaam. Sadam jääb linnakust vaid kümne minuti autosõidu kaugusele ning Peterburi teele ja Tartu maanteele saad keerata otse kvartalist väljudes.
Siia saab igast linnajaost mugavalt bussiga ja ka rongiga, säästes nii linnaruumi kui loodust. Hetkel on trammiliin peatatud, kuid avatakse taas 2026. aastal.
Uuri lähemalt https://www.ulemistecity.ee/kuidas-tulla/
LINNAKU TOITLUSTUS JA TEENUSED
Ülemiste Citys on enam kui 10 erinevat lõunarestorani, mis pakuvad mitmekesiseid maitseelamusi kogu maailmast. Lisaks kaks R-Kioski ja suuremateks ostudeks Selver ABC, kus on rikkalik sooja toidu ja salatilett. Linnakus on ka spordiklubi, suurel hulgal rattaparklaid ja laialt ilu- ja vaba aja teenuseid ning kaunid pargid, kus lõõgastuda või lõunat süüa. Lühikese jalutuskäigu kaugusele jääv Ülemiste keskus pakub veel lisaks laia valikut restorane, poode ja teenuseid.
MUGAV PARKIMINE
Ülemiste City autoparklad mahutavad kokku üle 3300 sõiduauto ja parkimiskoht ei jää kontorihoonest kaugemale kui 150 m. Üüripinna parkimine on lahendatud parkimismajades ja soovitud tasuliste parkimiskohtade arv lisatakse üürihinnale. Lisaks parkimismajadele, kus külalistel on 1h tasuta parkimist, on linnakus ka suured väliparklad, kus külalistele on parkimine parkimiskellaga 2h tasuta.
TUGITEENUSED
Uue asukohaga kaasneb tavaliselt palju sekeldusi. Kes koristab kontorit? Kes aitab sisekujundusega? Kes lööb naela seina või kus saab käia poes, juuksuris või spordiklubis? Ülemiste linnakus oleme need probleemid lahendanud sinu eest.
Ülemiste City hoonetes on olemas konverentsi- ja koosolekuruumid koos toitlustusega; vastuvõtulaua assistendid, kes tervitavad külalisi ja aitavad murede korral; koristus- ja hooldusteenus koos meistrimehega; LED-ekraanid selleks, et saaksid oma ettevõtte teha nähtavaks ja kaasata uusi kliente; riietus- ja duširuumid sportliku eluviisi toetamiseks; hulgaliselt turvalisi rattaparklaid, samuti sisekujundaja, et kontori ruumilahendus toetaks tööstiili. Kõike ikka selleks, et saaksid tegeleda oma tähtsate tööülesannetega ja kontor oleks täpselt selline, nagu sinu ettevõttel vaja.
VISIOONIGA LINN
Ülemiste City on rahvusvaheline ja mitmekesine keskkond, mille keskmes on talentidele loodud teadmispõhise töö-, arengu- ja elukeskkonna arendamine, mis toetab iga kogukonna liikme konkurentsivõimet maailmas, meelitab lahkunud talendid tagasi koju ning inspireerib uute ärimudelite teket. Ülemiste City on ühtselt hingav tervik, mis pakub inspireerivat keskkonda kohalikele ja välistalentidele ning loob samas viljaka kasvulava tulevikutegijatele ja innovaatoritele.
Ülemiste City näol on ajaloolisele tööstuspiirkonnale antud uus elu ja hingamine. Siin paiknevad kõrvuti 19. sajandi tööstusarhitektuur ja modernne linnaruum, mis on kasvatanud Ülemiste City Baltimaade suurimaks ja kõige kiiremini arenevaks ärilinnakuks.
ARENDAJA
Mainor Ülemiste, Eesti suurim ärikinnisvara arendaja, on pika ajalooga Mainor Grupi tütarettevõte. Mainor Ülemiste põhitegevus on Baltimaade suurima ärilinnaku, rahvusvahelise haardega atraktiivse ja teadmispõhise Ülemiste City arendamine.
KOGUKOND
Aastas toimub Ülemiste Citys üle 100 erineva sündmuse – konverentsid, kontserdid, spordiüritused, näitused, peod, häkid, seminarid, live-ülekanded, töötoad ning palju muud põnevat. Populaarseimad iga-aastased sündmuse on Business Triathlon, Kogukonnapäev, Business Breakfast, Tervisekuu ja Tänavatoidupäevad.
Ülemiste City kogukonnafond võimaldab üheskoos kiiremini eesmärke täita ja siinsetel talentidel linnaku arengus kaasa rääkida ja ise osaleda. Meie kogukonna liikmete jaoks on loodud turundus- ja HR võrgustikud, mis käivad koos pea igakuiselt.
Igal talendil peab olema võimalus kasvada ja avastada oma tõelist potentsiaali. Meie ülesanne on seda võimaldada. Kui olla osa kogukonnast, lüüa kaasa uute tehnoloogiate testimisel või rohelisema tuleviku loomisel, siis see kogukond on sulle!
Vaata lisaks ulemistecity.ee
























