Äripind ja võimalused
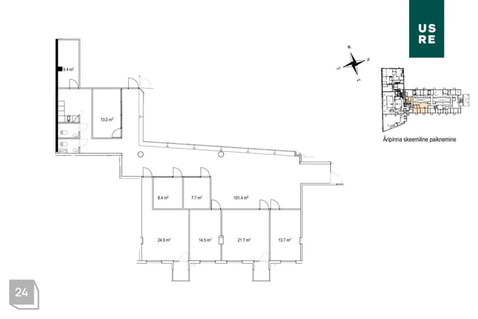
Üürile anda kaasaegne ja hästi planeeritud büroopind endise Foorumi keskuse (tulevane Artius) 3. korrusel.
• Büroopinnal on erinevas suuruses nõupidamisruumid ja kabinetid, köök, 2 WC-d ja rõdud
• Ruumid on heas seisukorras – enne uue üürniku sissekolimist tehakse värskendusremont
• Võimalus laieneda samal või teistel korrustel, kui ettevõtte vajadused kasvavad
Üürihinnale lisanduvad kõrvalkulud (aasta keskmiselt olnud 3,96€/m² + KM) ja käibemaks.
________________________________________
Hoone
ARTIUS on A-klassi ärihoone, mis saab 2026. aasta kevadeks uue ja kaasaegse ilme.
• Kokku 8 korrust, esimesel ja teisel korrusel kauplused ja äriteenused
• Ülemistel korrustel büroopinnad ja korterid
• Kokku ligikaudu 9600 m² üüritavat pinda, ühe bürookorruse pindala ca 1100 m²
• Kaasaegsed tehnosüsteemid: keskküte, lokaalne jahutus ja sundventilatsioon
• Suur sisehoov, kus on võimalik korraldada üritusi ja koosviibimisi
________________________________________
Parkimine
Parkimine on lahendatud suures maa-aluses parklas, kus jätkub kohti nii töötajatele kui külalistele.
Parklat opereerib EuroPark, tsoon EP422.
________________________________________
Kaugused logistilistest sõlmpunktidest
Artius paikneb südalinna tihedaima jalakäijate liiklusega ristmikul, Viru Keskuse, Kaubamaja, Rotermanni kvartali ja Postimaja vahetus läheduses.
• Trammide ja busside peatused – otse hoone ees
• Viru Keskuse bussiterminal – üle tee
• Tallinna sadam – 5 minutit autoga
• Lennujaam – 10 minutit autoga
• Ümbruses rohkelt poode, restorane, hotelle, kinosid, baare ja spordisaale – ideaalne elav töö- ja ärikeskkond
________________________________________
Kvartalist ja naabrusest
Artius on osa Rotermanni kvartalist – kaasaegsest ja autovabast linnaruumist, mis on üks Tallinna südalinna atraktiivsemaid kohti.
Rotermanni kvartalis:
• Üle 2000 töötaja ja rohkem kui 1000 elaniku
• Ligikaudu 20 eriilmelist söögikohta, sh Michelini soovitatud restoranid
• Moe- ja disainipoed, pagarikojad ja galeriid
• Elav sündmuste kalender ja kvaliteetne avalik ruum
Rotermanni Klubi liikmelisus annab üürnikele ja töötajatele soodustusi restoranides, poodides ja teenustes.
________________________________________
Pakkumine on otse arendaja US Real Estate'lt ja vahendustasu ei lisandu.
Küsi lisainfot ja lepi kokku kohtumine, et näha seda bürood kohapeal!
________________________________________
Arendajast
US Real Estate – arendame linnaruumi ja loome ainulaadset elukeskkonda aastast 1991.
• Oleme arendanud üle 250 000 m² kinnisvara
• Meie portfellis on üle 100 000 m² üüritavat äripinda
• Meie tuntumate arendusprojektide hulka kuulub auhindadega pärjatud Rotermanni kvartal
Lisainfo:
www.usre.ee
www.rotermann.ee
Üürile anda kaasaegne ja hästi planeeritud büroopind endise Foorumi keskuse (tulevane Artius) 3. korrusel.
• Büroopinnal on erinevas suuruses nõupidamisruumid ja kabinetid, köök, 2 WC-d ja rõdud
• Ruumid on heas seisukorras – enne uue üürniku sissekolimist tehakse värskendusremont
• Võimalus laieneda samal või teistel korrustel, kui ettevõtte vajadused kasvavad
Üürihinnale lisanduvad kõrvalkulud (aasta keskmiselt olnud 3,96€/m² + KM) ja käibemaks.
________________________________________
Hoone
ARTIUS on A-klassi ärihoone, mis saab 2026. aasta kevadeks uue ja kaasaegse ilme.
• Kokku 8 korrust, esimesel ja teisel korrusel kauplused ja äriteenused
• Ülemistel korrustel büroopinnad ja korterid
• Kokku ligikaudu 9600 m² üüritavat pinda, ühe bürookorruse pindala ca 1100 m²
• Kaasaegsed tehnosüsteemid: keskküte, lokaalne jahutus ja sundventilatsioon
• Suur sisehoov, kus on võimalik korraldada üritusi ja koosviibimisi
________________________________________
Parkimine
Parkimine on lahendatud suures maa-aluses parklas, kus jätkub kohti nii töötajatele kui külalistele.
Parklat opereerib EuroPark, tsoon EP422.
________________________________________
Kaugused logistilistest sõlmpunktidest
Artius paikneb südalinna tihedaima jalakäijate liiklusega ristmikul, Viru Keskuse, Kaubamaja, Rotermanni kvartali ja Postimaja vahetus läheduses.
• Trammide ja busside peatused – otse hoone ees
• Viru Keskuse bussiterminal – üle tee
• Tallinna sadam – 5 minutit autoga
• Lennujaam – 10 minutit autoga
• Ümbruses rohkelt poode, restorane, hotelle, kinosid, baare ja spordisaale – ideaalne elav töö- ja ärikeskkond
________________________________________
Kvartalist ja naabrusest
Artius on osa Rotermanni kvartalist – kaasaegsest ja autovabast linnaruumist, mis on üks Tallinna südalinna atraktiivsemaid kohti.
Rotermanni kvartalis:
• Üle 2000 töötaja ja rohkem kui 1000 elaniku
• Ligikaudu 20 eriilmelist söögikohta, sh Michelini soovitatud restoranid
• Moe- ja disainipoed, pagarikojad ja galeriid
• Elav sündmuste kalender ja kvaliteetne avalik ruum
Rotermanni Klubi liikmelisus annab üürnikele ja töötajatele soodustusi restoranides, poodides ja teenustes.
________________________________________
Pakkumine on otse arendaja US Real Estate'lt ja vahendustasu ei lisandu.
Küsi lisainfot ja lepi kokku kohtumine, et näha seda bürood kohapeal!
________________________________________
Arendajast
US Real Estate – arendame linnaruumi ja loome ainulaadset elukeskkonda aastast 1991.
• Oleme arendanud üle 250 000 m² kinnisvara
• Meie portfellis on üle 100 000 m² üüritavat äripinda
• Meie tuntumate arendusprojektide hulka kuulub auhindadega pärjatud Rotermanni kvartal
Lisainfo:
www.usre.ee
www.rotermann.ee

























