SOODUSHIND KUNI 31.01.2026 LEPINGU SÕLMIMISEL! ESIMESED 2 KUUD ON ÜÜR -50%, HINNAGA 1185 € + km.
Alates kolmandast kuust on üüri hind 2370 € + km.
ASUKOHT Woldemar Mayeri maja asub Tallinnas Kristiine, Kesklinna ja Põhja-Tallinna linnaosade piiril, mis tagab hea logistilise ühenduse töötajate ja klientide liiklemiseks.
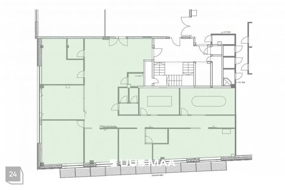
RUUMID äripind asub kolmandal korrusel, korruste vahel liikumiseks on lift ja/või trepp. Olemas erinevate suurustega ruumid koosolekuteks, kõnedeks, panipaikadeks, tehnilisteks ruumideks, wc-d ja muud mitmekesise kontorielu elavdavad võimalused. Ruumide arvu ja suuruseid on võimalik muuta vastavalt soovidele ning on saab ka üürida osade kaupa.
Ruumid värskendatakse vastavalt üürilise soovile. Ruumi plaan on lisatud piltidele.
SAMAS HOONES ON PAKKUDA ERINEVAD PINAD SUURUSTEGA KUNI 798m² KÜSI LISA.
SEISUKORD Ruumid on heas seisukaorras ja vastavalt vajadusele saab pinna planeeringut muuta. Ruumide värskendamine tehakse vastavalt üürilise soovidele.
HOONE Kaasaegse ärihoone vastuvõtus on administraator ning tagatud on juurdepääs ruumidele 24/7. Teisele ja kolmandale korrusele pääsemiseks lift. Hea sisekliima tagab ventilatsiooni- ja jahutussüsteem. Kiire interneti tagab valguskaabel. Hoonele saab paigaldada ettevõtte reklaaminfo. Hoone energiatõhususe tagavad katusele paigaldatud päikesepaneelid.
TARISTU Kõrval ühistranspordi peatused, parkla töötajatele ja klientidele. Einestusvõimalus samas hoones asuvas toitlustuskohas.
MAKSUMUS Üürihind 10 €/m² +km. Lisanduvad kõrvalkulud (keskmised kõrvalkulud 3,4 (suvel 2,6, talvel 4,1) €/m²+km, kulud erinevad olenevalt vee ja elektri tarbimisest).
Pakkumine on üürilisele vahendustasuta.
Soovid täpsemat infot, siis võta palun ühendust ja lepime kokku objekti vaatamise ning leiame sobiva lehenduse just sinule.
Argo Arusoo +372 555 85 467 ***@***.ee
Soovid äri- või erakinnisvara müüa, üürida või osta, siis võta minuga ühendust ja leiame Sinule sobiva lahenduse.
Jaga minu kontakti kõigile, kes vajavad kinnisvaranõu!
Liitu meie uudiskirjaga ja saa homset kinnisvarainfot juba täna! Vaata https://arikinnisvara.uusmaa.ee
UUS MAA ÄRIKINNISVARA - aastakümned kogemust ja klientide usaldust, läbimõeldud täisteenus ja suurim arv eksperte: vahendamine, hindamine, haldamine, nõustamine ja investeerimine.
Alates kolmandast kuust on üüri hind 2370 € + km.
ASUKOHT Woldemar Mayeri maja asub Tallinnas Kristiine, Kesklinna ja Põhja-Tallinna linnaosade piiril, mis tagab hea logistilise ühenduse töötajate ja klientide liiklemiseks.
RUUMID äripind asub kolmandal korrusel, korruste vahel liikumiseks on lift ja/või trepp. Olemas erinevate suurustega ruumid koosolekuteks, kõnedeks, panipaikadeks, tehnilisteks ruumideks, wc-d ja muud mitmekesise kontorielu elavdavad võimalused. Ruumide arvu ja suuruseid on võimalik muuta vastavalt soovidele ning on saab ka üürida osade kaupa.
Ruumid värskendatakse vastavalt üürilise soovile. Ruumi plaan on lisatud piltidele.
SAMAS HOONES ON PAKKUDA ERINEVAD PINAD SUURUSTEGA KUNI 798m² KÜSI LISA.
SEISUKORD Ruumid on heas seisukaorras ja vastavalt vajadusele saab pinna planeeringut muuta. Ruumide värskendamine tehakse vastavalt üürilise soovidele.
HOONE Kaasaegse ärihoone vastuvõtus on administraator ning tagatud on juurdepääs ruumidele 24/7. Teisele ja kolmandale korrusele pääsemiseks lift. Hea sisekliima tagab ventilatsiooni- ja jahutussüsteem. Kiire interneti tagab valguskaabel. Hoonele saab paigaldada ettevõtte reklaaminfo. Hoone energiatõhususe tagavad katusele paigaldatud päikesepaneelid.
TARISTU Kõrval ühistranspordi peatused, parkla töötajatele ja klientidele. Einestusvõimalus samas hoones asuvas toitlustuskohas.
MAKSUMUS Üürihind 10 €/m² +km. Lisanduvad kõrvalkulud (keskmised kõrvalkulud 3,4 (suvel 2,6, talvel 4,1) €/m²+km, kulud erinevad olenevalt vee ja elektri tarbimisest).
Pakkumine on üürilisele vahendustasuta.
Soovid täpsemat infot, siis võta palun ühendust ja lepime kokku objekti vaatamise ning leiame sobiva lehenduse just sinule.
Argo Arusoo +372 555 85 467 ***@***.ee
Soovid äri- või erakinnisvara müüa, üürida või osta, siis võta minuga ühendust ja leiame Sinule sobiva lahenduse.
Jaga minu kontakti kõigile, kes vajavad kinnisvaranõu!
Liitu meie uudiskirjaga ja saa homset kinnisvarainfot juba täna! Vaata https://arikinnisvara.uusmaa.ee
UUS MAA ÄRIKINNISVARA - aastakümned kogemust ja klientide usaldust, läbimõeldud täisteenus ja suurim arv eksperte: vahendamine, hindamine, haldamine, nõustamine ja investeerimine.































