Üürile anda büroopind populaarses Telliskivi TLN-s 2020. aasta valminud I2-Hoones.
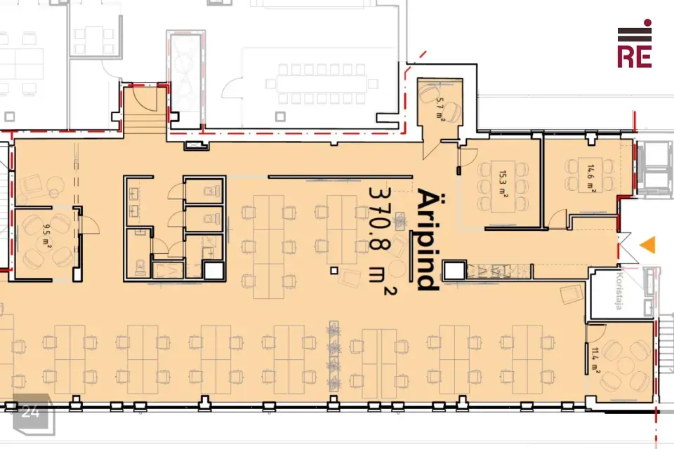
Üürile pakutakse teisel korrusel paiknev 370,8 m² suurune büroopind, kus üürniku kasutada on avatud tööala (võimalik paigutada kuni 44 töökohta), neli nõupidamisteruumi ja üks kõneruum.
Lisaks on büroos väike köögiala ja olmeruumid. Ruumide plaan on leitav pakkumise galeriist. Pind antakse üle möbleerimata.
- Ruumid on maitsekalt viimistletud.
- Büroo on koheselt saadaval.
- Põrandakatteks on nii vaip kui ka betoon.
- Ruumidest avaneb vaade Vanalinnale ja Balti jaama turu alale.
- Maja on varustatud kõikide kaasaegsete tehnosüsteemidega sh ventilatsioon, jahutus, kiire internetiühendus, hoones on liftid.
- Võimalik paigaldada valgusreklaam hoone fassaadile, mis paistab nii Balti Jaama turu poolt tulijale, Balti jaama rongiperroonile kui ka Loomelinnaku poolt liginejale.
Miks Telliskivi TLN?
- Lühikese jalutuskäigu kaugusel nii rong, buss kui tramm.
- Samas on piisavalt parkimiskohti ka autoga tulijale.
- Siia on loodud sisekvartali park koos haljastuse, laude, pinkide ja puhkealadega, kus teha kõnnikoosolekuid ja väljas töötada.
- Arvukalt söögikohti: alates kiirtoidust ja lõunapakkumistest, pagarikoda, pruulikojad, lõpetades fine-dininguga.
- Ärilinnak koosneb mitmetest renoveeritud ja kaasajastatud ärihoonetest ning järgnevad aastad toovad veel kümneid tuhandeid ruutmeetreid uusi äriruume, mis annab juba linnakus tegutsevatele ettevõtetele laienemispotentsiaali.
- Palju võimalusi veeta vaba aega olla aktiivne ka töövälisel ajal. Lisaks kaasatakse ettevõtteid ka aktiivselt kogukonnaüritustele.
Telliskivi 60 aadressil asuvad mõned aastad tagasi renoveeritud ON-hoone ja 2018-****. aastatel valminud I-hoone, mida arendatakse etapiviisiliselt. Ülejäänud kvartal on jagatud osadeks, millest suuremad on M-hoone, K-hoone ja G-hoone. Nendel pindadel pakutakse nii büroo-, kaubandus-, teenindus- kui ka toitlustuspindasid.
Naabruses on uue hingamise saanud ka Balti jaama turg, muuhulgas Selveri ja My Fitnessi spordiklubiga.
Parkimine on korraldatud kvartali sees. Sõidukitega saab territooriumile Telliskivi tänavalt, Kalamaja poolsest küljest. Parkimine territooriumil on tasuline ning seda korraldab EuroPark (EP86 tsoon). Üürnikele on loodud soodsad parkimistingimused.
Üürihinnale lisanduvad kõrvalkulud ja käibemaks!
Pakkumine on vahendustasuta!
Tutvuge hoone ja kvartali teiste pakkumistega siin: https://re.ee/kinnisvaraprojekt/aripinnad/kaubandus-teenindus/telliskivi-tln-telliskivi-602-i-hoone/
Huvi korral võtke ühendust ja saadame lisainfot ning tutvustame ruume.
RE Kinnisvara AS on tegutsenud 1995. aastast, olles üks vanimaid Eesti kinnisvaraettevõtteid.
Pakume kinnisvaraga seotud täisteenust:
- äri- ja elamispindade maaklerteenus
- kinnisvara hindamine laenu tagatiseks, sh kohtutele, finantsaruandluseks jne.
- äri- ja elukondlike arendusprojektide müügikorraldus
- kinnisvaraturu ja -projektide analüüs ja konsultatsioon
- kinnisvara seadustamine
Teeme koostööd kõigi Eesti pankade ja finantsasutustega. Meie eksperthinnangud on aktsepteeritud kõigi Eestis tegutsevate krediidiasutuste poolt.
Tutvu lähemalt re.ee.
RE Kinnisvara AS – PARIM OSA KINNISVARAST
Helista 66 88 666 või saada e-mail ***@***.ee
https://facebook.com/re.kinnisvara
https://www.instagram.com/rekinnisvara/
https://ee.linkedin.com/company/re-kinnisvara
Üürile pakutakse teisel korrusel paiknev 370,8 m² suurune büroopind, kus üürniku kasutada on avatud tööala (võimalik paigutada kuni 44 töökohta), neli nõupidamisteruumi ja üks kõneruum.
Lisaks on büroos väike köögiala ja olmeruumid. Ruumide plaan on leitav pakkumise galeriist. Pind antakse üle möbleerimata.
- Ruumid on maitsekalt viimistletud.
- Büroo on koheselt saadaval.
- Põrandakatteks on nii vaip kui ka betoon.
- Ruumidest avaneb vaade Vanalinnale ja Balti jaama turu alale.
- Maja on varustatud kõikide kaasaegsete tehnosüsteemidega sh ventilatsioon, jahutus, kiire internetiühendus, hoones on liftid.
- Võimalik paigaldada valgusreklaam hoone fassaadile, mis paistab nii Balti Jaama turu poolt tulijale, Balti jaama rongiperroonile kui ka Loomelinnaku poolt liginejale.
Miks Telliskivi TLN?
- Lühikese jalutuskäigu kaugusel nii rong, buss kui tramm.
- Samas on piisavalt parkimiskohti ka autoga tulijale.
- Siia on loodud sisekvartali park koos haljastuse, laude, pinkide ja puhkealadega, kus teha kõnnikoosolekuid ja väljas töötada.
- Arvukalt söögikohti: alates kiirtoidust ja lõunapakkumistest, pagarikoda, pruulikojad, lõpetades fine-dininguga.
- Ärilinnak koosneb mitmetest renoveeritud ja kaasajastatud ärihoonetest ning järgnevad aastad toovad veel kümneid tuhandeid ruutmeetreid uusi äriruume, mis annab juba linnakus tegutsevatele ettevõtetele laienemispotentsiaali.
- Palju võimalusi veeta vaba aega olla aktiivne ka töövälisel ajal. Lisaks kaasatakse ettevõtteid ka aktiivselt kogukonnaüritustele.
Telliskivi 60 aadressil asuvad mõned aastad tagasi renoveeritud ON-hoone ja 2018-****. aastatel valminud I-hoone, mida arendatakse etapiviisiliselt. Ülejäänud kvartal on jagatud osadeks, millest suuremad on M-hoone, K-hoone ja G-hoone. Nendel pindadel pakutakse nii büroo-, kaubandus-, teenindus- kui ka toitlustuspindasid.
Naabruses on uue hingamise saanud ka Balti jaama turg, muuhulgas Selveri ja My Fitnessi spordiklubiga.
Parkimine on korraldatud kvartali sees. Sõidukitega saab territooriumile Telliskivi tänavalt, Kalamaja poolsest küljest. Parkimine territooriumil on tasuline ning seda korraldab EuroPark (EP86 tsoon). Üürnikele on loodud soodsad parkimistingimused.
Üürihinnale lisanduvad kõrvalkulud ja käibemaks!
Pakkumine on vahendustasuta!
Tutvuge hoone ja kvartali teiste pakkumistega siin: https://re.ee/kinnisvaraprojekt/aripinnad/kaubandus-teenindus/telliskivi-tln-telliskivi-602-i-hoone/
Huvi korral võtke ühendust ja saadame lisainfot ning tutvustame ruume.
RE Kinnisvara AS on tegutsenud 1995. aastast, olles üks vanimaid Eesti kinnisvaraettevõtteid.
Pakume kinnisvaraga seotud täisteenust:
- äri- ja elamispindade maaklerteenus
- kinnisvara hindamine laenu tagatiseks, sh kohtutele, finantsaruandluseks jne.
- äri- ja elukondlike arendusprojektide müügikorraldus
- kinnisvaraturu ja -projektide analüüs ja konsultatsioon
- kinnisvara seadustamine
Teeme koostööd kõigi Eesti pankade ja finantsasutustega. Meie eksperthinnangud on aktsepteeritud kõigi Eestis tegutsevate krediidiasutuste poolt.
Tutvu lähemalt re.ee.
RE Kinnisvara AS – PARIM OSA KINNISVARAST
Helista 66 88 666 või saada e-mail ***@***.ee
https://facebook.com/re.kinnisvara
https://www.instagram.com/rekinnisvara/
https://ee.linkedin.com/company/re-kinnisvara
























