Üürile anda 2025.a lõpus vabanev kahel korrusel paiknev 3000m2 suurune büroopind Pärnu maantee äärses aktiivses ärikvartalis aadressil Karamelli 6.
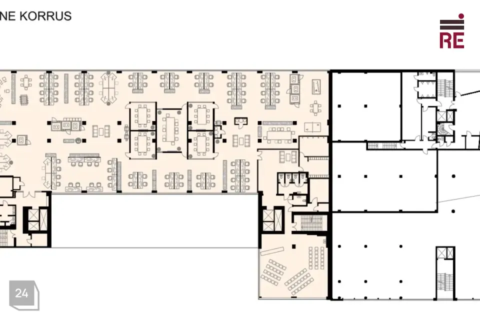
Hoone on põhjalikult renoveeritud endisest tootmishoonest, sellel on kõrged laed, mis lubavad kujundada õhulist avatud planeeringuga bürood ühel tasapinnal. Ruumide keskmine osa on lahendatud nõupidamisruumide ja kõnebokside alana, büroo otstes on olme- ja puhkeruumid (garderooobid, WC-d, köögid jmt).
Üüritav pind paikneb kahel järjestikku korrusel (2. ja 3.korrus), kumbki korrus ca 1500m2. Kokku on hoones saadaval pinda ca 4900m2.
Hoonel on sissepääsud mõlemas otsas, see võimaldab korrust ka poolitada. Samuti on võimalik üürida pinda hoone 1.korrusel kuni 400m2.
Hoones on avar jalgrataste hoiukoht koos pesemis- ja riietusruumidega.
Ruumid on varustatud jahutuse ja sundventilatsiooniga. Ruumi plaani leiate pakkumise galeriist. Hoonel on BREEAM Very Good sertifikaat, mis tähendab mõistlikke kõrvalkulusid. Hoonel ka diiselgeneraator süsteemide katkematuks toimimiseks elektrikatkestuste korral.
Hoone paikneb Pärnu mnt ääres kesklinna piiril logistiliselt heas asukohas. Siia on lihtne tulla nii auto, rongi, trammi kui ka bussiga.
Parkimist on hoone ümber oleval kinnistul kokku 320, parkimine on tasuline, hind vaid 25Eur/koht/kuus+km. Lisaks on võimalik üürida kohti maa-aluses kütteta garaažis. Hoone külastajatele on parkimine parkimiskellaga kaks tundi tasuta.
Üüri hinnale lisanduvad kõrvalkulud ja käibemaks.
Pakkumine on Teile vahendustasuta.
Huvi korral annan meeleldi lisainfot ning korraldan objekti külastuse.
Olete oodatud ruumidega tutvuma.
RE Kinnisvara AS on tegutsenud 1995. aastast, olles üks vanimaid Eesti kinnisvaraettevõtteid.
Pakume kinnisvaraga seotud täisteenust:
- äri- ja elamispindade maaklerteenus
- kinnisvara hindamine laenu tagatiseks, sh kohtutele, finantsaruandluseks jne.
- äri- ja elukondlike arendusprojektide müügikorraldus
- kinnisvaraturu ja -projektide analüüs ja konsultatsioon
- kinnisvara seadustamine
Teeme koostööd kõigi Eesti pankade ja finantsasutustega. Meie eksperthinnangud on aktsepteeritud kõigi Eestis tegutsevate krediidiasutuste poolt.
Tutvu lähemalt re.ee.
RE Kinnisvara AS – PARIM OSA KINNISVARAST
Helista 66 88 666 või saada e-mail ***@***.ee
https://facebook.com/re.kinnisvara
https://www.instagram.com/rekinnisvara/
https://ee.linkedin.com/company/re-kinnisvara
Hoone on põhjalikult renoveeritud endisest tootmishoonest, sellel on kõrged laed, mis lubavad kujundada õhulist avatud planeeringuga bürood ühel tasapinnal. Ruumide keskmine osa on lahendatud nõupidamisruumide ja kõnebokside alana, büroo otstes on olme- ja puhkeruumid (garderooobid, WC-d, köögid jmt).
Üüritav pind paikneb kahel järjestikku korrusel (2. ja 3.korrus), kumbki korrus ca 1500m2. Kokku on hoones saadaval pinda ca 4900m2.
Hoonel on sissepääsud mõlemas otsas, see võimaldab korrust ka poolitada. Samuti on võimalik üürida pinda hoone 1.korrusel kuni 400m2.
Hoones on avar jalgrataste hoiukoht koos pesemis- ja riietusruumidega.
Ruumid on varustatud jahutuse ja sundventilatsiooniga. Ruumi plaani leiate pakkumise galeriist. Hoonel on BREEAM Very Good sertifikaat, mis tähendab mõistlikke kõrvalkulusid. Hoonel ka diiselgeneraator süsteemide katkematuks toimimiseks elektrikatkestuste korral.
Hoone paikneb Pärnu mnt ääres kesklinna piiril logistiliselt heas asukohas. Siia on lihtne tulla nii auto, rongi, trammi kui ka bussiga.
Parkimist on hoone ümber oleval kinnistul kokku 320, parkimine on tasuline, hind vaid 25Eur/koht/kuus+km. Lisaks on võimalik üürida kohti maa-aluses kütteta garaažis. Hoone külastajatele on parkimine parkimiskellaga kaks tundi tasuta.
Üüri hinnale lisanduvad kõrvalkulud ja käibemaks.
Pakkumine on Teile vahendustasuta.
Huvi korral annan meeleldi lisainfot ning korraldan objekti külastuse.
Olete oodatud ruumidega tutvuma.
RE Kinnisvara AS on tegutsenud 1995. aastast, olles üks vanimaid Eesti kinnisvaraettevõtteid.
Pakume kinnisvaraga seotud täisteenust:
- äri- ja elamispindade maaklerteenus
- kinnisvara hindamine laenu tagatiseks, sh kohtutele, finantsaruandluseks jne.
- äri- ja elukondlike arendusprojektide müügikorraldus
- kinnisvaraturu ja -projektide analüüs ja konsultatsioon
- kinnisvara seadustamine
Teeme koostööd kõigi Eesti pankade ja finantsasutustega. Meie eksperthinnangud on aktsepteeritud kõigi Eestis tegutsevate krediidiasutuste poolt.
Tutvu lähemalt re.ee.
RE Kinnisvara AS – PARIM OSA KINNISVARAST
Helista 66 88 666 või saada e-mail ***@***.ee
https://facebook.com/re.kinnisvara
https://www.instagram.com/rekinnisvara/
https://ee.linkedin.com/company/re-kinnisvara



























