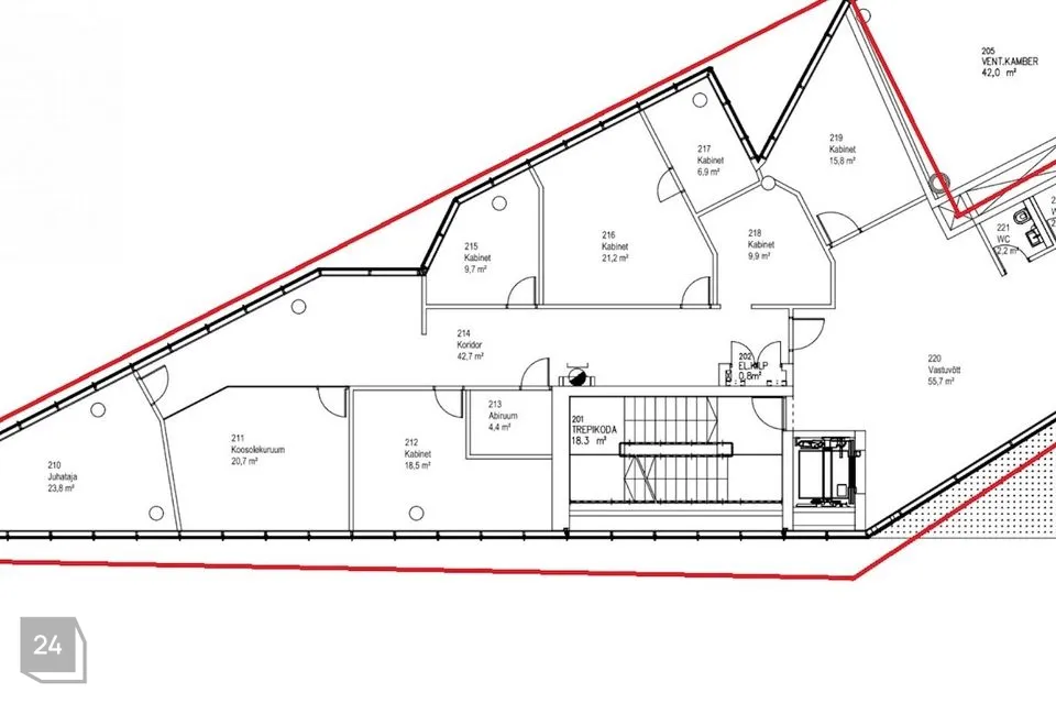
Ühes Tallinna soliidseimatest büroohoonetest on üürile anda valgusküllane ja ilus büroo. Hoone 2. korrusel paikneva pinna koosseisu kuulub viis kabinetti, kaks nõupidamisruumi, kööginurk, tualettruumid ja avar, esinduslik vastuvõtuala. Liftist üpääseb otse pinnale, ligipääs ainut pääsukaardiga. Külaliste mugavaks sissepääsuks on interaktiivne majajuht.
Ruumid on valgusküllased ja avarad, akendest avanevad kenad vaated. Hoones on keskküte ning moodne ventilatsiooni- ja jahutussüsteem, sisekliima on ruumipõhiselt reguleeritav. Hoonel on energiatõhusa ehitise sertifikaat LEED Gold.
Hoone parkimiskorrusel saab üürida parkimiskohti (vabade kohtade olemasolul), samas on olemas kinnine jalgrattaparkla, riietusruum ja duširuum. Ümbruses on mitu avalikku parklat, lähim Porto Franco kvartali maa-alune parkla. Hoone kõrval on kliendiparkla, kus parkimine 1h tasuta.
Hoone 1. korrusel on esinduslik konverentsikeskus, kus saab tunnipõhiselt üürida kuni 65 inimest mahutava konverentsiruumi. Naabruses on Porto Franco, Rotermanni kvartal, Promenaadi Majad ja Nautica Keskus - hulk kauplusi, restorane, hotelle ning erinevaid ärisid.
Navigaatori Maja on silmapaistva arhitektuuriga ja suurepärases asukohas sadama naabruses, kuhu tänu piirkonna suurtele arendustele on nihkunud linnasüda.
Navigatoris on Sinu ettevõte väga hästi nähtav, sest hoonele on võimalk paigaldada reklaam, mis on nähtav tiheda liilkusega Ahtri tänavalt.
Üürihind: 16 eur/m². Lisanduvad kõrvalkulud ja käibemaks.
NB! Hoones on pakkuda ka suuremat või väiksemat pinda, küsi lisainfot!
Pakkumine on vahendustasuta.
Jaga minu kontakti kõigile, kes vajavad kinnisvaranõu!
Liitu meie uudiskirjaga ja saa homset kinnisvarainfot juba täna! Vaata https://arikinnisvara.uusmaa.ee
UUS MAA ÄRIKINNISVARA - aastakümned kogemust ja klientide usaldust, läbimõeldud täisteenus ja suurim arv eksperte: vahendamine, hindamine, haldamine, nõustamine ja investeerimine.
Ruumid on valgusküllased ja avarad, akendest avanevad kenad vaated. Hoones on keskküte ning moodne ventilatsiooni- ja jahutussüsteem, sisekliima on ruumipõhiselt reguleeritav. Hoonel on energiatõhusa ehitise sertifikaat LEED Gold.
Hoone parkimiskorrusel saab üürida parkimiskohti (vabade kohtade olemasolul), samas on olemas kinnine jalgrattaparkla, riietusruum ja duširuum. Ümbruses on mitu avalikku parklat, lähim Porto Franco kvartali maa-alune parkla. Hoone kõrval on kliendiparkla, kus parkimine 1h tasuta.
Hoone 1. korrusel on esinduslik konverentsikeskus, kus saab tunnipõhiselt üürida kuni 65 inimest mahutava konverentsiruumi. Naabruses on Porto Franco, Rotermanni kvartal, Promenaadi Majad ja Nautica Keskus - hulk kauplusi, restorane, hotelle ning erinevaid ärisid.
Navigaatori Maja on silmapaistva arhitektuuriga ja suurepärases asukohas sadama naabruses, kuhu tänu piirkonna suurtele arendustele on nihkunud linnasüda.
Navigatoris on Sinu ettevõte väga hästi nähtav, sest hoonele on võimalk paigaldada reklaam, mis on nähtav tiheda liilkusega Ahtri tänavalt.
Üürihind: 16 eur/m². Lisanduvad kõrvalkulud ja käibemaks.
NB! Hoones on pakkuda ka suuremat või väiksemat pinda, küsi lisainfot!
Pakkumine on vahendustasuta.
Jaga minu kontakti kõigile, kes vajavad kinnisvaranõu!
Liitu meie uudiskirjaga ja saa homset kinnisvarainfot juba täna! Vaata https://arikinnisvara.uusmaa.ee
UUS MAA ÄRIKINNISVARA - aastakümned kogemust ja klientide usaldust, läbimõeldud täisteenus ja suurim arv eksperte: vahendamine, hindamine, haldamine, nõustamine ja investeerimine.




















