Üürile anda 218,4m2 suurune köögimööbliga büroo 2020. aasta suvel valminud Tammsaare tee 92 ärihoones Mauruse Maja.
Üürihind 8,5Eur/m2+km kehtib esimesed kuus kuud, edasi üür 11,5Eur/m2+km.
Mauruse Maja on 8-korruseline hoone, kus lisaks büroopindadele 5-8.korrustel on 1.korrusel erinevad äripinnad ja 520 parkimiskohaga parkimismaja korrustel 1-5.
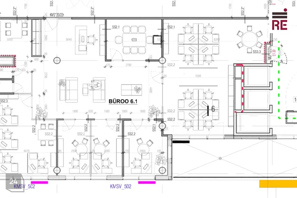
Pakutav büroo paikneb hoone 6. korrusel ja selle plaan on leitav piltide galeriis.
Ruumides on sisseehitatud riidekapp vastuvõtualas, nõupidamisruum 6-8 inimesele, kaks avatud tööala ja kaks kabinetti, lisaks kaks tualetti ning puhkeruum koos köögimööbliga (slh külmik ning nõudepesumasin). Ruumidesse jäävad olemasolevad aknakatted. Kahest ruumist on juurdepääs suurele terrassile.
Mauruse Maja paikneb hästi nähtavas asukohas elava liiklusega A. H. Tammsaare tee ääres. Hoone fassaadile saab paigutada üürnike logosid ja reklaami ning muuta seeläbi ettevõte nähtavaks.
Hoone ees väliparklas 100 parkimiskohta, kus on mugav parkida maja külalistel parkimiskellaga (1h tasuta).
Kokku 520 parkimiskohta hoone juures tähendab väga häid parkimisvõimalusi hoone üürnikele ja külastajatele.
Hoone esimesel korrusel on võimalik kasutada jalgrataste hoiuruumi.
Hoone on hästi ligipääsetav ka ühistranspordiga, bussipeatused on hoone ees. Vahetus läheduses paikneb Mustamäe Keskus erinevate söögikohtade MyFitness spordiklubi, Apollo kino ja Rimi toidupoega.
Mauruse Maja on energiatõhus ärihoone (A energiaklass), milles on soodsad kõrvalkulud.
Ruumide üürile võtmine on vahendustasuta.
Üürihinnale lisanduvad kõrvalkulud ja käibemaks.
Kui soovite ruume vaadata või rohkem infot, siis palun võtke ühendust.
Kõiki äripindade pakkumisi Mauruse Majas saab vaadata siin: https://re.ee/projektid/aripinnad/buroopinnad-arihooned/mauruse-maja-a-h-tammsaare-tee-92/
RE Kinnisvara AS on tegutsenud 1995. aastast, olles üks vanimaid Eesti kinnisvaraettevõtteid.
Pakume kinnisvaraga seotud täisteenust:
- äri- ja elamispindade maaklerteenus
- kinnisvara hindamine laenu tagatiseks, sh kohtutele, finantsaruandluseks jne.
- äri- ja elukondlike arendusprojektide müügikorraldus
- kinnisvaraturu ja -projektide analüüs ja konsultatsioon
- kinnisvara seadustamine
Teeme koostööd kõigi Eesti pankade ja finantsasutustega. Meie eksperthinnangud on aktsepteeritud kõigi Eestis tegutsevate krediidiasutuste poolt.
Tutvu lähemalt re.ee.
RE Kinnisvara AS – PARIM OSA KINNISVARAST
Helista 66 88 666 või saada e-mail ***@***.ee
https://facebook.com/re.kinnisvara
https://www.instagram.com/rekinnisvara/
https://ee.linkedin.com/company/re-kinnisvara
Üürihind 8,5Eur/m2+km kehtib esimesed kuus kuud, edasi üür 11,5Eur/m2+km.
Mauruse Maja on 8-korruseline hoone, kus lisaks büroopindadele 5-8.korrustel on 1.korrusel erinevad äripinnad ja 520 parkimiskohaga parkimismaja korrustel 1-5.
Pakutav büroo paikneb hoone 6. korrusel ja selle plaan on leitav piltide galeriis.
Ruumides on sisseehitatud riidekapp vastuvõtualas, nõupidamisruum 6-8 inimesele, kaks avatud tööala ja kaks kabinetti, lisaks kaks tualetti ning puhkeruum koos köögimööbliga (slh külmik ning nõudepesumasin). Ruumidesse jäävad olemasolevad aknakatted. Kahest ruumist on juurdepääs suurele terrassile.
Mauruse Maja paikneb hästi nähtavas asukohas elava liiklusega A. H. Tammsaare tee ääres. Hoone fassaadile saab paigutada üürnike logosid ja reklaami ning muuta seeläbi ettevõte nähtavaks.
Hoone ees väliparklas 100 parkimiskohta, kus on mugav parkida maja külalistel parkimiskellaga (1h tasuta).
Kokku 520 parkimiskohta hoone juures tähendab väga häid parkimisvõimalusi hoone üürnikele ja külastajatele.
Hoone esimesel korrusel on võimalik kasutada jalgrataste hoiuruumi.
Hoone on hästi ligipääsetav ka ühistranspordiga, bussipeatused on hoone ees. Vahetus läheduses paikneb Mustamäe Keskus erinevate söögikohtade MyFitness spordiklubi, Apollo kino ja Rimi toidupoega.
Mauruse Maja on energiatõhus ärihoone (A energiaklass), milles on soodsad kõrvalkulud.
Ruumide üürile võtmine on vahendustasuta.
Üürihinnale lisanduvad kõrvalkulud ja käibemaks.
Kui soovite ruume vaadata või rohkem infot, siis palun võtke ühendust.
Kõiki äripindade pakkumisi Mauruse Majas saab vaadata siin: https://re.ee/projektid/aripinnad/buroopinnad-arihooned/mauruse-maja-a-h-tammsaare-tee-92/
RE Kinnisvara AS on tegutsenud 1995. aastast, olles üks vanimaid Eesti kinnisvaraettevõtteid.
Pakume kinnisvaraga seotud täisteenust:
- äri- ja elamispindade maaklerteenus
- kinnisvara hindamine laenu tagatiseks, sh kohtutele, finantsaruandluseks jne.
- äri- ja elukondlike arendusprojektide müügikorraldus
- kinnisvaraturu ja -projektide analüüs ja konsultatsioon
- kinnisvara seadustamine
Teeme koostööd kõigi Eesti pankade ja finantsasutustega. Meie eksperthinnangud on aktsepteeritud kõigi Eestis tegutsevate krediidiasutuste poolt.
Tutvu lähemalt re.ee.
RE Kinnisvara AS – PARIM OSA KINNISVARAST
Helista 66 88 666 või saada e-mail ***@***.ee
https://facebook.com/re.kinnisvara
https://www.instagram.com/rekinnisvara/
https://ee.linkedin.com/company/re-kinnisvara























