Üürile anda lao - ja tootmishoone Kristiine linnaosas Elektroni tänaval.
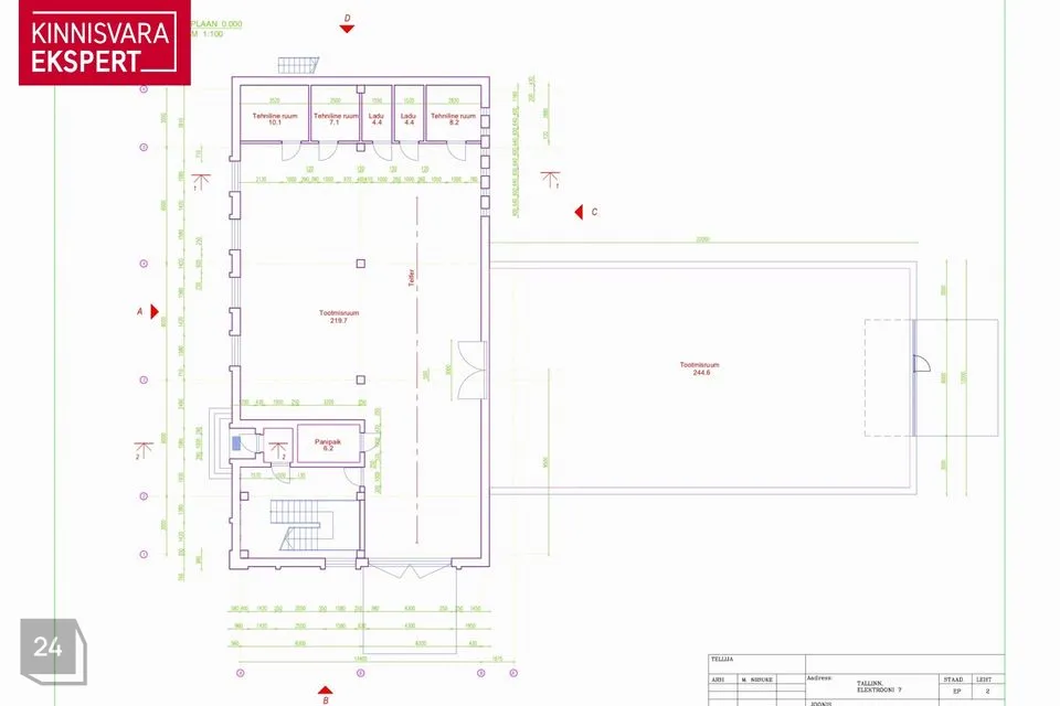
Hoone I korrusel on äripinda kokku 500m2 (sh kaks suurt kõrgete lagedega tootmisruumi- 230m2 ja 245m2) ja II korrusel asuvad büroo- ja olmeruumid (WC, dushiruum, riietusruum, väiksemad laoruumid) suurusega 270m2.
II korruse põrand on suure kandevõimega ja uus üürnik saab antud pinda kasutada ka tootmise laiendamiseks vms otstarbel.
Hoones töötas viimased 17 aastat autoremonditöökoda.
ERIPAKKUMINE: Esimesed 3 kuud on üürihind 3000.-€+ km.
Lepingu pikkus min 36 kuud. Tagatisraha on 2 kuu üürisumma mis tagastatakse lepingu lõppemisel.
TEHNILINE INFO
Kaugküte hetkel puudub, aga valmidus on liitumiseks loodud. Kütteallikateks on hetkel õhksoojuspumbad nii I kui II korrusel, võimalik on luua ka teisi energiatõhusaid küttelahendusi hoone kütmiseks olenevalt üürniku soovidest ja vajadustest.
• Tööstusvool 3x160A
• Tsentraalne vesi ja kanalisatsioon
• Valvesüsteem paigaldatud
• Kütteallikaks õhksoojuspumbad (õhk-õhk tüüpi)
• Tõstanduksed ca 4,5 x 4,2 m ja 5x5m, mõlemad käiguuksega.
• Betoonpõrandad suure kandevõimega
• WC-d mõlemal korrusel
• Tulekahjusignalisatsioon paigaldatud
HOONE
Hoone on heas seisukorras ja läbib hetkel veel viimast värskendusremonti. Vahetatud on aknad soojapidavate vastu tootmisruumides I korrusel ja samuti II korrusel bürooruumides.
Hoone katus on soojustatud ja lähiperspektiivis on plaanis ka fassaadi täiendav viimistlus. Paigaldatud on uus tulekahjusignalisatsioon, samuti on vahetatud elektrikilbid.
Hoonel on ka kolmas katusealune korrus mille saab kokkuleppel kasutusele võtta näiteks lisalaopinnana vms otstarbel.
ASUKOHT
Elektroni tn 7 äri- ja tootmishoone asub perspektiivses piirkonnas Kristiine linnaosas. Hea ligipääsetavus suurematest transpordisõlmedest. Territoorium on piiratud aiaga mis tagab turvalisuse. Võimalus kasutada kinnistut parkimiseks.
Äripinnaga tutvumiseks võtke palun ühendust!
****
KINNISVARAEKSPERT tegutseb Eesti turul alates 1993. aastast. Meie Bürood asuvad Tallinnas ja Pärnus ning teenindame teid üle Eesti. Koostööpartnerite Nord Prime Capital ja Alliance Group UAB kaudu oleme esindatud ka Lätis ning Leedus.
Pakume maaklerteenust, hindamist ja kinnisvaraalast nõustamisteenust nii era- kui ka ärisektoris.
Kinnisvaraekspert teeb tihedat koostööd maailma suurimate kinnisvarafirmade hulka kuuluva ettevõttega Cushman & Wakefield. Meie koostöösidemed ulatuvad peale Balti riikide ja Põhjamaade pea kõikidesse maailmajagudesse.
Lisainfo ja teenuste tellimine:
Tallinnas: +372 *******
Pärnus: +372 *******
Rohkem infot leiad www.kinnisvaraekspert.ee
***
Hoone I korrusel on äripinda kokku 500m2 (sh kaks suurt kõrgete lagedega tootmisruumi- 230m2 ja 245m2) ja II korrusel asuvad büroo- ja olmeruumid (WC, dushiruum, riietusruum, väiksemad laoruumid) suurusega 270m2.
II korruse põrand on suure kandevõimega ja uus üürnik saab antud pinda kasutada ka tootmise laiendamiseks vms otstarbel.
Hoones töötas viimased 17 aastat autoremonditöökoda.
ERIPAKKUMINE: Esimesed 3 kuud on üürihind 3000.-€+ km.
Lepingu pikkus min 36 kuud. Tagatisraha on 2 kuu üürisumma mis tagastatakse lepingu lõppemisel.
TEHNILINE INFO
Kaugküte hetkel puudub, aga valmidus on liitumiseks loodud. Kütteallikateks on hetkel õhksoojuspumbad nii I kui II korrusel, võimalik on luua ka teisi energiatõhusaid küttelahendusi hoone kütmiseks olenevalt üürniku soovidest ja vajadustest.
• Tööstusvool 3x160A
• Tsentraalne vesi ja kanalisatsioon
• Valvesüsteem paigaldatud
• Kütteallikaks õhksoojuspumbad (õhk-õhk tüüpi)
• Tõstanduksed ca 4,5 x 4,2 m ja 5x5m, mõlemad käiguuksega.
• Betoonpõrandad suure kandevõimega
• WC-d mõlemal korrusel
• Tulekahjusignalisatsioon paigaldatud
HOONE
Hoone on heas seisukorras ja läbib hetkel veel viimast värskendusremonti. Vahetatud on aknad soojapidavate vastu tootmisruumides I korrusel ja samuti II korrusel bürooruumides.
Hoone katus on soojustatud ja lähiperspektiivis on plaanis ka fassaadi täiendav viimistlus. Paigaldatud on uus tulekahjusignalisatsioon, samuti on vahetatud elektrikilbid.
Hoonel on ka kolmas katusealune korrus mille saab kokkuleppel kasutusele võtta näiteks lisalaopinnana vms otstarbel.
ASUKOHT
Elektroni tn 7 äri- ja tootmishoone asub perspektiivses piirkonnas Kristiine linnaosas. Hea ligipääsetavus suurematest transpordisõlmedest. Territoorium on piiratud aiaga mis tagab turvalisuse. Võimalus kasutada kinnistut parkimiseks.
Äripinnaga tutvumiseks võtke palun ühendust!
****
KINNISVARAEKSPERT tegutseb Eesti turul alates 1993. aastast. Meie Bürood asuvad Tallinnas ja Pärnus ning teenindame teid üle Eesti. Koostööpartnerite Nord Prime Capital ja Alliance Group UAB kaudu oleme esindatud ka Lätis ning Leedus.
Pakume maaklerteenust, hindamist ja kinnisvaraalast nõustamisteenust nii era- kui ka ärisektoris.
Kinnisvaraekspert teeb tihedat koostööd maailma suurimate kinnisvarafirmade hulka kuuluva ettevõttega Cushman & Wakefield. Meie koostöösidemed ulatuvad peale Balti riikide ja Põhjamaade pea kõikidesse maailmajagudesse.
Lisainfo ja teenuste tellimine:
Tallinnas: +372 *******
Pärnus: +372 *******
Rohkem infot leiad www.kinnisvaraekspert.ee
***









































