Anda üürile kõrgete lagedega äge pind Ülemiste piirkonnas!
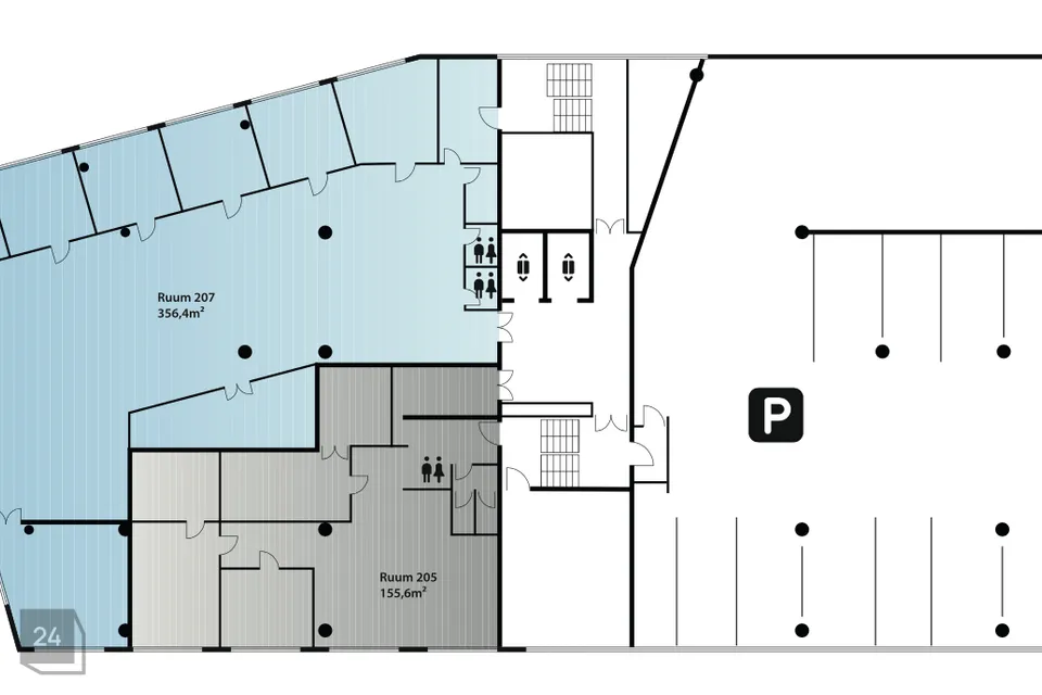
Üüritav pind on 356,4 m2 suurune ja asub ärihoone B-korpuses teisel korrusel.
Pind jaguneb: suur avatud ala, 6 kabinetti, koosolekuruum, kaks köögi/puhkeala, panipaik, tualetid.
Pind on väga valgusküllane tänu rohketele ja suurtele akendele.
Laed on ca 4 m kõrgused.
Pinnal on sundventilatsioon ja kliimaseadmed.
Akendel on päikest peegeldavad kiled.
Fuajees on administraator, kes vajadusel kliente abistab.
Teisel korrusel on hommiku- ja lõunasöögirestoran, mis majarahvast toitlustab tööpäevadel.
Parkimine on korraldatud üürnikele 4-kordses parkimismajas tasuta, kliendid saavad parkida maja ees 2h tasuta.
Ülemiste Ärimaja asub logistiliselt mugavas asukohas, kui tulla erisuundadest. Kõrval asub T1 Keskus, lähistel Ülemiste Keskus, Ülemiste Linnak, Sikupilli Keskus jpm.
Ühistranspordiga liiklejad saavad kergelt rongiga ligi, kuna peatus on praktiliselt maja taga. Maja ees on bussipeatus, ja paari sammu kaugusel ka trammipeatus.
Üürihinnale lisanduvad kõrvalkulud ja käibemaks.
Pakkumine on vahendustasuta.
Võta julgelt ühendust!
Üüritav pind on 356,4 m2 suurune ja asub ärihoone B-korpuses teisel korrusel.
Pind jaguneb: suur avatud ala, 6 kabinetti, koosolekuruum, kaks köögi/puhkeala, panipaik, tualetid.
Pind on väga valgusküllane tänu rohketele ja suurtele akendele.
Laed on ca 4 m kõrgused.
Pinnal on sundventilatsioon ja kliimaseadmed.
Akendel on päikest peegeldavad kiled.
Fuajees on administraator, kes vajadusel kliente abistab.
Teisel korrusel on hommiku- ja lõunasöögirestoran, mis majarahvast toitlustab tööpäevadel.
Parkimine on korraldatud üürnikele 4-kordses parkimismajas tasuta, kliendid saavad parkida maja ees 2h tasuta.
Ülemiste Ärimaja asub logistiliselt mugavas asukohas, kui tulla erisuundadest. Kõrval asub T1 Keskus, lähistel Ülemiste Keskus, Ülemiste Linnak, Sikupilli Keskus jpm.
Ühistranspordiga liiklejad saavad kergelt rongiga ligi, kuna peatus on praktiliselt maja taga. Maja ees on bussipeatus, ja paari sammu kaugusel ka trammipeatus.
Üürihinnale lisanduvad kõrvalkulud ja käibemaks.
Pakkumine on vahendustasuta.
Võta julgelt ühendust!





















